Votre courriel a été envoyé.
Certaines informations ont été traduites automatiquement.
Faits saillants du parc
- Zone commune Wi-Fi disponible
- À distance de marche de plusieurs commodités de vente au détail
- Aires communes récemment mises à jour
- Cadre semblable à un parc avec cour
- Centre de conditionnement physique sur place, avec douches et casiers
Faits sur le parc
| Superficie totale disponible | 47 161 pi² | Max. contigu | 20 802 pi² |
| Min. divisible | 843 pi² | Type de parc | Parc de bureaux |
| Superficie totale disponible | 47 161 pi² |
| Min. divisible | 843 pi² |
| Max. contigu | 20 802 pi² |
| Type de parc | Parc de bureaux |
Tous les espaces disponibles(15)
Afficher les taux de location en
- Espace
- Taille
- Terme
- Taux de location
- Utilisation de l’espace
- Aménagement
- Disponible
Available.
- Disposition du plan d’étage ouverte
- Accessible aux fauteuils roulants
Reception, 4 private offices and open area.
- Partiellement construit comme Bureau de services professionnels
- Convient pour 6 à 18 personnes
- Accessible aux fauteuils roulants
- Disposition du plan d’étage ouverte en général
- 4 bureaux privés
Available
- Partiellement construit comme Espace médical standard
- Convient pour 5 à 16 personnes
Warm shell condition *Suites 204 and 210 are contiguous for up to 6,369
- Le taux de location ne comprend pas les services publics, les services de bâtiment ou les dépenses immobilières.
- Convient pour 8 à 24 personnes
- 1 salle de conférence
- Accessible aux fauteuils roulants
- Partiellement construit comme Bureau de services professionnels
- 12 bureaux privés
- Peut être associé à un ou plusieurs espaces supplémentaires pour obtenir jusqu’à 6 369 pi² d’espace adjacent.
- Partiellement construit comme Bureau standard
- Convient pour 5 à 14 personnes
- Disposition intensive du bureau
- Accessible aux fauteuils roulants
Reception, 8 private offices, conference, break room, storage and work/production room. *Suites 204 and 210 are contiguous for up to 6,369.
- Convient pour 10 à 32 personnes
- 1 salle de conférence
- Accessible aux fauteuils roulants
- 8 bureaux privés
- Peut être associé à un ou plusieurs espaces supplémentaires pour obtenir jusqu’à 6 369 pi² d’espace adjacent.
- Le taux de location ne comprend pas les services publics, les services de bâtiment ou les dépenses immobilières.
- Peut être associé à un ou plusieurs espaces supplémentaires pour obtenir jusqu’à 20 802 pi² d’espace adjacent.
- Disposition du plan d’étage ouverte en général
- Accessible aux fauteuils roulants
Entire 3rd floor available for up to 22,067 SF. Perimeter offices, conference rooms, break room. Divisible to 5,000 SF
- Le taux de location ne comprend pas les services publics, les services de bâtiment ou les dépenses immobilières.
- Convient pour 13 à 106 personnes
- Accessible aux fauteuils roulants
- Disposition du plan d’étage ouverte
- Peut être associé à un ou plusieurs espaces supplémentaires pour obtenir jusqu’à 20 802 pi² d’espace adjacent.
3 private offices, conference, break room, server/IT and large open area.
- Le taux de location ne comprend pas les services publics, les services de bâtiment ou les dépenses immobilières.
- Disposition du plan d’étage ouverte en général
- 3 bureaux privés
- Peut être associé à un ou plusieurs espaces supplémentaires pour obtenir jusqu’à 20 802 pi² d’espace adjacent.
- Partiellement construit comme Bureau standard
- Convient pour 6 à 19 personnes
- 1 salle de conférence
- Accessible aux fauteuils roulants
Entire 3rd floor available for up to 22,067 SF
- Convient pour 7 à 22 personnes
- Peut être associé à un ou plusieurs espaces supplémentaires pour obtenir jusqu’à 20 802 pi² d’espace adjacent.
| Espace | Taille | Terme | Taux de location | Utilisation de l’espace | Aménagement | Disponible |
| 1er étage, ste 100 | 3 827 pi² | Négociable | Sur demande Sur demande Sur demande Sur demande | Bureau/Médical | espace cloisonné | Maintenant |
| 1er étage, ste 101 | 2 220 pi² | Négociable | Sur demande Sur demande Sur demande Sur demande | Bureau/Médical | construction partielle | Maintenant |
| 1er étage, ste 112 | 1 943 pi² | Négociable | Sur demande Sur demande Sur demande Sur demande | Bureau/Médical | construction partielle | Maintenant |
| 2e étage, ste 204 | 2 378 pi² | Négociable | Sur demande Sur demande Sur demande Sur demande | Bureau/Médical | construction partielle | Maintenant |
| 2e étage, ste 205 | 1 657 pi² | Négociable | Sur demande Sur demande Sur demande Sur demande | Bureau/Médical | construction partielle | Maintenant |
| 2e étage, ste 210 | 3 991 pi² | Négociable | Sur demande Sur demande Sur demande Sur demande | Bureau/Médical | construction partielle | Maintenant |
| 3e étage, ste 310 | 2 596 pi² | Négociable | Sur demande Sur demande Sur demande Sur demande | Bureau/Médical | espace cloisonné | Maintenant |
| 3e étage, ste 321 | 5 000 à 13 164 pi² | Négociable | Sur demande Sur demande Sur demande Sur demande | Bureau/Médical | construction partielle | Maintenant |
| 3e étage, ste 340 | 2 343 pi² | Négociable | Sur demande Sur demande Sur demande Sur demande | Bureau/Médical | construction partielle | Maintenant |
| 3e étage, ste 344 | 2 699 pi² | Négociable | Sur demande Sur demande Sur demande Sur demande | Bureau/Médical | construction partielle | Maintenant |
3760 Convoy St - 1er étage - ste 100
3760 Convoy St - 1er étage - ste 101
3760 Convoy St - 1er étage - ste 112
3760 Convoy St - 2e étage - ste 204
3760 Convoy St - 2e étage - ste 205
3760 Convoy St - 2e étage - ste 210
3760 Convoy St - 3e étage - ste 310
3760 Convoy St - 3e étage - ste 321
3760 Convoy St - 3e étage - ste 340
3760 Convoy St - 3e étage - ste 344
- Espace
- Taille
- Terme
- Taux de location
- Utilisation de l’espace
- Aménagement
- Disponible
Shell condition
- Le taux de location ne comprend pas les services publics, les services de bâtiment ou les dépenses immobilières.
- Accessible aux fauteuils roulants
- Disposition du plan d’étage ouverte
NEW MEDICAL SPEC SUITE. 2 private offices and open area.
- Le taux de location ne comprend pas les services publics, les services de bâtiment ou les dépenses immobilières.
- 2 bureaux privés
- Convient pour 3 à 7 personnes
Available
- Disposition du plan d’étage ouverte
- Accessible aux fauteuils roulants
Available. 4 private offices, large conference room, reception, breakroom and large open area
- Le taux de location ne comprend pas les services publics, les services de bâtiment ou les dépenses immobilières.
- Convient pour 9 à 26 personnes
- 1 salle de conférence
- Entièrement construit comme Bureau de services professionnels
- 4 bureaux privés
- Accessible aux fauteuils roulants
Medical buildout. 8 exam rooms, 4 offices, reception and large open area. Medical Spec suite underway.
- Convient pour 7 à 20 personnes
- Aire de réception
- 4 bureaux privés
| Espace | Taille | Terme | Taux de location | Utilisation de l’espace | Aménagement | Disponible |
| 1er étage, ste 115 | 2 901 pi² | Négociable | Sur demande Sur demande Sur demande Sur demande | Bureau/Médical | espace cloisonné | Maintenant |
| 1er étage, ste 145 | 843 pi² | Négociable | Sur demande Sur demande Sur demande Sur demande | Bureau/Médical | construction partielle | Maintenant |
| 2e étage, ste 203 | 920 pi² | Négociable | Sur demande Sur demande Sur demande Sur demande | Bureau/Médical | espace cloisonné | Maintenant |
| 3e étage, ste 305 | 3 227 pi² | Négociable | Sur demande Sur demande Sur demande Sur demande | Bureau/Médical | construction complète | Maintenant |
| 3e étage, ste 311 | 2 452 pi² | Négociable | Sur demande Sur demande Sur demande Sur demande | Bureau/Médical | selon spécifications | Maintenant |
3750 Convoy St - 1er étage - ste 115
3750 Convoy St - 1er étage - ste 145
3750 Convoy St - 2e étage - ste 203
3750 Convoy St - 3e étage - ste 305
3750 Convoy St - 3e étage - ste 311
3760 Convoy St - 1er étage - ste 100
| Taille | 3 827 pi² |
| Terme | Négociable |
| Taux de location | Sur demande |
| Utilisation de l’espace | Bureau/Médical |
| Aménagement | espace cloisonné |
| Disponible | Maintenant |
Available.
- Disposition du plan d’étage ouverte
- Accessible aux fauteuils roulants
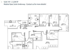
3760 Convoy St - 1er étage - ste 101
| Taille | 2 220 pi² |
| Terme | Négociable |
| Taux de location | Sur demande |
| Utilisation de l’espace | Bureau/Médical |
| Aménagement | construction partielle |
| Disponible | Maintenant |
Reception, 4 private offices and open area.
- Partiellement construit comme Bureau de services professionnels
- Disposition du plan d’étage ouverte en général
- Convient pour 6 à 18 personnes
- 4 bureaux privés
- Accessible aux fauteuils roulants
3760 Convoy St - 1er étage - ste 112
| Taille | 1 943 pi² |
| Terme | Négociable |
| Taux de location | Sur demande |
| Utilisation de l’espace | Bureau/Médical |
| Aménagement | construction partielle |
| Disponible | Maintenant |
Available
- Partiellement construit comme Espace médical standard
- Convient pour 5 à 16 personnes
3760 Convoy St - 2e étage - ste 204
| Taille | 2 378 pi² |
| Terme | Négociable |
| Taux de location | Sur demande |
| Utilisation de l’espace | Bureau/Médical |
| Aménagement | construction partielle |
| Disponible | Maintenant |
Warm shell condition *Suites 204 and 210 are contiguous for up to 6,369
- Le taux de location ne comprend pas les services publics, les services de bâtiment ou les dépenses immobilières.
- Partiellement construit comme Bureau de services professionnels
- Convient pour 8 à 24 personnes
- 12 bureaux privés
- 1 salle de conférence
- Peut être associé à un ou plusieurs espaces supplémentaires pour obtenir jusqu’à 6 369 pi² d’espace adjacent.
- Accessible aux fauteuils roulants
3760 Convoy St - 2e étage - ste 205
| Taille | 1 657 pi² |
| Terme | Négociable |
| Taux de location | Sur demande |
| Utilisation de l’espace | Bureau/Médical |
| Aménagement | construction partielle |
| Disponible | Maintenant |
- Partiellement construit comme Bureau standard
- Disposition intensive du bureau
- Convient pour 5 à 14 personnes
- Accessible aux fauteuils roulants
3760 Convoy St - 2e étage - ste 210
| Taille | 3 991 pi² |
| Terme | Négociable |
| Taux de location | Sur demande |
| Utilisation de l’espace | Bureau/Médical |
| Aménagement | construction partielle |
| Disponible | Maintenant |
Reception, 8 private offices, conference, break room, storage and work/production room. *Suites 204 and 210 are contiguous for up to 6,369.
- Convient pour 10 à 32 personnes
- 8 bureaux privés
- 1 salle de conférence
- Peut être associé à un ou plusieurs espaces supplémentaires pour obtenir jusqu’à 6 369 pi² d’espace adjacent.
- Accessible aux fauteuils roulants
3760 Convoy St - 3e étage - ste 310
| Taille | 2 596 pi² |
| Terme | Négociable |
| Taux de location | Sur demande |
| Utilisation de l’espace | Bureau/Médical |
| Aménagement | espace cloisonné |
| Disponible | Maintenant |
- Le taux de location ne comprend pas les services publics, les services de bâtiment ou les dépenses immobilières.
- Disposition du plan d’étage ouverte en général
- Peut être associé à un ou plusieurs espaces supplémentaires pour obtenir jusqu’à 20 802 pi² d’espace adjacent.
- Accessible aux fauteuils roulants
3760 Convoy St - 3e étage - ste 321
| Taille | 5 000 à 13 164 pi² |
| Terme | Négociable |
| Taux de location | Sur demande |
| Utilisation de l’espace | Bureau/Médical |
| Aménagement | construction partielle |
| Disponible | Maintenant |
Entire 3rd floor available for up to 22,067 SF. Perimeter offices, conference rooms, break room. Divisible to 5,000 SF
- Le taux de location ne comprend pas les services publics, les services de bâtiment ou les dépenses immobilières.
- Disposition du plan d’étage ouverte
- Convient pour 13 à 106 personnes
- Peut être associé à un ou plusieurs espaces supplémentaires pour obtenir jusqu’à 20 802 pi² d’espace adjacent.
- Accessible aux fauteuils roulants
3760 Convoy St - 3e étage - ste 340
| Taille | 2 343 pi² |
| Terme | Négociable |
| Taux de location | Sur demande |
| Utilisation de l’espace | Bureau/Médical |
| Aménagement | construction partielle |
| Disponible | Maintenant |
3 private offices, conference, break room, server/IT and large open area.
- Le taux de location ne comprend pas les services publics, les services de bâtiment ou les dépenses immobilières.
- Partiellement construit comme Bureau standard
- Disposition du plan d’étage ouverte en général
- Convient pour 6 à 19 personnes
- 3 bureaux privés
- 1 salle de conférence
- Peut être associé à un ou plusieurs espaces supplémentaires pour obtenir jusqu’à 20 802 pi² d’espace adjacent.
- Accessible aux fauteuils roulants
3760 Convoy St - 3e étage - ste 344
| Taille | 2 699 pi² |
| Terme | Négociable |
| Taux de location | Sur demande |
| Utilisation de l’espace | Bureau/Médical |
| Aménagement | construction partielle |
| Disponible | Maintenant |
Entire 3rd floor available for up to 22,067 SF
- Convient pour 7 à 22 personnes
- Peut être associé à un ou plusieurs espaces supplémentaires pour obtenir jusqu’à 20 802 pi² d’espace adjacent.
3750 Convoy St - 1er étage - ste 115
| Taille | 2 901 pi² |
| Terme | Négociable |
| Taux de location | Sur demande |
| Utilisation de l’espace | Bureau/Médical |
| Aménagement | espace cloisonné |
| Disponible | Maintenant |
Shell condition
- Le taux de location ne comprend pas les services publics, les services de bâtiment ou les dépenses immobilières.
- Disposition du plan d’étage ouverte
- Accessible aux fauteuils roulants
3750 Convoy St - 1er étage - ste 145
| Taille | 843 pi² |
| Terme | Négociable |
| Taux de location | Sur demande |
| Utilisation de l’espace | Bureau/Médical |
| Aménagement | construction partielle |
| Disponible | Maintenant |
NEW MEDICAL SPEC SUITE. 2 private offices and open area.
- Le taux de location ne comprend pas les services publics, les services de bâtiment ou les dépenses immobilières.
- Convient pour 3 à 7 personnes
- 2 bureaux privés
3750 Convoy St - 2e étage - ste 203
| Taille | 920 pi² |
| Terme | Négociable |
| Taux de location | Sur demande |
| Utilisation de l’espace | Bureau/Médical |
| Aménagement | espace cloisonné |
| Disponible | Maintenant |
Available
- Disposition du plan d’étage ouverte
- Accessible aux fauteuils roulants
3750 Convoy St - 3e étage - ste 305
| Taille | 3 227 pi² |
| Terme | Négociable |
| Taux de location | Sur demande |
| Utilisation de l’espace | Bureau/Médical |
| Aménagement | construction complète |
| Disponible | Maintenant |
Available. 4 private offices, large conference room, reception, breakroom and large open area
- Le taux de location ne comprend pas les services publics, les services de bâtiment ou les dépenses immobilières.
- Entièrement construit comme Bureau de services professionnels
- Convient pour 9 à 26 personnes
- 4 bureaux privés
- 1 salle de conférence
- Accessible aux fauteuils roulants
3750 Convoy St - 3e étage - ste 311
| Taille | 2 452 pi² |
| Terme | Négociable |
| Taux de location | Sur demande |
| Utilisation de l’espace | Bureau/Médical |
| Aménagement | selon spécifications |
| Disponible | Maintenant |
Medical buildout. 8 exam rooms, 4 offices, reception and large open area. Medical Spec suite underway.
- Convient pour 7 à 20 personnes
- 4 bureaux privés
- Aire de réception
Aperçu du parc
Emplacement pratique de Kearny Mesa. Excellent accès à l'autoroute par I-805, autoroute 163, autoroute 52 et I-15.
Présenté par
Kearny Mesa Crossroads | San Diego, CA 92111
Hmm, il semble y avoir eu une erreur lors de l’envoi de votre message. Veuillez réessayer.
Merci! Votre message a été envoyé.


















