Se Connecter/S’inscrire
Votre courriel a été envoyé.
Certaines informations ont été traduites automatiquement.
Faits saillants
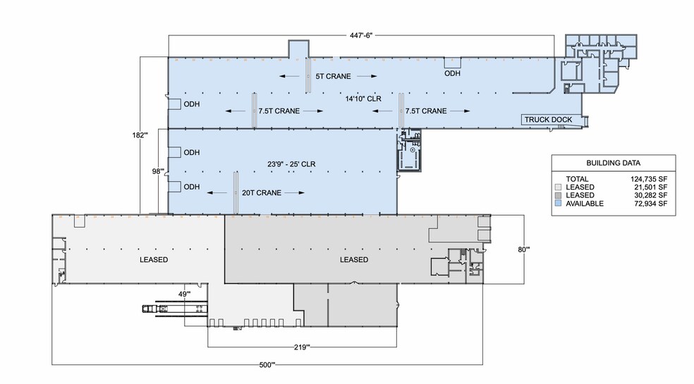
- Available space has 4 overhead cranes. one 20 ton, two 7.5 ton and one 5 ton.
- 480 3ph. power
Caractéristiques
Hauteur libre
25’
Baies d’entrée
5
Portes de quai de chargement intérieures
1
Places de stationnement standard
175
Tous les espaces disponibles(1)
Afficher les taux de location en
- Espace
- Taille
- Terme
- Taux de location
- Utilisation de l’espace
- État
- Disponible
- Le taux de location ne comprend pas les services publics, les services de bâtiment ou les dépenses immobilières.
| Espace | Taille | Terme | Taux de location | Utilisation de l’espace | État | Disponible |
| 1er étage | 72 934 pi² | Négociable | 5,39 $ CAD/pi²/an 0,45 $ CAD/pi²/mois 393 098 $ CAD/an 32 758 $ CAD/mois | Industriel | construction complète | Maintenant |
1er étage
| Taille |
| 72 934 pi² |
| Terme |
| Négociable |
| Taux de location |
| 5,39 $ CAD/pi²/an 0,45 $ CAD/pi²/mois 393 098 $ CAD/an 32 758 $ CAD/mois |
| Utilisation de l’espace |
| Industriel |
| État |
| construction complète |
| Disponible |
| Maintenant |
1er étage
| Taille | 72 934 pi² |
| Terme | Négociable |
| Taux de location | 5,39 $ CAD/pi²/an |
| Utilisation de l’espace | Industriel |
| État | construction complète |
| Disponible | Maintenant |
- Le taux de location ne comprend pas les services publics, les services de bâtiment ou les dépenses immobilières.
Aperçu de la propriété
Bâtiment industriel multi-locataires avec alimentation électrique puissante, ponts roulants, espace de cour, quais de chargement, portes d'accès au sol et bureaux aménagés.
Faits sur l’installation entrepôt
Taille du bâtiment
121 503 pi²
Taille du lot
4,33 AC
Année de construction/rénovation
1936/2015
Construction
Maçonnerie
Système de gicleur
Humide
Alimentation électrique
Volts: 480 Phase: 3
Zonage
I-2 - Industriel lourd
Sélectionner des locataires
- Étage
- Nom du locataire
- Secteur
- 1ᵉʳ
- Alloys Unlimited & Processing
- Grossiste
1 de 17
Vidéos
Visite extérieure 3D Matterport
Visite 3D Matterport
Photos
Vue depuis la rue
Rue
Carte
Présenté par
3760 Oakwood Ave
Vous êtes déjà membre? Connectez-vous
Hmm, il semble y avoir eu une erreur lors de l’envoi de votre message. Veuillez réessayer.
Merci! Votre message a été envoyé.
Votre message a été envoyé !
Activez votre compte LoopNet dès maintenant pour suivre les propriétés, recevoir des alertes en temps réel, gagner du temps sur vos demandes futures et bien plus encore.




