Se Connecter/S’inscrire
Votre courriel a été envoyé.
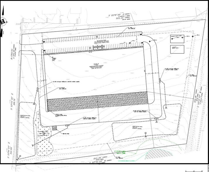
38 Route 31 N Lot • Terrain commercial • 12 Acres • 6 848 550 $ CAD • Pennington, NJ 08534



Certaines informations ont été traduites automatiquement.
Résumé de l'annonce
High, dry, level and open. Over 450' frontage along Route 31. Ideal for retail, office, recreation, auto and more.
Faits sur la propriété
1 Lot disponible
Lot
| Prix | 6 848 550 $ CAD | Taille du lot | 12,00 AC |
| Prix par AC | 570 712,49 $ CAD |
| Prix | 6 848 550 $ CAD |
| Prix par AC | 570 712,49 $ CAD |
| Taille du lot | 12,00 AC |
Élevé, sec, à niveau et ouvert. Plus de 500 pieds de façade le long de la route 31. Idéal pour le commerce de détail, le bureau, les loisirs, l'automobile et plus encore. Site propre, terres humides et environnement disponibles
Description
High and dry, wide open site. Very suitable for development. Great visibility and access. Wide range of industrial and commercial uses. Owner would consider JV for qualified project.
1 1
Plutôt praticable à pied
20/100
Exceptionnellement facile d’accès en voiture
100/100
Impraticable en vélo
10/100
1 de 5
Vidéos
Visite extérieure 3D Matterport
Visite 3D Matterport
Photos
Vue depuis la rue
Rue
Carte
1 de 1
Présenté par
38 Route 31 N
Vous êtes déjà membre? Connectez-vous
Hmm, il semble y avoir eu une erreur lors de l’envoi de votre message. Veuillez réessayer.
Merci! Votre message a été envoyé.
