Votre courriel a été envoyé.
Certaines informations ont été traduites automatiquement.
FAITS SAILLANTS
- CVC contrôlé par le locataire
- À distance de conversation d'hôtels et de restaurants remarquables
- À quelques pas de Madison Square Park
TOUS LES ESPACES DISPONIBLES(16)
Afficher les taux de location en
- ESPACE
- TAILLE
- TERME
- TAUX DE LOCATION
- UTILISATION DE L’ESPACE
- ÉTAT
- DISPONIBLE
Whiteboxed Space.
- Partiellement construit comme Bureau standard
- Espace en excellent état
- Plan ouvert
- Disposition du plan d’étage ouverte
- Plafond exposé
Space is currently raw with great southern exposure & a lot of natural light. Landlord will build to suit using High-end creative finishes. We are working with COOKFOX on an Amenity Center, lobby renovation, elevator cab upgrades, common areas, bathrooms, etc.
- Disposition du plan d’étage ouverte en général
- Espace en excellent état
Incredible prebuild underway, with mix of offices, meeting rooms, large open area, and collaborative pantry. We are working with COOKFOX on an Amenity Center, lobby renovation, elevator cab upgrades, common areas, bathrooms, etc.
- Entièrement construit comme Bureau standard
- 3 bureaux privés
- Disposition du plan d’étage ouverte en général
- 1 salle de conférence
Raw space. Landlord will provide full NBI using high-end creative finishes. We are working with COOKFOX on an Amenity Center, lobby renovation, elevator cab upgrades, common areas, bathrooms, etc.
- Entièrement construit comme Bureau standard
- 3 bureaux privés
- Climatisation centrale
- Disposition du plan d’étage ouverte en général
- 1 salle de conférence
- Aire de réception
Raw space. Landlord will provide full NBI using high-end creative finishes. We are working with COOKFOX on an Amenity Center, lobby renovation, elevator cab upgrades, common areas, bathrooms, etc.
- Entièrement construit comme Bureau standard
- 2 bureaux privés
- Espace en excellent état
- Disposition du plan d’étage ouverte en général
- 1 salle de conférence
Space is currently built with mix of offices, conference rooms, & large open area. Overlooking Park Avenue with phenomenal natural light. Landlord will provide full NBI using High-end creative finishes. We are working with COOKFOX on an Amenity Center, lobby renovation, elevator cab upgrades, common areas, bathrooms, etc.
- Entièrement construit comme Bureau standard
- Espace en excellent état
- 4 bureaux privés
Space currently built nicely with Glass Conference Room, wet pantry, and Large open area. Landlord will provide full NBI using High-end creative finishes. Can be combined with Suite 817 for a total of 4,937 RSF. We are working with COOKFOX on an Amenity Center, lobby renovation, elevator cab upgrades, common areas, bathrooms, etc.
- Entièrement construit comme Bureau standard
- 1 salle de conférence
- Disposition du plan d’étage ouverte
Raw space. Landlord will provide full NBI using High-end creative finishes. Can be combined with Suite 815 for a total of 4,937 RSF We are working with COOKFOX on an Amenity Center, lobby renovation, elevator cab upgrades, common areas, bathrooms, etc.
Newly built space with 3 offices, 1 conference room, wet pantry, and open area. Furniture included. Overlooking Park Avenue with 3 sides of windows and phenomenal natural light. We are working with COOKFOX on an Amenity Center, lobby renovation, elevator cab upgrades, common areas, bathrooms, etc.
- 3 bureaux privés
- Climatisation centrale
- 1 salle de conférence
- Cuisine
Furnished Prebuild underway thoughtfully designed with high-end finishes. We are working with COOKFOX on an Amenity Center, lobby renovation, elevator cab upgrades, common areas, bathrooms, etc.
- Entièrement construit comme Bureau standard
- CVCA disponible après les heures de travail
- Climatisation centrale
Space currently built with 2 glass fronted offices and open area. Landlord will provide full NBI or modify as needed. We are working with COOKFOX on an Amenity Center, lobby renovation, elevator cab upgrades, common areas, bathrooms, etc.
- Entièrement construit comme Bureau standard
- Espace en excellent état
- 5 bureaux privés
- Climatisation centrale
Raw space. Landlord will provide full NBI using High-end creative finishes. We are working with COOKFOX on an Amenity Center, lobby renovation, elevator cab upgrades, common areas, bathrooms, etc.
- Entièrement construit comme Bureau standard
- Espace en excellent état
- 5 bureaux privés
- Climatisation centrale
Space currently in white box condition, all open with very high ceilings and great northern light. Landlord will provide full NBI. We are working with COOKFOX on an Amenity Center, lobby renovation, elevator cab upgrades, common areas, bathrooms, etc.
- Entièrement construit comme Bureau standard
- Espace en excellent état
- Lumière naturelle
- Disposition du plan d’étage ouverte en général
- Climatisation centrale
- Plan ouvert
Space currently in white box condition, all open with very high ceilings and great northern light. Landlord will provide full NBI. We are working with COOKFOX on an Amenity Center, lobby renovation, elevator cab upgrades, common areas, bathrooms, etc.
- Entièrement construit comme Bureau standard
- Espace en excellent état
- Disposition intensive du bureau
Space is white boxed with phenomenal light and views. Landlord will provide full NBI. We are working with COOKFOX on an Amenity Center, lobby renovation, elevator cab upgrades, common areas, bathrooms, etc.
- Espace en excellent état
- Plan ouvert
- Climatisation centrale
Currently built with mix of offices and open area. Landlord is planning to demolish and Whitebox. Phenomenal light and views with 4 exposures. Really special space. Landlord will provide full NBI using high-end creative finishes. We are working with COOKFOX on an Amenity Center, lobby renovation, elevator cab upgrades, new common areas, bathrooms, etc.
- Entièrement construit comme Bureau standard
- Espace en excellent état
| Espace | Taille | Terme | Taux de location | Utilisation de l’espace | État | Disponible |
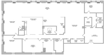
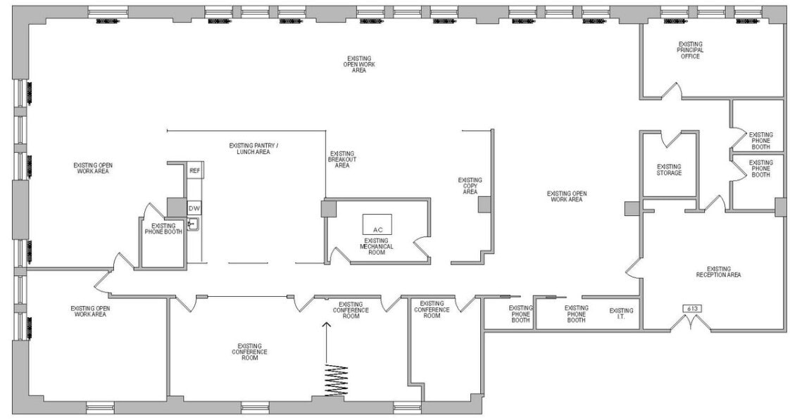
| 3e étage, ste 300 | 14 710 pi² | Négociable | Sur demande Sur demande Sur demande Sur demande | Bureau | construction partielle | Maintenant |
| 4e étage, ste 428 | 2 868 pi² | Négociable | Sur demande Sur demande Sur demande Sur demande | Bureau/Médical | construction complète | 2026-01-01 |
| 6e étage, ste 601 | 7 851 pi² | Négociable | Sur demande Sur demande Sur demande Sur demande | Bureau | construction complète | Maintenant |
| 6e étage, ste 615 | 1 343 pi² | Négociable | Sur demande Sur demande Sur demande Sur demande | Bureau | construction complète | Maintenant |
| 6e étage, ste 621 | 2 459 pi² | Négociable | Sur demande Sur demande Sur demande Sur demande | Bureau | construction complète | Maintenant |
| 8e étage, ste 801 | 4 461 pi² | Négociable | Sur demande Sur demande Sur demande Sur demande | Bureau | construction complète | Maintenant |
| 8e étage, ste 815 | 2 727 à 4 937 pi² | Négociable | Sur demande Sur demande Sur demande Sur demande | Bureau | construction complète | Maintenant |
| 8e étage, ste 817 | 2 210 pi² | Négociable | Sur demande Sur demande Sur demande Sur demande | Bureau | - | Maintenant |
| 10e étage, ste 1001 | 5 362 pi² | Négociable | Sur demande Sur demande Sur demande Sur demande | Bureau | - | Maintenant |
| 10e étage, ste 1015 | 3 557 pi² | Négociable | Sur demande Sur demande Sur demande Sur demande | Bureau | construction complète | 30 jours |
| 11e étage, ste 1118 | 1 433 pi² | Négociable | Sur demande Sur demande Sur demande Sur demande | Bureau | construction complète | Maintenant |
| 11e étage, ste 1120 | 3 261 pi² | Négociable | Sur demande Sur demande Sur demande Sur demande | Bureau | construction complète | Maintenant |
| 12e étage, ste 1214 | 2 834 pi² | Négociable | Sur demande Sur demande Sur demande Sur demande | Bureau | construction complète | Maintenant |
| 12e étage, ste 1216 | 2 955 pi² | Négociable | Sur demande Sur demande Sur demande Sur demande | Bureau | construction complète | Maintenant |
| 13e étage, ste 1310 | 1 848 pi² | Négociable | Sur demande Sur demande Sur demande Sur demande | Bureau | espace cloisonné | Maintenant |
| 15e étage, ste 1500 | 14 535 pi² | Négociable | Sur demande Sur demande Sur demande Sur demande | Bureau | construction complète | Maintenant |
3e étage, ste 300
| Taille |
| 14 710 pi² |
| Terme |
| Négociable |
| Taux de location |
| Sur demande Sur demande Sur demande Sur demande |
| Utilisation de l’espace |
| Bureau |
| État |
| construction partielle |
| Disponible |
| Maintenant |
4e étage, ste 428
| Taille |
| 2 868 pi² |
| Terme |
| Négociable |
| Taux de location |
| Sur demande Sur demande Sur demande Sur demande |
| Utilisation de l’espace |
| Bureau/Médical |
| État |
| construction complète |
| Disponible |
| 2026-01-01 |
6e étage, ste 601
| Taille |
| 7 851 pi² |
| Terme |
| Négociable |
| Taux de location |
| Sur demande Sur demande Sur demande Sur demande |
| Utilisation de l’espace |
| Bureau |
| État |
| construction complète |
| Disponible |
| Maintenant |
6e étage, ste 615
| Taille |
| 1 343 pi² |
| Terme |
| Négociable |
| Taux de location |
| Sur demande Sur demande Sur demande Sur demande |
| Utilisation de l’espace |
| Bureau |
| État |
| construction complète |
| Disponible |
| Maintenant |
6e étage, ste 621
| Taille |
| 2 459 pi² |
| Terme |
| Négociable |
| Taux de location |
| Sur demande Sur demande Sur demande Sur demande |
| Utilisation de l’espace |
| Bureau |
| État |
| construction complète |
| Disponible |
| Maintenant |
8e étage, ste 801
| Taille |
| 4 461 pi² |
| Terme |
| Négociable |
| Taux de location |
| Sur demande Sur demande Sur demande Sur demande |
| Utilisation de l’espace |
| Bureau |
| État |
| construction complète |
| Disponible |
| Maintenant |
8e étage, ste 815
| Taille |
| 2 727 à 4 937 pi² |
| Terme |
| Négociable |
| Taux de location |
| Sur demande Sur demande Sur demande Sur demande |
| Utilisation de l’espace |
| Bureau |
| État |
| construction complète |
| Disponible |
| Maintenant |
8e étage, ste 817
| Taille |
| 2 210 pi² |
| Terme |
| Négociable |
| Taux de location |
| Sur demande Sur demande Sur demande Sur demande |
| Utilisation de l’espace |
| Bureau |
| État |
| - |
| Disponible |
| Maintenant |
10e étage, ste 1001
| Taille |
| 5 362 pi² |
| Terme |
| Négociable |
| Taux de location |
| Sur demande Sur demande Sur demande Sur demande |
| Utilisation de l’espace |
| Bureau |
| État |
| - |
| Disponible |
| Maintenant |
10e étage, ste 1015
| Taille |
| 3 557 pi² |
| Terme |
| Négociable |
| Taux de location |
| Sur demande Sur demande Sur demande Sur demande |
| Utilisation de l’espace |
| Bureau |
| État |
| construction complète |
| Disponible |
| 30 jours |
11e étage, ste 1118
| Taille |
| 1 433 pi² |
| Terme |
| Négociable |
| Taux de location |
| Sur demande Sur demande Sur demande Sur demande |
| Utilisation de l’espace |
| Bureau |
| État |
| construction complète |
| Disponible |
| Maintenant |
11e étage, ste 1120
| Taille |
| 3 261 pi² |
| Terme |
| Négociable |
| Taux de location |
| Sur demande Sur demande Sur demande Sur demande |
| Utilisation de l’espace |
| Bureau |
| État |
| construction complète |
| Disponible |
| Maintenant |
12e étage, ste 1214
| Taille |
| 2 834 pi² |
| Terme |
| Négociable |
| Taux de location |
| Sur demande Sur demande Sur demande Sur demande |
| Utilisation de l’espace |
| Bureau |
| État |
| construction complète |
| Disponible |
| Maintenant |
12e étage, ste 1216
| Taille |
| 2 955 pi² |
| Terme |
| Négociable |
| Taux de location |
| Sur demande Sur demande Sur demande Sur demande |
| Utilisation de l’espace |
| Bureau |
| État |
| construction complète |
| Disponible |
| Maintenant |
13e étage, ste 1310
| Taille |
| 1 848 pi² |
| Terme |
| Négociable |
| Taux de location |
| Sur demande Sur demande Sur demande Sur demande |
| Utilisation de l’espace |
| Bureau |
| État |
| espace cloisonné |
| Disponible |
| Maintenant |
15e étage, ste 1500
| Taille |
| 14 535 pi² |
| Terme |
| Négociable |
| Taux de location |
| Sur demande Sur demande Sur demande Sur demande |
| Utilisation de l’espace |
| Bureau |
| État |
| construction complète |
| Disponible |
| Maintenant |
3e étage, ste 300
| Taille | 14 710 pi² |
| Terme | Négociable |
| Taux de location | Sur demande |
| Utilisation de l’espace | Bureau |
| État | construction partielle |
| Disponible | Maintenant |
Whiteboxed Space.
- Partiellement construit comme Bureau standard
- Disposition du plan d’étage ouverte
- Espace en excellent état
- Plafond exposé
- Plan ouvert
4e étage, ste 428
| Taille | 2 868 pi² |
| Terme | Négociable |
| Taux de location | Sur demande |
| Utilisation de l’espace | Bureau/Médical |
| État | construction complète |
| Disponible | 2026-01-01 |
Space is currently raw with great southern exposure & a lot of natural light. Landlord will build to suit using High-end creative finishes. We are working with COOKFOX on an Amenity Center, lobby renovation, elevator cab upgrades, common areas, bathrooms, etc.
- Disposition du plan d’étage ouverte en général
- Espace en excellent état
6e étage, ste 601
| Taille | 7 851 pi² |
| Terme | Négociable |
| Taux de location | Sur demande |
| Utilisation de l’espace | Bureau |
| État | construction complète |
| Disponible | Maintenant |
Incredible prebuild underway, with mix of offices, meeting rooms, large open area, and collaborative pantry. We are working with COOKFOX on an Amenity Center, lobby renovation, elevator cab upgrades, common areas, bathrooms, etc.
- Entièrement construit comme Bureau standard
- Disposition du plan d’étage ouverte en général
- 3 bureaux privés
- 1 salle de conférence
6e étage, ste 615
| Taille | 1 343 pi² |
| Terme | Négociable |
| Taux de location | Sur demande |
| Utilisation de l’espace | Bureau |
| État | construction complète |
| Disponible | Maintenant |
Raw space. Landlord will provide full NBI using high-end creative finishes. We are working with COOKFOX on an Amenity Center, lobby renovation, elevator cab upgrades, common areas, bathrooms, etc.
- Entièrement construit comme Bureau standard
- Disposition du plan d’étage ouverte en général
- 3 bureaux privés
- 1 salle de conférence
- Climatisation centrale
- Aire de réception
6e étage, ste 621
| Taille | 2 459 pi² |
| Terme | Négociable |
| Taux de location | Sur demande |
| Utilisation de l’espace | Bureau |
| État | construction complète |
| Disponible | Maintenant |
Raw space. Landlord will provide full NBI using high-end creative finishes. We are working with COOKFOX on an Amenity Center, lobby renovation, elevator cab upgrades, common areas, bathrooms, etc.
- Entièrement construit comme Bureau standard
- Disposition du plan d’étage ouverte en général
- 2 bureaux privés
- 1 salle de conférence
- Espace en excellent état
8e étage, ste 801
| Taille | 4 461 pi² |
| Terme | Négociable |
| Taux de location | Sur demande |
| Utilisation de l’espace | Bureau |
| État | construction complète |
| Disponible | Maintenant |
Space is currently built with mix of offices, conference rooms, & large open area. Overlooking Park Avenue with phenomenal natural light. Landlord will provide full NBI using High-end creative finishes. We are working with COOKFOX on an Amenity Center, lobby renovation, elevator cab upgrades, common areas, bathrooms, etc.
- Entièrement construit comme Bureau standard
- 4 bureaux privés
- Espace en excellent état
8e étage, ste 815
| Taille | 2 727 à 4 937 pi² |
| Terme | Négociable |
| Taux de location | Sur demande |
| Utilisation de l’espace | Bureau |
| État | construction complète |
| Disponible | Maintenant |
Space currently built nicely with Glass Conference Room, wet pantry, and Large open area. Landlord will provide full NBI using High-end creative finishes. Can be combined with Suite 817 for a total of 4,937 RSF. We are working with COOKFOX on an Amenity Center, lobby renovation, elevator cab upgrades, common areas, bathrooms, etc.
- Entièrement construit comme Bureau standard
- Disposition du plan d’étage ouverte
- 1 salle de conférence
8e étage, ste 817
| Taille | 2 210 pi² |
| Terme | Négociable |
| Taux de location | Sur demande |
| Utilisation de l’espace | Bureau |
| État | - |
| Disponible | Maintenant |
Raw space. Landlord will provide full NBI using High-end creative finishes. Can be combined with Suite 815 for a total of 4,937 RSF We are working with COOKFOX on an Amenity Center, lobby renovation, elevator cab upgrades, common areas, bathrooms, etc.
10e étage, ste 1001
| Taille | 5 362 pi² |
| Terme | Négociable |
| Taux de location | Sur demande |
| Utilisation de l’espace | Bureau |
| État | - |
| Disponible | Maintenant |
Newly built space with 3 offices, 1 conference room, wet pantry, and open area. Furniture included. Overlooking Park Avenue with 3 sides of windows and phenomenal natural light. We are working with COOKFOX on an Amenity Center, lobby renovation, elevator cab upgrades, common areas, bathrooms, etc.
- 3 bureaux privés
- 1 salle de conférence
- Climatisation centrale
- Cuisine
10e étage, ste 1015
| Taille | 3 557 pi² |
| Terme | Négociable |
| Taux de location | Sur demande |
| Utilisation de l’espace | Bureau |
| État | construction complète |
| Disponible | 30 jours |
Furnished Prebuild underway thoughtfully designed with high-end finishes. We are working with COOKFOX on an Amenity Center, lobby renovation, elevator cab upgrades, common areas, bathrooms, etc.
- Entièrement construit comme Bureau standard
- Climatisation centrale
- CVCA disponible après les heures de travail
11e étage, ste 1118
| Taille | 1 433 pi² |
| Terme | Négociable |
| Taux de location | Sur demande |
| Utilisation de l’espace | Bureau |
| État | construction complète |
| Disponible | Maintenant |
Space currently built with 2 glass fronted offices and open area. Landlord will provide full NBI or modify as needed. We are working with COOKFOX on an Amenity Center, lobby renovation, elevator cab upgrades, common areas, bathrooms, etc.
- Entièrement construit comme Bureau standard
- 5 bureaux privés
- Espace en excellent état
- Climatisation centrale
11e étage, ste 1120
| Taille | 3 261 pi² |
| Terme | Négociable |
| Taux de location | Sur demande |
| Utilisation de l’espace | Bureau |
| État | construction complète |
| Disponible | Maintenant |
Raw space. Landlord will provide full NBI using High-end creative finishes. We are working with COOKFOX on an Amenity Center, lobby renovation, elevator cab upgrades, common areas, bathrooms, etc.
- Entièrement construit comme Bureau standard
- 5 bureaux privés
- Espace en excellent état
- Climatisation centrale
12e étage, ste 1214
| Taille | 2 834 pi² |
| Terme | Négociable |
| Taux de location | Sur demande |
| Utilisation de l’espace | Bureau |
| État | construction complète |
| Disponible | Maintenant |
Space currently in white box condition, all open with very high ceilings and great northern light. Landlord will provide full NBI. We are working with COOKFOX on an Amenity Center, lobby renovation, elevator cab upgrades, common areas, bathrooms, etc.
- Entièrement construit comme Bureau standard
- Disposition du plan d’étage ouverte en général
- Espace en excellent état
- Climatisation centrale
- Lumière naturelle
- Plan ouvert
12e étage, ste 1216
| Taille | 2 955 pi² |
| Terme | Négociable |
| Taux de location | Sur demande |
| Utilisation de l’espace | Bureau |
| État | construction complète |
| Disponible | Maintenant |
Space currently in white box condition, all open with very high ceilings and great northern light. Landlord will provide full NBI. We are working with COOKFOX on an Amenity Center, lobby renovation, elevator cab upgrades, common areas, bathrooms, etc.
- Entièrement construit comme Bureau standard
- Disposition intensive du bureau
- Espace en excellent état
13e étage, ste 1310
| Taille | 1 848 pi² |
| Terme | Négociable |
| Taux de location | Sur demande |
| Utilisation de l’espace | Bureau |
| État | espace cloisonné |
| Disponible | Maintenant |
Space is white boxed with phenomenal light and views. Landlord will provide full NBI. We are working with COOKFOX on an Amenity Center, lobby renovation, elevator cab upgrades, common areas, bathrooms, etc.
- Espace en excellent état
- Climatisation centrale
- Plan ouvert
15e étage, ste 1500
| Taille | 14 535 pi² |
| Terme | Négociable |
| Taux de location | Sur demande |
| Utilisation de l’espace | Bureau |
| État | construction complète |
| Disponible | Maintenant |
Currently built with mix of offices and open area. Landlord is planning to demolish and Whitebox. Phenomenal light and views with 4 exposures. Really special space. Landlord will provide full NBI using high-end creative finishes. We are working with COOKFOX on an Amenity Center, lobby renovation, elevator cab upgrades, new common areas, bathrooms, etc.
- Entièrement construit comme Bureau standard
- Espace en excellent état
APERÇU DE LA PROPRIÉTÉ
Propriété et exploité par ATCO, le 381 Park Avenue South est un immeuble de bureaux commerciaux de 17 étages (16 plus PH) et plus de 228 000 pieds carrés situé sur Park Avenue South, entre les 27e et 26e rues, dans le quartier Flatiron de Manhattan. Construit au début des années 1900, cet édifice reflète l'architecture des bâtiments classiques. Célébrant la beauté du vieux New York, la façade en terre cuite est remplie d'arcs en éventail complexes, d'épandeaux cannelés, de seuils, de jambages, de linteaux, de colonnes ornées et d'urnes décoratives. Le bâtiment offre d'excellentes vues sur le nord et l'ouest, ce qui permet des expositions ensoleillées et des planchers souples.
- Ligne d'autobus
- Centre de conditionnement physique
- Métro
FAITS SUR LA PROPRIÉTÉ
Présenté par
381 Park Ave S
Hmm, il semble y avoir eu une erreur lors de l’envoi de votre message. Veuillez réessayer.
Merci! Votre message a été envoyé.

































