Se Connecter/S’inscrire
Votre courriel a été envoyé.
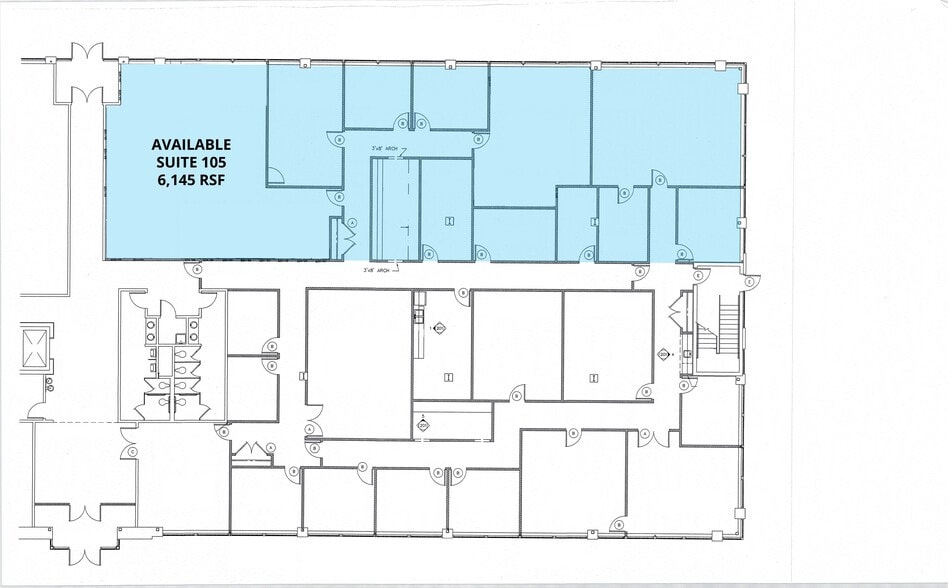
Brookfield Center 38275 W Twelve Mile Rd 6 145–24 105 pi² d'espace disponible • Bureau • Farmington Hills, MI 48331



Certaines informations ont été traduites automatiquement.
Faits saillants
- Stationnement pratique
- Entrée de la suite proéminente
- All Common Areas Fully Rennovated
- Géré par des professionnels
- Professionally Managed Property
- Signage Opportunities Available
Tous les espaces disponibles(2)
Afficher les taux de location en
- Espace
- Taille
- Terme
- Taux de location
- Utilisation de l’espace
- Aménagement
- Disponible
- Le taux inscrit peut ne pas comprendre certains services publics, les services de bâtiment et les dépenses immobilières.
- Disposition du plan d’étage ouverte en général
- Entièrement construit comme Bureau de services professionnels
- Espace en excellent état
This professionally managed 2-story office building offers up to 6,145 square feet on the 1st floor and up to 17,690 square feet (full floor) on the 2nd floor.
- Taux de location inscrit plus part proportionnelle des coûts de la consommation électrique
- Disposition du plan d’étage ouverte en général
- Entièrement construit comme Bureau de services professionnels
- Espace en excellent état
| Espace | Taille | Terme | Taux de location | Utilisation de l’espace | Aménagement | Disponible |
| 1er étage, ste 105 | 6 145 pi² | Négociable | 23,35 $ CAD/pi²/an 1,95 $ CAD/pi²/mois 143 477 $ CAD/an 11 956 $ CAD/mois | Bureau | construction complète | Maintenant |
| 2e étage, ste 200 | 17 960 pi² | Négociable | 23,35 $ CAD/pi²/an 1,95 $ CAD/pi²/mois 419 341 $ CAD/an 34 945 $ CAD/mois | Bureau | construction complète | Maintenant |
1er étage, ste 105
| Taille |
| 6 145 pi² |
| Terme |
| Négociable |
| Taux de location |
| 23,35 $ CAD/pi²/an 1,95 $ CAD/pi²/mois 143 477 $ CAD/an 11 956 $ CAD/mois |
| Utilisation de l’espace |
| Bureau |
| Aménagement |
| construction complète |
| Disponible |
| Maintenant |
2e étage, ste 200
| Taille |
| 17 960 pi² |
| Terme |
| Négociable |
| Taux de location |
| 23,35 $ CAD/pi²/an 1,95 $ CAD/pi²/mois 419 341 $ CAD/an 34 945 $ CAD/mois |
| Utilisation de l’espace |
| Bureau |
| Aménagement |
| construction complète |
| Disponible |
| Maintenant |
1 de 1
Vidéos
Visite extérieure 3D Matterport
Visite 3D Matterport
Photos
Vue depuis la rue
Rue
Carte
1er étage, ste 105
| Taille | 6 145 pi² |
| Terme | Négociable |
| Taux de location | 23,35 $ CAD/pi²/an |
| Utilisation de l’espace | Bureau |
| Aménagement | construction complète |
| Disponible | Maintenant |
- Le taux inscrit peut ne pas comprendre certains services publics, les services de bâtiment et les dépenses immobilières.
- Entièrement construit comme Bureau de services professionnels
- Disposition du plan d’étage ouverte en général
- Espace en excellent état
1 de 1
Vidéos
Visite extérieure 3D Matterport
Visite 3D Matterport
Photos
Vue depuis la rue
Rue
Carte
2e étage, ste 200
| Taille | 17 960 pi² |
| Terme | Négociable |
| Taux de location | 23,35 $ CAD/pi²/an |
| Utilisation de l’espace | Bureau |
| Aménagement | construction complète |
| Disponible | Maintenant |
This professionally managed 2-story office building offers up to 6,145 square feet on the 1st floor and up to 17,690 square feet (full floor) on the 2nd floor.
- Taux de location inscrit plus part proportionnelle des coûts de la consommation électrique
- Entièrement construit comme Bureau de services professionnels
- Disposition du plan d’étage ouverte en général
- Espace en excellent état
Aperçu de la propriété
Immeuble de bureaux de deux étages géré par des professionnels à proximité des M-5 et I-696.
- Système de sécurité
- Affichage
Faits sur la propriété
Type de bâtiment
Bureau
Année de construction
2001
Hauteur du bâtiment
2 étages
Taille du bâtiment
35 365 pi²
Classe d’immeuble
B
Superficie de plancher typique
17 683 pi²
Stationnement
145 places de stationnement surface
1 1
Assez praticable à pied
50/100
Exceptionnellement facile d’accès en voiture
100/100
Transports en commun limités
30/100
Plutôt praticable en vélo
50/100
1 de 4
Vidéos
Visite extérieure 3D Matterport
Visite 3D Matterport
Photos
Vue depuis la rue
Rue
Carte
1 de 1
Présenté par
Brookfield Center | 38275 W Twelve Mile Rd
Vous êtes déjà membre? Connectez-vous
Hmm, il semble y avoir eu une erreur lors de l’envoi de votre message. Veuillez réessayer.
Merci! Votre message a été envoyé.




