Se Connecter/S’inscrire
Votre courriel a été envoyé.
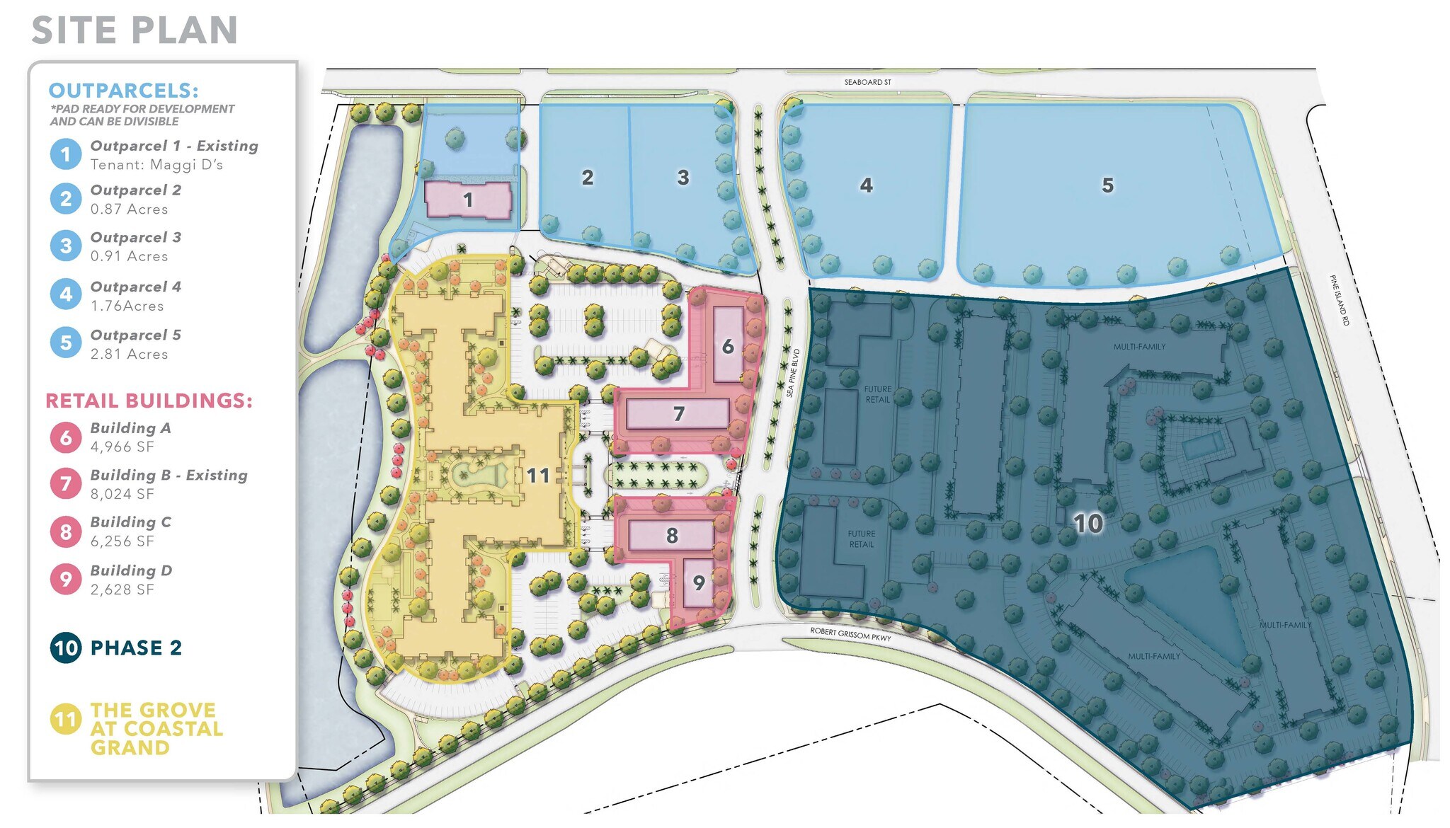
387 Seaboard St
Myrtle Beach, SC 29577
Pine Island Point - Outparcel 3 · Terrain À louer


Certaines informations ont été traduites automatiquement.
FAITS SUR LA PROPRIÉTÉ
| Superficie totale disponible | 0,91 AC | Sous-type de propriété | Terrain commercial |
| Type de propriété | Terrain | Utilisation proposée | Commercial |
| Superficie totale disponible | 0,91 AC |
| Type de propriété | Terrain |
| Sous-type de propriété | Terrain commercial |
| Utilisation proposée | Commercial |
1 de 4
VIDÉOS
VISITE EXTÉRIEURE 3D MATTERPORT
VISITE 3D MATTERPORT
PHOTOS
VUE DEPUIS LA RUE
RUE
CARTE
