Se Connecter/S’inscrire
Votre courriel a été envoyé.
39-17 24th St 6 850 pi² Industriel Immeuble Long Island City, NY 11101 3 926 730 $ CAD (573,25 $ CAD/pi²)



Certaines informations ont été traduites automatiquement.
FAITS SAILLANTS DE L'INVESTISSEMENT
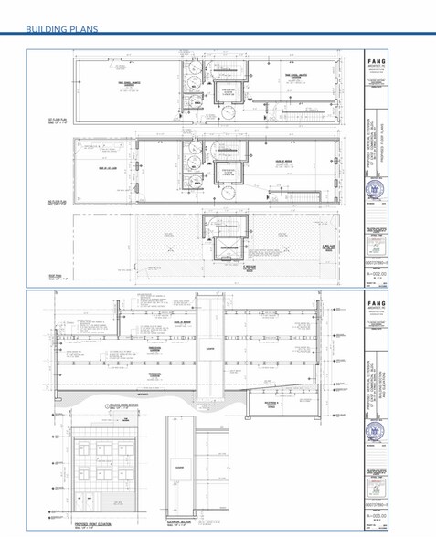
- LIC Mixed Use Development Site with Approved Plans for Sale
- M1-2/R5B/LIC zoning allows for residential, industrial or commercial uses
- A perfect project for a live-work end user, or any developer looking to capitalize on the LIC development boom
- Proposed 6,900 sqft Three Story Building with 700 sqft Cellar - Opportunity Zone Location
- The subject property is being sold with approved plans in hand, and currently has all electric, gas, water and sewer services connected.
RÉSUMÉ DE L'ANNONCE
Kaplon-Belo Real Estate LLC is pleased to present 39-17 24th Street, a prime mixed use redevelopment site located in the Dutch Kills neighborhood of Long Island City. The subject property is being sold with approved plans in hand, and currently has all electric, gas, water and sewer services connected. The M1-2/R5B/LIC zoning allows for residential, industrial or commercial uses. A perfect project for a live-work end user, or any developer looking to capitalize on the LIC development boom. For additional information, please contact Kaplon-Belo.
FAITS SUR LA PROPRIÉTÉ
SERVICES PUBLICS
- Chauffage - Gaz
Walk Score®
Un paradis pour un marcheur (96)
Transit Score®
Un paradis pour conducteur (100)
Bike Score®
Très cyclable (87)
Impôts fonciers
| Numéro de lot | 00395-0015 | Évaluation des bâtiments | 285 799 $ CAD |
| Évaluation du terrain | 95 182 $ CAD | Évaluation totale | 380 981 $ CAD |
Impôts fonciers
Numéro de lot
00395-0015
Évaluation du terrain
95 182 $ CAD
Évaluation des bâtiments
285 799 $ CAD
Évaluation totale
380 981 $ CAD
1 de 8
VIDÉOS
VISITE EXTÉRIEURE 3D MATTERPORT
VISITE 3D MATTERPORT
PHOTOS
VUE DEPUIS LA RUE
RUE
CARTE
Présenté par
39-17 24th St
Vous êtes déjà membre? Connectez-vous
Hmm, il semble y avoir eu une erreur lors de l’envoi de votre message. Veuillez réessayer.
Merci! Votre message a été envoyé.

