Votre courriel a été envoyé.
390 Hastings St W 13 957–28 650 pi² d'espace disponible • Bureau/Commerce de détail • Vancouver, BC V6B 1K6



Certaines informations ont été traduites automatiquement.
Faits saillants
- Occasion rare de louer un bâtiment commercial entier au centre-ville de Vancouver
- Exposition exceptionnelle au niveau de la rue et opportunités de signalisation.
- Idéalement situé à quelques pâtés de maisons du quartier central des affaires, de Gastown, de Crosstown, de Yaletown, et de nombreux détaillants, hôtels et bureaux.
- Climatisation.
Tous les espaces disponibles(2)
Afficher les taux de location en
- Espace
- Taille
- Terme
- Taux de location
- Utilisation de l’espace
- État
- Disponible
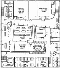
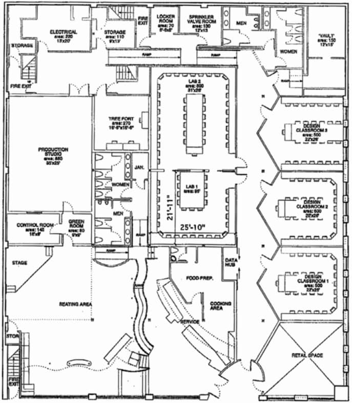
Occasion unique de louer le 390 West Hastings Street (la « Propriété »), un bâtiment commercial de deux étages situé à l'angle des rues West Hastings et Homer au centre-ville de Vancouver. L'emplacement central de la Propriété offre un accès pratique au quartier des affaires, à Gastown et à la station Waterfront – le principal centre de transit du centre-ville de Vancouver. À quelques pas de la Propriété se trouvent une multitude de restaurants, cafés, bureaux, établissements d'enseignement postsecondaire et hôtels. L'intérieur de la Propriété comprend des salles de classe, des espaces de laboratoire, des théâtres, des salles de réunion, une cafétéria et un espace de vente au détail au rez-de-chaussée. (2 197 pi² est l'espace mezzanine du rez-de-chaussée)
- Convient pour 37 à 118 personnes
- Peut être associé à un ou plusieurs espaces supplémentaires pour obtenir jusqu’à 28 650 pi² d’espace adjacent.
Occasion unique de louer le 390 West Hastings Street (la « Propriété »), un bâtiment commercial de deux étages situé à l'angle des rues West Hastings et Homer, au centre-ville de Vancouver. L'emplacement central de la Propriété offre un accès pratique au quartier des affaires, à Gastown et à la station Waterfront – le principal centre de transit du centre-ville de Vancouver. À quelques pas de la Propriété se trouvent une multitude de restaurants, cafés, bureaux, établissements d'enseignement postsecondaire et hôtels. L'intérieur de la Propriété comprend des salles de classe, des espaces de laboratoire, des théâtres, des salles de réunion, une cafétéria et un espace commercial au rez-de-chaussée. (1 477 pi² est l'espace mezzanine du rez-de-chaussée)
- Le taux inscrit peut ne pas comprendre certains services publics, les services de bâtiment et les dépenses immobilières.
- Peut être associé à un ou plusieurs espaces supplémentaires pour obtenir jusqu’à 28 650 pi² d’espace adjacent.
- Convient pour 35 à 112 personnes
| Espace | Taille | Terme | Taux de location | Utilisation de l’espace | État | Disponible |
| 1er étage | 14 693 pi² | Négociable | Sur demande Sur demande Sur demande Sur demande | Bureau/Commerce de détail | - | 30 jours |
| 2e étage | 13 957 pi² | Négociable | 22,00 $ CAD/pi²/an 1,83 $ CAD/pi²/mois 307 054 $ CAD/an 25 588 $ CAD/mois | Bureau/Commerce de détail | - | 30 jours |
1er étage
| Taille |
| 14 693 pi² |
| Terme |
| Négociable |
| Taux de location |
| Sur demande Sur demande Sur demande Sur demande |
| Utilisation de l’espace |
| Bureau/Commerce de détail |
| État |
| - |
| Disponible |
| 30 jours |
2e étage
| Taille |
| 13 957 pi² |
| Terme |
| Négociable |
| Taux de location |
| 22,00 $ CAD/pi²/an 1,83 $ CAD/pi²/mois 307 054 $ CAD/an 25 588 $ CAD/mois |
| Utilisation de l’espace |
| Bureau/Commerce de détail |
| État |
| - |
| Disponible |
| 30 jours |
1er étage
| Taille | 14 693 pi² |
| Terme | Négociable |
| Taux de location | Sur demande |
| Utilisation de l’espace | Bureau/Commerce de détail |
| État | - |
| Disponible | 30 jours |
Occasion unique de louer le 390 West Hastings Street (la « Propriété »), un bâtiment commercial de deux étages situé à l'angle des rues West Hastings et Homer au centre-ville de Vancouver. L'emplacement central de la Propriété offre un accès pratique au quartier des affaires, à Gastown et à la station Waterfront – le principal centre de transit du centre-ville de Vancouver. À quelques pas de la Propriété se trouvent une multitude de restaurants, cafés, bureaux, établissements d'enseignement postsecondaire et hôtels. L'intérieur de la Propriété comprend des salles de classe, des espaces de laboratoire, des théâtres, des salles de réunion, une cafétéria et un espace de vente au détail au rez-de-chaussée. (2 197 pi² est l'espace mezzanine du rez-de-chaussée)
- Convient pour 37 à 118 personnes
- Peut être associé à un ou plusieurs espaces supplémentaires pour obtenir jusqu’à 28 650 pi² d’espace adjacent.
2e étage
| Taille | 13 957 pi² |
| Terme | Négociable |
| Taux de location | 22,00 $ CAD/pi²/an |
| Utilisation de l’espace | Bureau/Commerce de détail |
| État | - |
| Disponible | 30 jours |
Occasion unique de louer le 390 West Hastings Street (la « Propriété »), un bâtiment commercial de deux étages situé à l'angle des rues West Hastings et Homer, au centre-ville de Vancouver. L'emplacement central de la Propriété offre un accès pratique au quartier des affaires, à Gastown et à la station Waterfront – le principal centre de transit du centre-ville de Vancouver. À quelques pas de la Propriété se trouvent une multitude de restaurants, cafés, bureaux, établissements d'enseignement postsecondaire et hôtels. L'intérieur de la Propriété comprend des salles de classe, des espaces de laboratoire, des théâtres, des salles de réunion, une cafétéria et un espace commercial au rez-de-chaussée. (1 477 pi² est l'espace mezzanine du rez-de-chaussée)
- Le taux inscrit peut ne pas comprendre certains services publics, les services de bâtiment et les dépenses immobilières.
- Convient pour 35 à 112 personnes
- Peut être associé à un ou plusieurs espaces supplémentaires pour obtenir jusqu’à 28 650 pi² d’espace adjacent.
Aperçu de la propriété
Situé à cinq minutes à pied de la station Waterfront, offrant une connectivité de transport pratique dans tout le centre-ville et la région métropolitaine de Vancouver grâce à la ligne Expo, la ligne Canada, le SeaBus, le West Coast Express et les bus qui se connectent tous à cet endroit. Les locataires de la région incluent Purebread, Nuba, Cavalier, Nemesis Coffee, Yard Athletics, Locanda dell’Orso, Water Street Cafe, Pourhouse, The Latest Scoop, Kit and Ace, et plus encore.
- Ligne d'autobus
- Accès contrôlé
- Métro
- Système de sécurité
- Climatisation
- Détecteur de fumée
Faits sur la propriété
Présenté par
390 Hastings St W
Hmm, il semble y avoir eu une erreur lors de l’envoi de votre message. Veuillez réessayer.
Merci! Votre message a été envoyé.






