Se Connecter/S’inscrire
Votre courriel a été envoyé.
Burtonsville Office Park 3 3905 National Dr 1 448 pi² d'espace disponible • Médical • Burtonsville, MD 20866



Certaines informations ont été traduites automatiquement.
TOUS LES ESPACES DISPONIBLES(1)
Afficher les taux de location en
- ESPACE
- TAILLE
- TERME
- TAUX DE LOCATION
- UTILISATION DE L’ESPACE
- ÉTAT
- DISPONIBLE
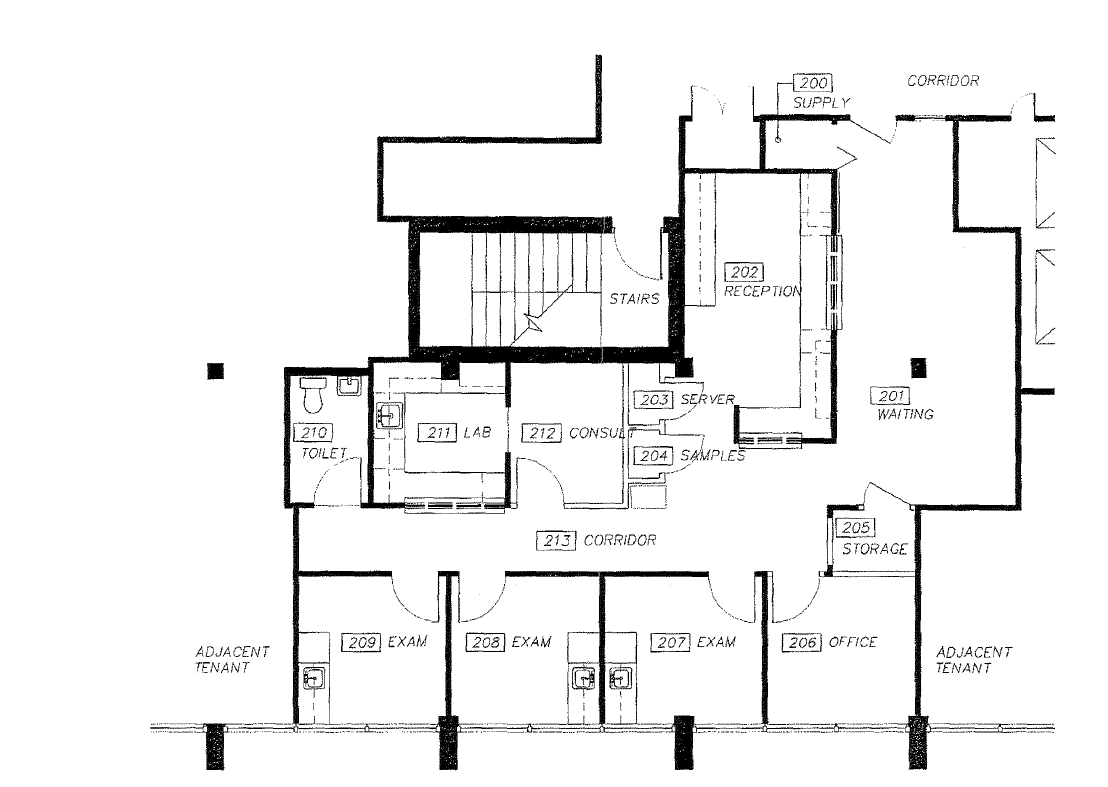
Built out medical suite with 3 exam rooms, office, restroom, lab, consult, and reception/waiting.
- Espace de sous-location disponible auprès du locataire actuel
- Salle de bains privée
- Aire de réception
| Espace | Taille | Terme | Taux de location | Utilisation de l’espace | État | Disponible |
| 2e étage, ste 220 | 1 448 pi² | Juil. 2027 | Sur demande Sur demande Sur demande Sur demande | Médical | - | Maintenant |
2e étage, ste 220
| Taille |
| 1 448 pi² |
| Terme |
| Juil. 2027 |
| Taux de location |
| Sur demande Sur demande Sur demande Sur demande |
| Utilisation de l’espace |
| Médical |
| État |
| - |
| Disponible |
| Maintenant |
1 de 1
VIDÉOS
VISITE EXTÉRIEURE 3D MATTERPORT
VISITE 3D MATTERPORT
PHOTOS
VUE DEPUIS LA RUE
RUE
CARTE
2e étage, ste 220
| Taille | 1 448 pi² |
| Terme | Juil. 2027 |
| Taux de location | Sur demande |
| Utilisation de l’espace | Médical |
| État | - |
| Disponible | Maintenant |
Built out medical suite with 3 exam rooms, office, restroom, lab, consult, and reception/waiting.
- Espace de sous-location disponible auprès du locataire actuel
- Aire de réception
- Salle de bains privée
CARACTÉRISTIQUES ET COMMODITÉS
- Climatisation
FAITS SUR LA PROPRIÉTÉ
Type de bâtiment
Bureau
Année de construction
1988
Hauteur du bâtiment
4 étages
Taille du bâtiment
45 287 pi²
Classe d’immeuble
B
Superficie de plancher typique
11 322 pi²
Hauteur du plafond non finie
9’
Stationnement
56 places de stationnement surface
SÉLECTIONNER DES LOCATAIRES
- ÉTAGE
- NOM DU LOCATAIRE
- SECTEUR
- 3ᵉ
- Burtonsville Dental Suite
- Soins de santé et assistance sociale
- 2ᵉ
- Burtonsville Family Health
- Soins de santé et assistance sociale
- 1ᵉʳ
- Efficient Home
- Construction
- 1ᵉʳ
- Endres Dental care & orthodontics
- Soins de santé et assistance sociale
- 1ᵉʳ
- Hailey Development, L.C.
- Immobilier
- 2ᵉ
- Kolmac Integrated Behavioral Health
- Soins de santé et assistance sociale
- 1ᵉʳ
- MJL Land LLC
- Services professionnels, scientifiques et techniques
- 3ᵉ
- Radiant Therapy, LLC
- Soins de santé et assistance sociale
- 3ᵉ
- Slatkin & Lupo
- Services professionnels, scientifiques et techniques
- 3ᵉ
- Therapeutic Superventions, Inc.
- Soins de santé et assistance sociale
1 1
1 de 6
VIDÉOS
VISITE EXTÉRIEURE 3D MATTERPORT
VISITE 3D MATTERPORT
PHOTOS
VUE DEPUIS LA RUE
RUE
CARTE
1 de 1
Présenté par
Research In Progress
Burtonsville Office Park 3 | 3905 National Dr
Vous êtes déjà membre? Connectez-vous
Hmm, il semble y avoir eu une erreur lors de l’envoi de votre message. Veuillez réessayer.
Merci! Votre message a été envoyé.


