Votre courriel a été envoyé.
City Center Professional Center Fremont, CA 94538 600–5 500 pi² d'espace disponible • Bureau



Certaines informations ont été traduites automatiquement.
Faits saillants du parc
- Prime Fremont CENTRE-ville/CENTRE-VILLE
- Zones communes et toilettes récemment rénovées
- Signalisation des bâtiments et des monuments.
- À un pâté de maisons de l'hôtel de ville et du palais de justice du comté
- Accès 24 heures sur 24 et 7 jours sur 7 avec entrée extérieure séparée.
Faits sur le parc
Tous les espaces disponibles(3)
Afficher les taux de location en
- Espace
- Taille
- Terme
- Taux de location
- Utilisation de l’espace
- Aménagement
- Disponible
Server room CEO suite/office
- Entièrement construit comme Bureau standard
- Convient pour 10 à 32 personnes
- 1 salle de conférence
- Peut être associé à un ou plusieurs espaces supplémentaires pour obtenir jusqu’à 4 900 pi² d’espace adjacent.
- Disposition du plan d’étage ouverte en général
- 5 bureaux privés
- Espace en excellent état
Open floor plan
- Entièrement construit comme Bureau standard
- Convient pour 3 à 8 personnes
- Peut être associé à un ou plusieurs espaces supplémentaires pour obtenir jusqu’à 4 900 pi² d’espace adjacent.
- Disposition du plan d’étage ouverte
- Espace en excellent état
| Espace | Taille | Terme | Taux de location | Utilisation de l’espace | Aménagement | Disponible |
| 1er étage, ste F | 4 000 pi² | Négociable | Sur demande Sur demande Sur demande Sur demande | Bureau | construction complète | Maintenant |
| 1er étage, ste G | 900 pi² | Négociable | Sur demande Sur demande Sur demande Sur demande | Bureau | construction complète | Maintenant |
39221 Paseo Padre Pky - 1er étage - ste F
39221 Paseo Padre Pky - 1er étage - ste G
- Espace
- Taille
- Terme
- Taux de location
- Utilisation de l’espace
- Aménagement
- Disponible
Office space with newly renovated common areas and restrooms.
- Entièrement construit comme Bureau standard
- 1 bureau privé
- 1 poste de travail
- Espace en excellent état
- Signalisation des bâtiments et des monuments.
- Convient pour 2 à 5 personnes
- 1 salle de conférence
- Plafonds finis: 9’
- Air central et chauffage
| Espace | Taille | Terme | Taux de location | Utilisation de l’espace | Aménagement | Disponible |
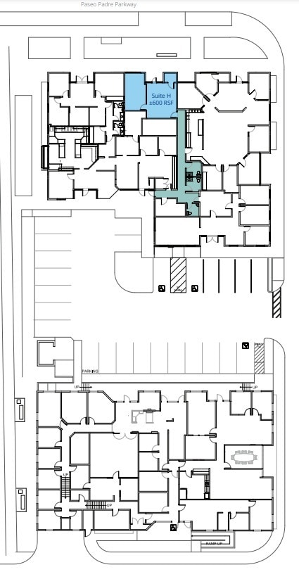
| 1er étage, ste H | 600 pi² | Négociable | Sur demande Sur demande Sur demande Sur demande | Bureau | construction complète | Maintenant |
39199 Paseo Padre Pky - 1er étage - ste H
39221 Paseo Padre Pky - 1er étage - ste F
| Taille | 4 000 pi² |
| Terme | Négociable |
| Taux de location | Sur demande |
| Utilisation de l’espace | Bureau |
| Aménagement | construction complète |
| Disponible | Maintenant |
Server room CEO suite/office
- Entièrement construit comme Bureau standard
- Disposition du plan d’étage ouverte en général
- Convient pour 10 à 32 personnes
- 5 bureaux privés
- 1 salle de conférence
- Espace en excellent état
- Peut être associé à un ou plusieurs espaces supplémentaires pour obtenir jusqu’à 4 900 pi² d’espace adjacent.
39221 Paseo Padre Pky - 1er étage - ste G
| Taille | 900 pi² |
| Terme | Négociable |
| Taux de location | Sur demande |
| Utilisation de l’espace | Bureau |
| Aménagement | construction complète |
| Disponible | Maintenant |
Open floor plan
- Entièrement construit comme Bureau standard
- Disposition du plan d’étage ouverte
- Convient pour 3 à 8 personnes
- Espace en excellent état
- Peut être associé à un ou plusieurs espaces supplémentaires pour obtenir jusqu’à 4 900 pi² d’espace adjacent.
39199 Paseo Padre Pky - 1er étage - ste H
| Taille | 600 pi² |
| Terme | Négociable |
| Taux de location | Sur demande |
| Utilisation de l’espace | Bureau |
| Aménagement | construction complète |
| Disponible | Maintenant |
Office space with newly renovated common areas and restrooms.
- Entièrement construit comme Bureau standard
- Convient pour 2 à 5 personnes
- 1 bureau privé
- 1 salle de conférence
- 1 poste de travail
- Plafonds finis: 9’
- Espace en excellent état
- Air central et chauffage
- Signalisation des bâtiments et des monuments.
Aperçu du parc
Prime Fremont CENTRE-ville/CENTRE-VILLE. À deux pâtés de maisons de BART. Au coin avec des feux de circulation, en face de Raley's et Wells Fargo. Près des commerces de détail, des banques, des restaurants et des hôpitaux. À un pâté de maisons de l'hôtel de ville et du palais de justice du comté. Stationnement sur place et hors site et garage sécurisé. Comptage du trafic : 26 000 ADT. Zones communes et toilettes récemment rénovées. Facteur de charge faible.
- Accès 24 heures
- Métro
- Affichage
- Affichage sur monument
Présenté par
City Center Professional Center | Fremont, CA 94538
Hmm, il semble y avoir eu une erreur lors de l’envoi de votre message. Veuillez réessayer.
Merci! Votre message a été envoyé.


