Se Connecter/S’inscrire
Votre courriel a été envoyé.
3930 Naaman School Rd Unité de condo • Médical • 2 835 pi² • À vendre 1 523 033 $ CAD • Garland, TX 75040



Certaines informations ont été traduites automatiquement.
Faits saillants de l'investissement
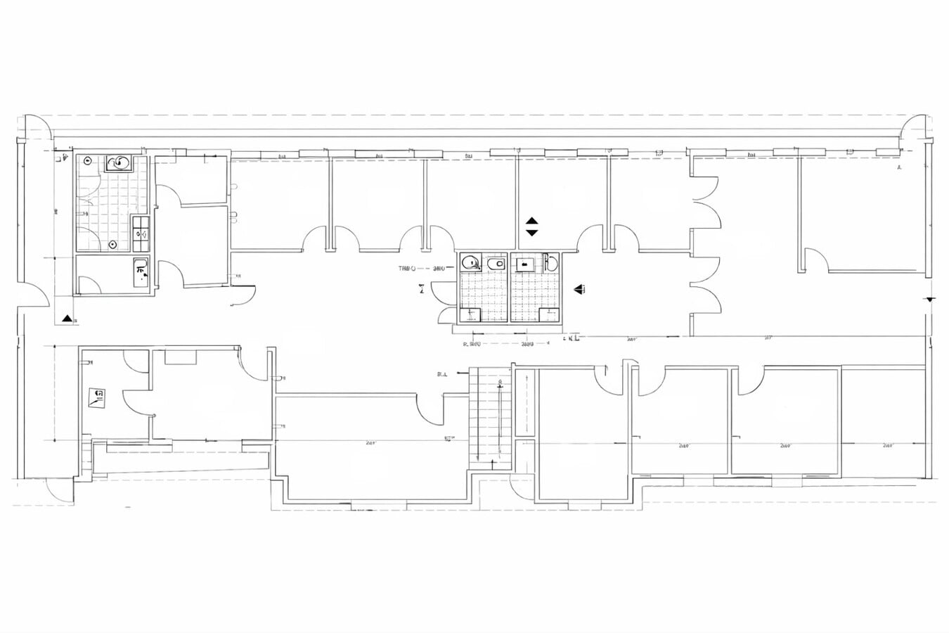
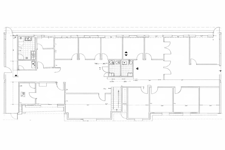
- 8 Exam Rooms
- 1 Breakroom
- 1 X-Ray Room
- 2 Restrooms / 1 Shower
1 Unité disponible
Unité B
| Taille de l’unité | 2 835 pi² | Utilisation du condo | Médical |
| Prix | 1 523 033 $ CAD | Type de vente | Investissement ou propriétaire utilisateur |
| Prix par pi² | 537,23 $ CAD |
| Taille de l’unité | 2 835 pi² |
| Prix | 1 523 033 $ CAD |
| Prix par pi² | 537,23 $ CAD |
| Utilisation du condo | Médical |
| Type de vente | Investissement ou propriétaire utilisateur |
Description
Second Generation Medical / Physical Therapy Space
Notes sur la vente
Purchase Price: $390 / PSF ($1,105,650)
Floor Plan
1 de 1
Vidéos
Visite extérieure 3D Matterport
Visite 3D Matterport
Photos
Vue depuis la rue
Rue
Carte
Faits sur la propriété
Les caractéristiques suivantes s'appliquent à l'ensemble du bâtiment. Les détails relatifs aux unités de copropriété individuelles peuvent varier et figurent dans les informations concernant les unités ci-dessus.
| Taille totale du bâtiment | 6 825 pi² | Planchers | 1 |
| Type de propriété | Bureau (Condo) | Superficie de plancher typique | 6 825 pi² |
| Sous-type de propriété | Médical | Année de construction | 2005 |
| Classe d’immeuble | B | Taille du lot | 1,23 AC |
| Zonage | Z209 | ||
| Taille totale du bâtiment | 6 825 pi² |
| Type de propriété | Bureau (Condo) |
| Sous-type de propriété | Médical |
| Classe d’immeuble | B |
| Planchers | 1 |
| Superficie de plancher typique | 6 825 pi² |
| Année de construction | 2005 |
| Taille du lot | 1,23 AC |
| Zonage | Z209 |
1 1
Assez praticable à pied
40/100
Exceptionnellement facile d’accès en voiture
100/100
Transports en commun limités
30/100
Plutôt praticable en vélo
50/100
1 de 12
Vidéos
Visite extérieure 3D Matterport
Visite 3D Matterport
Photos
Vue depuis la rue
Rue
Carte
1 de 1
Présenté par
3930 Naaman School Rd
Vous êtes déjà membre? Connectez-vous
Hmm, il semble y avoir eu une erreur lors de l’envoi de votre message. Veuillez réessayer.
Merci! Votre message a été envoyé.

