Votre courriel a été envoyé.
3940 S Eastern Ave 1 546 pi² d'espace disponible • Bureau/Médical • Las Vegas, NV 89119



Certaines informations ont été traduites automatiquement.
Faits saillants de la sous-location
- Second-generation medical/clinical space with existing build-out
- Cost-effective alternative to new construction
- Strong Eastern Ave exposure and easy access
- Suitable for medical, imaging support, wellness, lab, or related healthcare users
Tous les espaces disponibles(1)
Afficher les taux de location en
- Espace
- Taille
- Terme
- Taux de location
- Utilisation de l’espace
- État
- Disponible
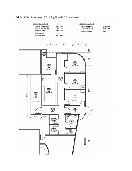
Approximately 1,546 rentable sf it includes 3 exam rooms, an office, waiting room, a nurse’s station, 2 changing rooms, 1 bathroom and a storage area. Asking rent is $1.53/sf and NNN’s are currently at $0.41/sf with 3 years left on the lease.
- Espace de sous-location disponible auprès du locataire actuel
- Entièrement construit comme Espace de soins de santé
- Aire de réception
- 1 Private Office
- 3 Exam Rooms
- 2 Changing Rooms
- Le taux de location ne comprend pas les services publics, les services de bâtiment ou les dépenses immobilières.
- 4 bureaux privés
- Salle de bains privée
- Nurse's Station
- Private Restroom
- Waiting Room
| Espace | Taille | Terme | Taux de location | Utilisation de l’espace | État | Disponible |
| 1er étage, ste Bldg D, A-207 | 1 546 pi² | Juin 2030 | 25,10 $ CAD/pi²/an 2,09 $ CAD/pi²/mois 38 808 $ CAD/an 3 234 $ CAD/mois | Bureau/Médical | construction complète | Maintenant |
1er étage, ste Bldg D, A-207
| Taille |
| 1 546 pi² |
| Terme |
| Juin 2030 |
| Taux de location |
| 25,10 $ CAD/pi²/an 2,09 $ CAD/pi²/mois 38 808 $ CAD/an 3 234 $ CAD/mois |
| Utilisation de l’espace |
| Bureau/Médical |
| État |
| construction complète |
| Disponible |
| Maintenant |
1er étage, ste Bldg D, A-207
| Taille | 1 546 pi² |
| Terme | Juin 2030 |
| Taux de location | 25,10 $ CAD/pi²/an |
| Utilisation de l’espace | Bureau/Médical |
| État | construction complète |
| Disponible | Maintenant |
Approximately 1,546 rentable sf it includes 3 exam rooms, an office, waiting room, a nurse’s station, 2 changing rooms, 1 bathroom and a storage area. Asking rent is $1.53/sf and NNN’s are currently at $0.41/sf with 3 years left on the lease.
- Espace de sous-location disponible auprès du locataire actuel
- Le taux de location ne comprend pas les services publics, les services de bâtiment ou les dépenses immobilières.
- Entièrement construit comme Espace de soins de santé
- 4 bureaux privés
- Aire de réception
- Salle de bains privée
- 1 Private Office
- Nurse's Station
- 3 Exam Rooms
- Private Restroom
- 2 Changing Rooms
- Waiting Room
Aperçu de la propriété
High-visibility medical/diagnostic sublease opportunity at 3940 S. Eastern Ave. ±1,546 SF of second-generation clinical/healthcare space available within a larger ±6,972 SF medical tenancy—ideal for imaging-related uses, specialty medical, wellness, lab, or healthcare services. Efficient layout with existing improvements in place, allowing an incoming subtenant to reduce buildout time and capital outlay versus a raw shell. Sublease term runs through the remaining master lease term. Subtenant to pay base rent plus CAM/operating expenses (NNN) on a proportionate share basis. Flexible occupancy timing with a target start date of February 1, 2026 (or sooner by agreement), subject to approval. Call Bridget Atterbom 702-807-7463 or email Bridget@BridgetAtterbom with any questions about this property. Contact (702) 401-2237 Aareon Smith-Allen for any questions and showings.
- Ligne d'autobus
- Cour
- Affichage
Faits sur la propriété
Présenté par
3940 S Eastern Ave
Hmm, il semble y avoir eu une erreur lors de l’envoi de votre message. Veuillez réessayer.
Merci! Votre message a été envoyé.

