Votre courriel a été envoyé.
Gauge Interwood Logistics 3955 Interwood Pky S 95 886 pi² d'espace disponible • Industriel • 4 étoiles • Houston, TX 77032



Certaines informations ont été traduites automatiquement.
Faits saillants
- +/- 95,886 SF REAR LOAD FACILITY ON 6.94 ACRES LOCATED IN AN OPPORTUNITY ZONE
- 32-foot clear height with ESFR sprinkler system.
- 95,886 SF Class A industrial facility on 6.94 acres.
- 11 dock-high doors and one drive-in ramp.
Caractéristiques
Tous les espaces disponibles(1)
Afficher les taux de location en
- Espace
- Taille
- Terme
- Taux de location
- Utilisation de l’espace
- Aménagement
- Disponible
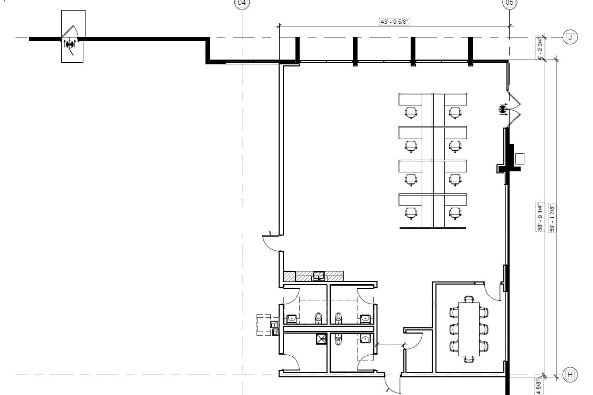
+/- 95,886 SF REAR LOAD FACILITY ON 6.94 ACRES - 2,546 SF spec office - 32’ clear height - 180’ truck court - 19 trailer parking positions - ESFR sprinkler system - 56’ x 56’ typical column spacing with 60’ staging bay - 11 (9’ x 10’) dock-high doors - 1 (12’ x 14’) door with concrete ramp - 5’ clerestory windows - Auto parking spaces: 44 (0.46/1,000) - Ability to fully fence and secure - 3-phase 480V with 2,000 amps
- 1 accès plain-pied
- 11 quais de chargement
- Espace en excellent état
- +/- 95,886 SF REAR LOAD FACILITY ON 6.94 ACRES
| Espace | Taille | Terme | Taux de location | Utilisation de l’espace | Aménagement | Disponible |
| 1er étage | 95 886 pi² | Négociable | Sur demande Sur demande Sur demande Sur demande | Industriel | construction complète | Maintenant |
1er étage
| Taille |
| 95 886 pi² |
| Terme |
| Négociable |
| Taux de location |
| Sur demande Sur demande Sur demande Sur demande |
| Utilisation de l’espace |
| Industriel |
| Aménagement |
| construction complète |
| Disponible |
| Maintenant |
1er étage
| Taille | 95 886 pi² |
| Terme | Négociable |
| Taux de location | Sur demande |
| Utilisation de l’espace | Industriel |
| Aménagement | construction complète |
| Disponible | Maintenant |
+/- 95,886 SF REAR LOAD FACILITY ON 6.94 ACRES - 2,546 SF spec office - 32’ clear height - 180’ truck court - 19 trailer parking positions - ESFR sprinkler system - 56’ x 56’ typical column spacing with 60’ staging bay - 11 (9’ x 10’) dock-high doors - 1 (12’ x 14’) door with concrete ramp - 5’ clerestory windows - Auto parking spaces: 44 (0.46/1,000) - Ability to fully fence and secure - 3-phase 480V with 2,000 amps
- 1 accès plain-pied
- Espace en excellent état
- 11 quais de chargement
- +/- 95,886 SF REAR LOAD FACILITY ON 6.94 ACRES
Aperçu de la propriété
INSTALLATION DE CHARGEMENT ARRIÈRE DE +/- 95 886 PI² SUR UN TERRAIN DE 6,94 ACRES SITUÉE DANS UNE ZONE D'OPPORTUNITÉ - Hauteur libre de 32 pieds - Cour pour camions de 180 pieds - 19 espaces de stationnement pour remorques - Système de gicleurs ESFR - Espacement typique des colonnes de 56’ x 56’ avec une baie de mise en scène de 60’ - 11 portes de quai (9’ x 10’) - 1 porte (12’ x 14’) avec rampe en béton - Fenêtres claires de 5 pieds - Espaces de stationnement pour voitures : 44 (0,46/1 000) - Possibilité de clôturer et sécuriser entièrement - Électricité triphasée 480V avec 2 000 ampères
Faits sur l’installation entrepôt
Présenté par
Gauge Interwood Logistics | 3955 Interwood Pky S
Hmm, il semble y avoir eu une erreur lors de l’envoi de votre message. Veuillez réessayer.
Merci! Votre message a été envoyé.


