Votre courriel a été envoyé.
3964 FM 1434 - Lone Willow Addition Lot • Résidentiel • 90 Acres • 4 761 785 $ CAD • Cleburne, TX 76033



Certaines informations ont été traduites automatiquement.
Faits saillants de l'investissement
- Eau du district de Johnson County Special Utilities - United Cooperative Services Internet électrique et par fibre
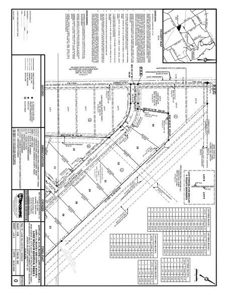
- 6 milles de l'autoroute Cleburne 67- 10 milles de la route à péage du sentier Chisholm
- Façades de route de +/- 4 042 pi
- 69 lots et emplacements résidants au total, allant de 1,0 acre à 1,740 acre
- 8 milles jusqu'à l'hôpital et au Hill College
- Frais d'ingénierie et d'usine inclus
Faits sur la propriété
1 Lot disponible
Lot
| Prix | 4 761 785 $ CAD | Taille du lot | 90,00 AC |
| Prix par AC | 52 908,72 $ CAD |
| Prix | 4 761 785 $ CAD |
| Prix par AC | 52 908,72 $ CAD |
| Taille du lot | 90,00 AC |
UNE OCCASION DE DÉVELOPPEMENT IMMOBILIER DE PREMIER CHOIX
Description
Bienvenue à Lone Willow Addition - Votre évasion parfaite près du lac Cleburne ! Niché sur le côté ouest pittoresque du lac Cleburne, Lone Willow offre le mélange parfait de vie paisible à la campagne et d'un accès facile aux commodités de la ville. Situé à seulement six milles de Cleburne et à seulement dix milles de la route à péage Chisholm Trail, ce développement de premier ordre offre des liaisons rapides vers l'autoroute 67, ce qui rend vos déplacements en un jeu d'enfant ! Situé à l'extérieur des limites de la ville et pourtant à l'intérieur de la juridiction extraterritoriale de Cleburne, Lone Willow vous offre la flexibilité de la vie rurale avec le potentiel de croissance future. Chaque site d'habitation de la phase 1 a déjà été équipé de robinets d'eau par le Johnson County Special Utility District (JCSUD), ce qui assure un raccordement et un transfert d'eau sans faille. Pour des commodités modernes, United Cooperative Services alimente ce développement avec un service électrique ainsi qu'un accès Internet haute vitesse à fibre optique, vous permettant ainsi de rester connecté tout en profitant de la beauté de la campagne texane.
Présenté par
Webb Kirkpatrick Real Estate, Inc
3964 FM 1434 - Lone Willow Addition
Hmm, il semble y avoir eu une erreur lors de l’envoi de votre message. Veuillez réessayer.
Merci! Votre message a été envoyé.
