Se Connecter/S’inscrire
Votre courriel a été envoyé.
3990 Sam Wilson Road 3990 Sam Wilson Rd 23 153 pi² Industriel Immeuble Charlotte, NC 28214 8 918 000 $ CAD (385,18 $ CAD/pi²)



Certaines informations ont été traduites automatiquement.
FAITS SAILLANTS DE L'INVESTISSEMENT
- 10 Espaces de stationnement
- Le bâtiment entier est chauffé et refroidi
- Excellent accès aux I-85 et I-485
RÉSUMÉ DE L'ANNONCE
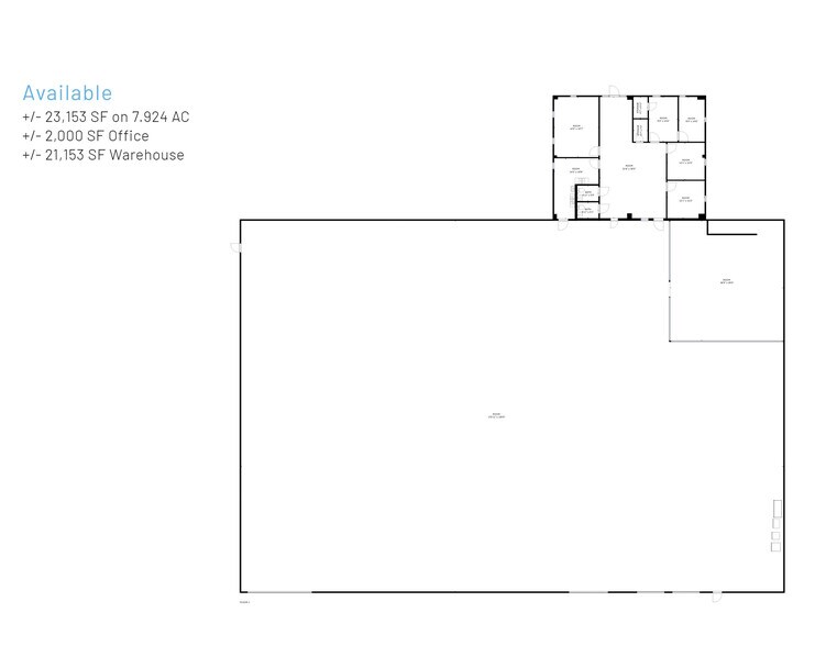
+/- 23 153 SF sur 7.924 AC Disponible à la vente
+/- Bureau de 2 000 SF
+/- 21 153 SF Entrepôt
Une excellente occasion d'acheter ou de louer un bâtiment industriel situé au +/- 7.94 AC. La propriété comprend quatre bureaux privés, une salle de réunion, une salle de conférence, un enclos ouvert et un espace d'entreposage. Situé le long de la ligne LYNX Silver proposée et à quelques pas de la future station Sam Wilson, ce site offre des équipements uniques et un emplacement de choix. Il est idéalement situé à seulement 2,1 milles de l'I-485, à 3,7 milles de l'I-85 et à 3 milles de l'aéroport international Charlotte-Douglas, ce qui en fait une opportunité d'acquisition très accessible le long du boulevard Wilkinson.
Prix de vente 6 500 000$
Taux de location 20 $/SF Frais NNN à 1,17 $/SF
+/- Bureau de 2 000 SF
+/- 21 153 SF Entrepôt
Une excellente occasion d'acheter ou de louer un bâtiment industriel situé au +/- 7.94 AC. La propriété comprend quatre bureaux privés, une salle de réunion, une salle de conférence, un enclos ouvert et un espace d'entreposage. Situé le long de la ligne LYNX Silver proposée et à quelques pas de la future station Sam Wilson, ce site offre des équipements uniques et un emplacement de choix. Il est idéalement situé à seulement 2,1 milles de l'I-485, à 3,7 milles de l'I-85 et à 3 milles de l'aéroport international Charlotte-Douglas, ce qui en fait une opportunité d'acquisition très accessible le long du boulevard Wilkinson.
Prix de vente 6 500 000$
Taux de location 20 $/SF Frais NNN à 1,17 $/SF
FAITS SUR LA PROPRIÉTÉ
| Prix | 8 918 000 $ CAD | Nombre d’étages | 1 |
| Prix par pi² | 385,18 $ CAD | Année de construction | 1989 |
| Type de vente | Investissement ou propriétaire utilisateur | Location | Unique |
| Type de propriété | Industriel | Ratio de stationnement | 0,73/1 000 pi² |
| Sous-type de propriété | Entrepôt | Effacer hauteur du plafond | 17’9” |
| Classe d’immeuble | B | Nbre de quais à portes élevées/de chargement | 2 |
| Taille du lot | 7,92 AC | Nbre d’entrées dans les portes/au niveau du sol | 2 |
| Aire du bâtiment louable | 23 153 pi² | ||
| Zonage | I-1 CD - I-1 CD industriel | ||
| Prix | 8 918 000 $ CAD |
| Prix par pi² | 385,18 $ CAD |
| Type de vente | Investissement ou propriétaire utilisateur |
| Type de propriété | Industriel |
| Sous-type de propriété | Entrepôt |
| Classe d’immeuble | B |
| Taille du lot | 7,92 AC |
| Aire du bâtiment louable | 23 153 pi² |
| Nombre d’étages | 1 |
| Année de construction | 1989 |
| Location | Unique |
| Ratio de stationnement | 0,73/1 000 pi² |
| Effacer hauteur du plafond | 17’9” |
| Nbre de quais à portes élevées/de chargement | 2 |
| Nbre d’entrées dans les portes/au niveau du sol | 2 |
| Zonage | I-1 CD - I-1 CD industriel |
COMMODITÉS
- Climatisation
DISPONIBILITÉ DES ESPACES
- ESPACE
- TAILLE
- UTILISATION DE L’ESPACE
- ÉTAT
- DISPONIBLE
+/- 23 153 pi² sur 7,924 acres disponible à la vente +/- 2 000 pi² de bureaux +/- 21 153 pi² d'entrepôt
| Espace | Taille | Utilisation de l’espace | État | Disponible |
| 1er étage | 21 153 pi² | Industriel | - | Maintenant |
1er étage
| Taille |
| 21 153 pi² |
| Utilisation de l’espace |
| Industriel |
| État |
| - |
| Disponible |
| Maintenant |
1 de 1
VIDÉOS
VISITE EXTÉRIEURE 3D MATTERPORT
VISITE 3D MATTERPORT
PHOTOS
VUE DEPUIS LA RUE
RUE
CARTE
1er étage
| Taille | 21 153 pi² |
| Utilisation de l’espace | Industriel |
| État | - |
| Disponible | Maintenant |
+/- 23 153 pi² sur 7,924 acres disponible à la vente +/- 2 000 pi² de bureaux +/- 21 153 pi² d'entrepôt
1 1
Impôts fonciers
| Numéro de lot | 113-046-08 | Évaluation des bâtiments | 1 579 528 $ CAD |
| Évaluation du terrain | 2 355 485 $ CAD | Évaluation totale | 3 935 013 $ CAD |
Impôts fonciers
Numéro de lot
113-046-08
Évaluation du terrain
2 355 485 $ CAD
Évaluation des bâtiments
1 579 528 $ CAD
Évaluation totale
3 935 013 $ CAD
1 de 23
VIDÉOS
VISITE EXTÉRIEURE 3D MATTERPORT
VISITE 3D MATTERPORT
PHOTOS
VUE DEPUIS LA RUE
RUE
CARTE
1 de 1
Présenté par
3990 Sam Wilson Road | 3990 Sam Wilson Rd
Vous êtes déjà membre? Connectez-vous
Hmm, il semble y avoir eu une erreur lors de l’envoi de votre message. Veuillez réessayer.
Merci! Votre message a été envoyé.


