Votre courriel a été envoyé.
39918-39936 US Highway 19 N
Tarpon Springs, FL 34689
Savion Center - Street Retail · Bureau/Commerce de détail Propriété À louer
·
15 606 pi²


Certaines informations ont été traduites automatiquement.
Faits saillants
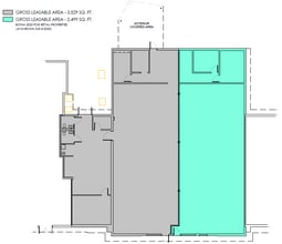
- 1,578 - 15,606 sf available for immediate occupancy
- Located directly on US Hwy 19 just south of Tarpon Ave. with traffic counts in excess of 78,000 cars per day
- So many options for various space configurations - customize your floor plan
- Fully remodeled and very well-maintained plaza with new facades, parking lot and updated pylon sign
- Ideal for various types of uses including retail, office, flex, or medical
- Landlord will consider Tenant Improvement Allowance for qualified Tenants
Faits sur la propriété
| Superficie totale disponible | 15 606 pi² | Superficie commerciale brute | 44 000 pi² |
| Min. divisible | 1 578 pi² | Année de construction | 1980 |
| Type de propriété | Commerce de détail | Ratio de stationnement | 1,81/1 000 pi² |
| Superficie totale disponible | 15 606 pi² |
| Min. divisible | 1 578 pi² |
| Type de propriété | Commerce de détail |
| Superficie commerciale brute | 44 000 pi² |
| Année de construction | 1980 |
| Ratio de stationnement | 1,81/1 000 pi² |
À propos de la propriété
Unités de commerce et de bureaux allant de 1 578 pi² à 15 606 pi² disponibles. Options d'espace flexibles avec possibilité de personnaliser votre aménagement. Secteur très recherché de Tarpon Springs, à proximité des Sponge Docks et des principaux hôpitaux. Situé directement sur l'autoroute US 19, juste au sud de Tarpon Ave., avec un flux de circulation de plus de 78 000 véhicules par jour. Plaza entièrement rénovée et très bien entretenue, avec de nouvelles façades, un stationnement modernisé et une enseigne pylône mise à jour. Accès pratique avec un stationnement abondant et une entrée/sortie facile des deux côtés de la plaza. Avec son emplacement de choix, ses configurations flexibles et sa grande visibilité, ces unités seront louées rapidement – ne manquez pas votre chance de sécuriser un espace sur mesure dès aujourd'hui! *Plans d'étage disponibles sur demande
- Accès 24 heures
- Enseigne sur pylône
- Affichage
- Climatisation
