Votre courriel a été envoyé.
Certaines informations ont été traduites automatiquement.
Faits saillants
- Heavy Daytime Foot Traffic
- High-visibility location on Crain Highway
- Minutes to I-97, Rt. 100, and BWI Airport
- Free and Unassigned On-site parking!
- Well Maintained Building
- Near retail, restaurant, and service amenities
Disponibilité de l’espace (1)
Afficher les taux de location en
- Espace
- Taille
- Terme
- Taux de location
- Type de loyer
| Espace | Taille | Terme | Taux de location | Type de loyer | ||
| 2e étage | 4 005 pi² | Négociable | Sur demande Sur demande Sur demande Sur demande | Brut modifié |
2e étage
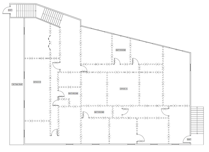
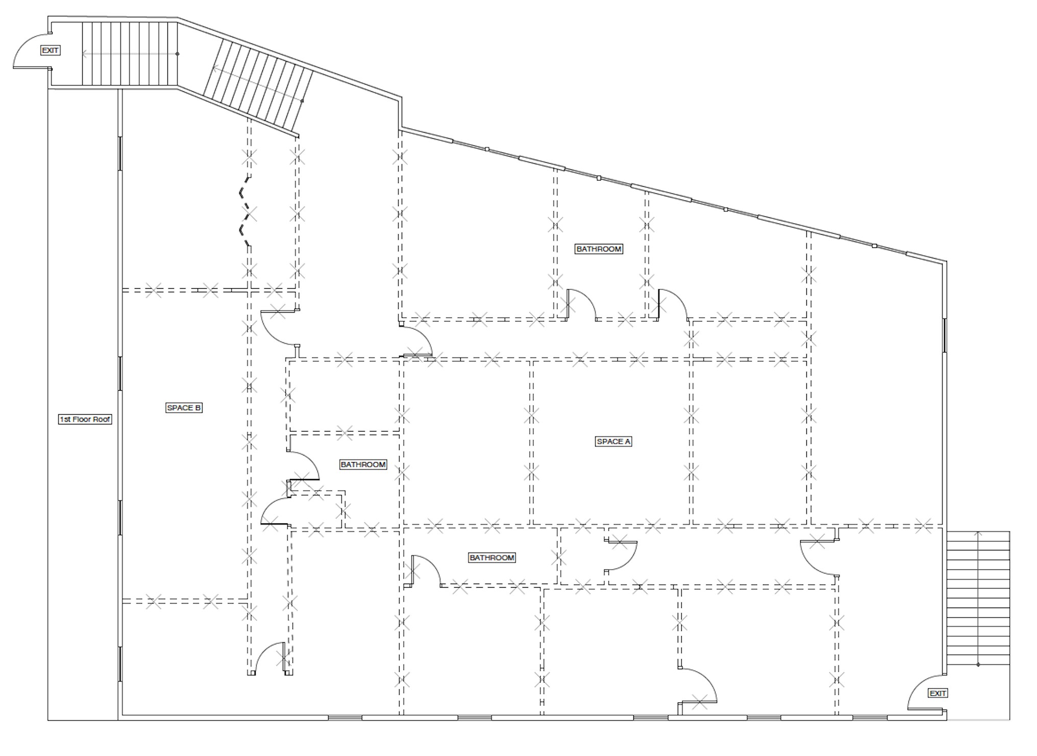
This space has loads of potential. Situated on a corner, this suite is a flexible commercial space in a high-visibility two-story building on Crain Highway, one of Glen Burnie’s most active commercial corridors. This property features multiple private suites and strong signage exposure directly facing Crain Hwy/Route 3.This space is over 4,000 sf. At one time it was built out as multi family. Ideal for professional offices, as well as a variety of general commercial, service-oriented, and administrative uses. Situated minutes from I-97, Route 100, and BWI Airport, this property offers strong regional connectivity and easy access for staff and visitors. Nearby national retailers, restaurants, and community services further enhance the property’s desirability. KEY PROPERTY FEATURES High-visibility location on Crain Highway Prominent frontage for business signage On-site parking Private offices with natural light Flexible layout for various business needs Well-maintained, professional building
- Le taux inscrit peut ne pas comprendre certains services publics, les services de bâtiment et les dépenses immobilières.
- Espace nécessitant des rénovations
- Air central et chauffage
- Salle de bains privée
- Entreposage de vélo
- Installations WC abandonnées
- Heavy Daytime Foot traffic
- Free and Unassigned On site Parking
- High-visibility location on Crain Highway
- Well Maintained Building
- Minutes to I-97, Rt. 100, and BWI Airport
- Near retail, restaurant, and service amenities
Types de loyers
Le type et le montant du loyer que le locataire (preneur) est tenu de payer au propriétaire (bailleur) sur la durée du bail sont négociés avant la signature du bail par les deux parties. Le type de loyer varie selon les services fournis. Par exemple, le prix d’un loyer hypernet est habituellement inférieur à celui d’un bail à service complet puisque le locataire est tenu d’assumer des dépenses additionnelles par rapport au loyer de base. Contactez le courtier inscripteur pour tout connaître sur les frais connexes et additionnels associés à chaque type de loyer.
1. Service complet: Un taux de location qui comprend des services standards liés à l’immeuble fournis par le propriétaire dans le cadre d’une location annuelle de base.
2. Loyer supernet: Le locataire paie seulement deux des frais de l’immeuble. Le propriétaire et le locataire déterminent ces frais spécifiques avant la signature du bail.
3. Loyer hypernet: Un bail en vertu duquel le locataire est responsable de tous les frais liés à sa part proportionnelle d’occupation de l’immeuble.
4. Brut modifié: Le loyer brut modifié désigne un type général de taux de location dans lequel le locataire est habituellement responsable de sa part proportionnelle d’un ou de plusieurs frais. C’est le propriétaire qui paie les frais restants. Considérez les structures tarifaires courantes suivantes applicables aux loyers bruts modifiés: 4. Plus les services: Un type de bail brut modifié suivant lequel le locataire est responsable de sa part proportionnelle des coûts des services publics, en plus du loyer. 4. Plus le nettoyage: Un type de bail brut modifié suivant lequel le locataire est responsable de sa part proportionnelle des coûts de nettoyage, en plus du loyer. 4. Plus l'électricité: Un type de bail brut modifié suivant lequel le locataire est responsable de sa part proportionnelle des coûts d’électricité, en plus du loyer. 4. Plus l’électricité et le nettoyage: Un type de bail brut modifié dans lequel le locataire est responsable de sa part proportionnelle des coûts d’électricité et de nettoyage, en plus du loyer. 4. Plus les services publics et le nettoyage: Un type de bail brut modifié dans lequel le locataire est responsable de sa part proportionnelle des coûts des services publics et de nettoyage, en plus du loyer. 4. Bail industriel brut: Un type de bail brut modifié dans lequel le locataire paie un ou plusieurs des frais, en plus du loyer. Le propriétaire et le locataire déterminent ces frais spécifiques avant la signature du bail.
5. L’électricité est à la charge du locataire: Le propriétaire paie pour tous les services et le locataire est responsable de sa propre utilisation de l’éclairage et des prises électriques dans l’espace qu’il occupe.
6. Négociable ou sur demande: Cette option est utilisée lorsque le contact de location ne précise pas le type de loyer ou de service.
7. À déterminer: À déterminer ; utilisé pour les immeubles dont le type de services ou de loyer n’est pas connu, souvent quand l’immeuble n’est pas encore construit.
Sélectionner des locataires à 4 Crain Hwy N, Glen Burnie, MD 21061
- Locataire
- Description
- Emplacements US
- Portée
- In A Minute Bail Bonds Inc
- Finance et assurances
- 1
- -
- In-A-Minute Bail Bonds, Inc.
- Services professionnels, scientifiques et techniques
- 1
- -
| Locataire | Description | Emplacements US | Portée |
| In A Minute Bail Bonds Inc | Finance et assurances | 1 | - |
| In-A-Minute Bail Bonds, Inc. | Services professionnels, scientifiques et techniques | 1 | - |
Faits sur la propriété
| Superficie totale disponible | 4 005 pi² | Superficie commerciale brute | 15 695 pi² |
| Type de propriété | Commerce de détail | Année de construction | 1950 |
| Sous-type de propriété | Bien à usage mixte |
| Superficie totale disponible | 4 005 pi² |
| Type de propriété | Commerce de détail |
| Sous-type de propriété | Bien à usage mixte |
| Superficie commerciale brute | 15 695 pi² |
| Année de construction | 1950 |
À propos de la propriété
Situated on a corner this is a high-visibility two-story building on Crain Highway, one of Glen Burnie’s most active commercial corridors. This property features ground level retail with second floor office. This property has strong signage exposure directly facing Crain Hwy/Route 3.This space is over 4,000 sf. At one time it was built out as multi family. Ideal for professional offices, as well as a variety of general commercial, service-oriented, and administrative uses. Situated minutes from I-97, Route 100, and BWI Airport, this property offers strong regional connectivity and easy access for staff and visitors. Nearby national retailers, restaurants, and community services further enhance the property’s desirability. KEY PROPERTY FEATURES High-visibility location on Crain Highway Prominent frontage for business signage On-site parking Private offices with natural light Flexible layout for various business needs Well-maintained, professional building
- Accès 24 heures
- Lot de coin
- Enseigne sur pylône
- Restaurant
- Intersection avec signalisation
- CVCA contrôlé par le locataire
- Climatisation
Principaux détaillants à proximité
Présenté par
4 Crain Hwy N
Hmm, il semble y avoir eu une erreur lors de l’envoi de votre message. Veuillez réessayer.
Merci! Votre message a été envoyé.





