Votre courriel a été envoyé.
Certaines informations ont été traduites automatiquement.
Faits saillants
- Southpointe amenities include many restaurants, a golf course, walking trails, a health club, and many other retail shops.
Tous les espaces disponibles(1)
Afficher les taux de location en
- Espace
- Taille
- Terme
- Taux de location
- Utilisation de l’espace
- Aménagement
- Disponible
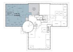
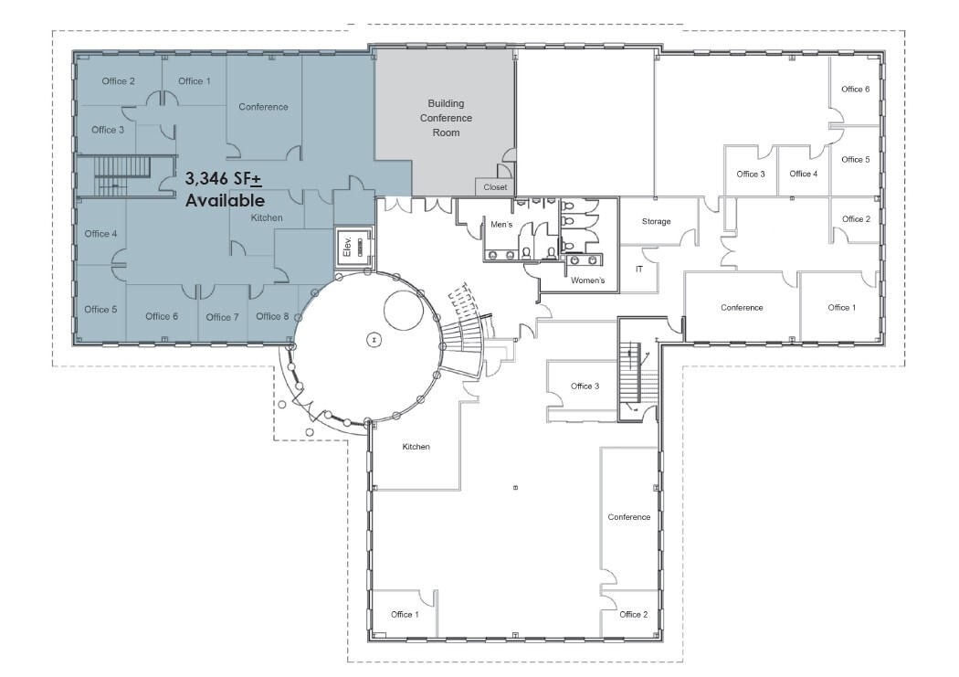
3,346 square foot second floor office space available for lease with 8 private offices, a kitchen, and a conference room.
- Le taux comprend les services publics, les services de bâtiment et les dépenses immobilières.
- 8 bureaux privés
- Parking gratuit abondant.
- Partiellement construit comme Bureau standard
- 1 salle de conférence
| Espace | Taille | Terme | Taux de location | Utilisation de l’espace | Aménagement | Disponible |
| 2e étage | 3 346 pi² | 1-10 ans | 25,48 $ CAD/pi²/an 2,12 $ CAD/pi²/mois 85 269 $ CAD/an 7 106 $ CAD/mois | Bureau | construction partielle | Maintenant |
2e étage
| Taille |
| 3 346 pi² |
| Terme |
| 1-10 ans |
| Taux de location |
| 25,48 $ CAD/pi²/an 2,12 $ CAD/pi²/mois 85 269 $ CAD/an 7 106 $ CAD/mois |
| Utilisation de l’espace |
| Bureau |
| Aménagement |
| construction partielle |
| Disponible |
| Maintenant |
2e étage
| Taille | 3 346 pi² |
| Terme | 1-10 ans |
| Taux de location | 25,48 $ CAD/pi²/an |
| Utilisation de l’espace | Bureau |
| Aménagement | construction partielle |
| Disponible | Maintenant |
3,346 square foot second floor office space available for lease with 8 private offices, a kitchen, and a conference room.
- Le taux comprend les services publics, les services de bâtiment et les dépenses immobilières.
- Partiellement construit comme Bureau standard
- 8 bureaux privés
- 1 salle de conférence
- Parking gratuit abondant.
Aperçu de la propriété
Le 4 Grandview Circle est un immeuble de bureaux de deux étages, d'une superficie de 27 000 pieds carrés, situé à Canonsburg. Cette propriété à locataires multiples offre une grande quantité de stationnement gratuit.
- Bio-tech/Laboratoire
Faits sur la propriété
Présenté par
4 Grandview Cir
Hmm, il semble y avoir eu une erreur lors de l’envoi de votre message. Veuillez réessayer.
Merci! Votre message a été envoyé.





