Se Connecter/S’inscrire
Votre courriel a été envoyé.
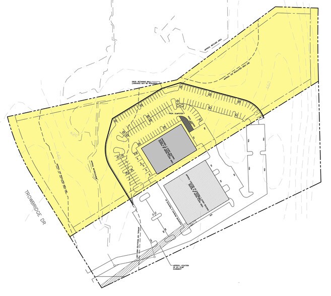
4 Trowbridge Dr Lot • Terrain commercial • 7,35 Acres • 650 175 $ CAD • Bethel, CT 06801



Certaines informations ont été traduites automatiquement.
Faits saillants de l'investissement
- 7,35 acres.
Résumé de l'annonce
7,35 acres avec étude de faisabilité pour un immeuble de deux étages de 30 600 pieds carrés avec stationnement de +/- 153 voitures. Site idéal pour
entrepôt, assemblage, fabrication, laboratoire ou bureau.
entrepôt, assemblage, fabrication, laboratoire ou bureau.
Faits sur la propriété
1 Lot disponible
Lot 4
| Prix | 650 175 $ CAD | Taille du lot | 7,35 AC |
| Prix par AC | 88 459,22 $ CAD |
| Prix | 650 175 $ CAD |
| Prix par AC | 88 459,22 $ CAD |
| Taille du lot | 7,35 AC |
7,35 acres avec étude de faisabilité pour un immeuble de deux étages de 30 600 pieds carrés avec stationnement de +/- 153 voitures. Site idéal pour l'entrepôt, l'assemblage, la fabrication, le laboratoire ou le bureau.
1 1
1 de 4
Vidéos
Visite extérieure 3D Matterport
Visite 3D Matterport
Photos
Vue depuis la rue
Rue
Carte
1 de 1
Présenté par
4 Trowbridge Dr
Vous êtes déjà membre? Connectez-vous
Hmm, il semble y avoir eu une erreur lors de l’envoi de votre message. Veuillez réessayer.
Merci! Votre message a été envoyé.
Votre message a été envoyé !
Activez votre compte LoopNet dès maintenant pour suivre les propriétés, recevoir des alertes en temps réel, gagner du temps sur vos demandes futures et bien plus encore.
