Votre courriel a été envoyé.
Certaines informations ont été traduites automatiquement.
Faits saillants
- Four-story structure in the heart of Jackson Square with secure entry and signage opportunities.
- Interconnecting staircases between upper floors enhance collaboration and ease of movement.
- High-identity location surrounded by over 30 VC and private equity firms, retail, and dining.
- Premium penthouse with two private terraces and boardroom featuring Pyramid Building views.
- Ready-to-use space with ergonomic furnishings, abundant natural light, and multiple light wells.
- Proximity to Montgomery BART, major thoroughfares, and San Francisco’s North Waterfront.
Tous les espaces disponibles(4)
Afficher les taux de location en
- Espace
- Taille
- Terme
- Taux de location
- Utilisation de l’espace
- Aménagement
- Disponible
Spec demo and facade work in progress. Amenity potential: shower/lockers, bike storage, all-hands, etc.
- Le taux comprend les services publics, les services de bâtiment et les dépenses immobilières.
- Convient pour 16 à 51 personnes
- Disposition du plan d’étage ouverte
- Plan ouvert
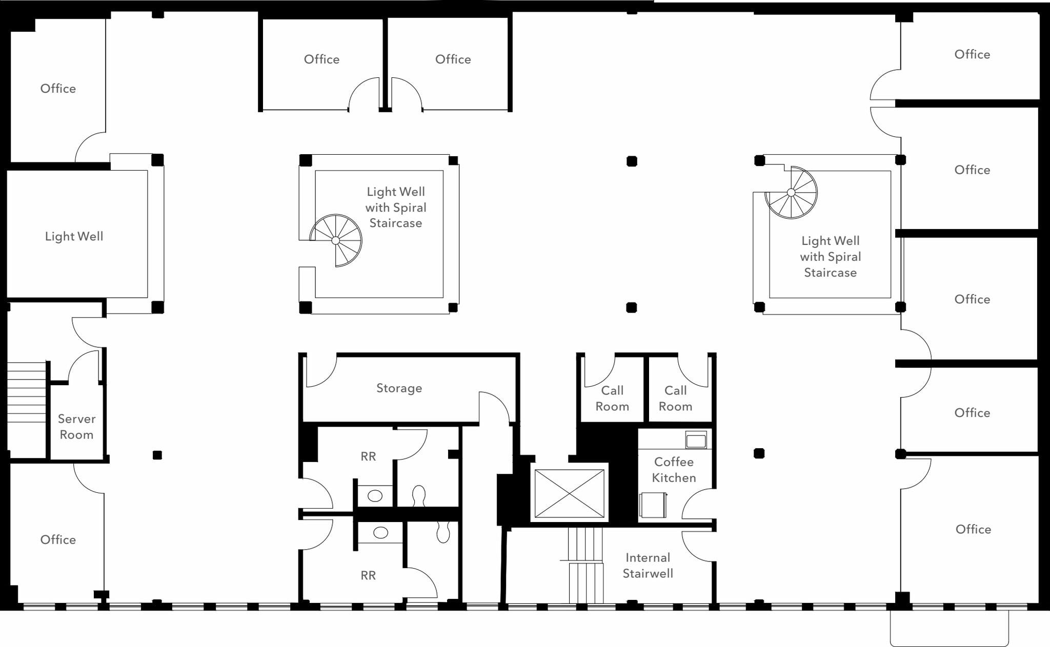
Skylights and floor cutouts provide additional light to upper floors, with extensive Gold Street window-line throughout
- Entièrement construit comme Bureau standard
- Convient pour 16 à 52 personnes
- Peut être associé à un ou plusieurs espaces supplémentaires pour obtenir jusqu’à 16 997 pi² d’espace adjacent.
- Salle de bains privée
- Interconnecting spiral staircases
- Disposition du plan d’étage ouverte en général
- 11 bureaux privés
- Cuisine
- Entreposage sécurisé
- Kitchen and restrooms on each floor
Skylights and floor cutouts provide additional light to upper floors, with extensive Gold Street window-line throughout
- Entièrement construit comme Bureau standard
- Convient pour 16 à 50 personnes
- 1 salle de conférence
- Aire de réception
- Salle de bains privée
- Interconnecting spiral staircases
- Disposition du plan d’étage ouverte en général
- 8 bureaux privés
- Peut être associé à un ou plusieurs espaces supplémentaires pour obtenir jusqu’à 16 997 pi² d’espace adjacent.
- Cuisine
- Entreposage sécurisé
- Kitchen and restrooms on each floor
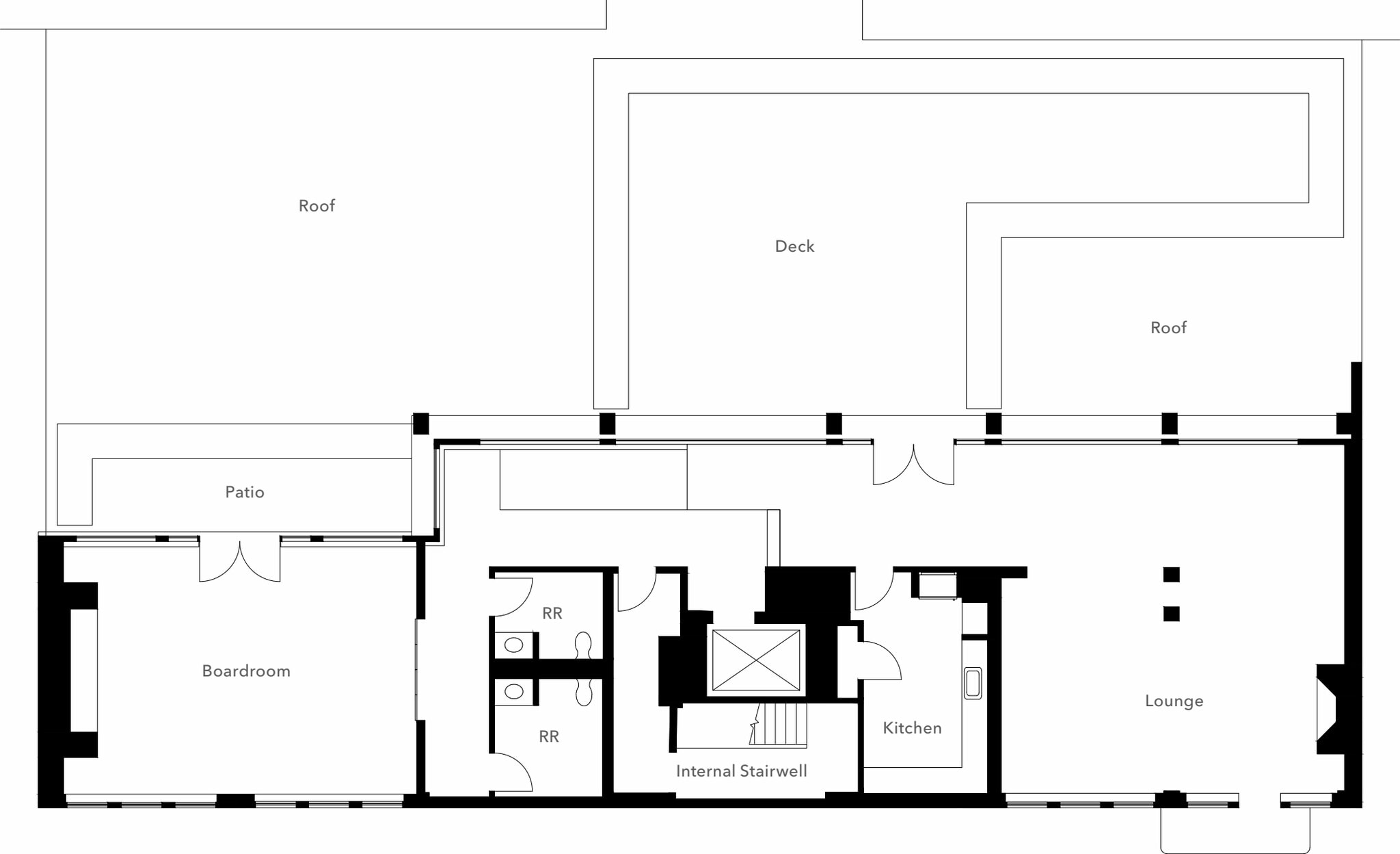
Spectacular penthouse featuring two private terraces and spacious, light-filled boardroom
- Entièrement construit comme Bureau standard
- Convient pour 12 à 36 personnes
- Peut être associé à un ou plusieurs espaces supplémentaires pour obtenir jusqu’à 16 997 pi² d’espace adjacent.
- Balcon
- Kitchen and restrooms on each floor
- Disposition du plan d’étage ouverte en général
- 1 salle de conférence
- Cuisine
- Salle de bains privée
| Espace | Taille | Terme | Taux de location | Utilisation de l’espace | Aménagement | Disponible |
| 1er étage | 6 371 pi² | Négociable | Sur demande Sur demande Sur demande Sur demande | Bureau | selon spécifications | Maintenant |
| 2e étage | 6 386 pi² | Négociable | Sur demande Sur demande Sur demande Sur demande | Bureau | construction complète | Maintenant |
| 3e étage | 6 199 pi² | Négociable | Sur demande Sur demande Sur demande Sur demande | Bureau | construction complète | Maintenant |
| 4e étage, ste Penthouse | 4 412 pi² | Négociable | Sur demande Sur demande Sur demande Sur demande | Bureau | construction complète | Maintenant |
1er étage
| Taille |
| 6 371 pi² |
| Terme |
| Négociable |
| Taux de location |
| Sur demande Sur demande Sur demande Sur demande |
| Utilisation de l’espace |
| Bureau |
| Aménagement |
| selon spécifications |
| Disponible |
| Maintenant |
2e étage
| Taille |
| 6 386 pi² |
| Terme |
| Négociable |
| Taux de location |
| Sur demande Sur demande Sur demande Sur demande |
| Utilisation de l’espace |
| Bureau |
| Aménagement |
| construction complète |
| Disponible |
| Maintenant |
3e étage
| Taille |
| 6 199 pi² |
| Terme |
| Négociable |
| Taux de location |
| Sur demande Sur demande Sur demande Sur demande |
| Utilisation de l’espace |
| Bureau |
| Aménagement |
| construction complète |
| Disponible |
| Maintenant |
4e étage, ste Penthouse
| Taille |
| 4 412 pi² |
| Terme |
| Négociable |
| Taux de location |
| Sur demande Sur demande Sur demande Sur demande |
| Utilisation de l’espace |
| Bureau |
| Aménagement |
| construction complète |
| Disponible |
| Maintenant |
1er étage
| Taille | 6 371 pi² |
| Terme | Négociable |
| Taux de location | Sur demande |
| Utilisation de l’espace | Bureau |
| Aménagement | selon spécifications |
| Disponible | Maintenant |
Spec demo and facade work in progress. Amenity potential: shower/lockers, bike storage, all-hands, etc.
- Le taux comprend les services publics, les services de bâtiment et les dépenses immobilières.
- Disposition du plan d’étage ouverte
- Convient pour 16 à 51 personnes
- Plan ouvert
2e étage
| Taille | 6 386 pi² |
| Terme | Négociable |
| Taux de location | Sur demande |
| Utilisation de l’espace | Bureau |
| Aménagement | construction complète |
| Disponible | Maintenant |
Skylights and floor cutouts provide additional light to upper floors, with extensive Gold Street window-line throughout
- Entièrement construit comme Bureau standard
- Disposition du plan d’étage ouverte en général
- Convient pour 16 à 52 personnes
- 11 bureaux privés
- Peut être associé à un ou plusieurs espaces supplémentaires pour obtenir jusqu’à 16 997 pi² d’espace adjacent.
- Cuisine
- Salle de bains privée
- Entreposage sécurisé
- Interconnecting spiral staircases
- Kitchen and restrooms on each floor
3e étage
| Taille | 6 199 pi² |
| Terme | Négociable |
| Taux de location | Sur demande |
| Utilisation de l’espace | Bureau |
| Aménagement | construction complète |
| Disponible | Maintenant |
Skylights and floor cutouts provide additional light to upper floors, with extensive Gold Street window-line throughout
- Entièrement construit comme Bureau standard
- Disposition du plan d’étage ouverte en général
- Convient pour 16 à 50 personnes
- 8 bureaux privés
- 1 salle de conférence
- Peut être associé à un ou plusieurs espaces supplémentaires pour obtenir jusqu’à 16 997 pi² d’espace adjacent.
- Aire de réception
- Cuisine
- Salle de bains privée
- Entreposage sécurisé
- Interconnecting spiral staircases
- Kitchen and restrooms on each floor
4e étage, ste Penthouse
| Taille | 4 412 pi² |
| Terme | Négociable |
| Taux de location | Sur demande |
| Utilisation de l’espace | Bureau |
| Aménagement | construction complète |
| Disponible | Maintenant |
Spectacular penthouse featuring two private terraces and spacious, light-filled boardroom
- Entièrement construit comme Bureau standard
- Disposition du plan d’étage ouverte en général
- Convient pour 12 à 36 personnes
- 1 salle de conférence
- Peut être associé à un ou plusieurs espaces supplémentaires pour obtenir jusqu’à 16 997 pi² d’espace adjacent.
- Cuisine
- Balcon
- Salle de bains privée
- Kitchen and restrooms on each floor
Aperçu de la propriété
Located within San Francisco’s historic Jackson Square District, 40 Gold Street provides an exceptional opportunity for businesses seeking a headquarters location with character and connectivity. This four-story building features a mix of open collaborative spaces, private offices, and high-end finishes, delivering versatile layouts suitable for modern work environments. Tenants will enjoy a spectacular penthouse level complete with two private terraces and panoramic views, creating a unique setting for executive functions, wellness breaks, and hosted events. The property offers move-in ready space with premium furnishings including sit/stand desks and soft seating, interconnected spiral staircases enhancing flow, and numerous skylights that flood the interiors with natural light. Additional features include an elevator, internal stairwell, restrooms on each floor, fully operable windows, and HVAC throughout. Ground floor improvements are underway, envisioned as flexible amenity space with potential for showers, lockers, and all-hands areas. Situated in one of San Francisco’s most desirable business communities, the location provides unmatched proximity to top venture capital firms, boutique retail, fine dining, and major transportation corridors.
Faits sur la propriété
Sélectionner des locataires
- Étage
- Nom du locataire
- Secteur
- Multiple
- Allison Worldwide
- Services professionnels, scientifiques et techniques
Présenté par
40 Gold St
Hmm, il semble y avoir eu une erreur lors de l’envoi de votre message. Veuillez réessayer.
Merci! Votre message a été envoyé.












