Se Connecter/S’inscrire
Votre courriel a été envoyé.
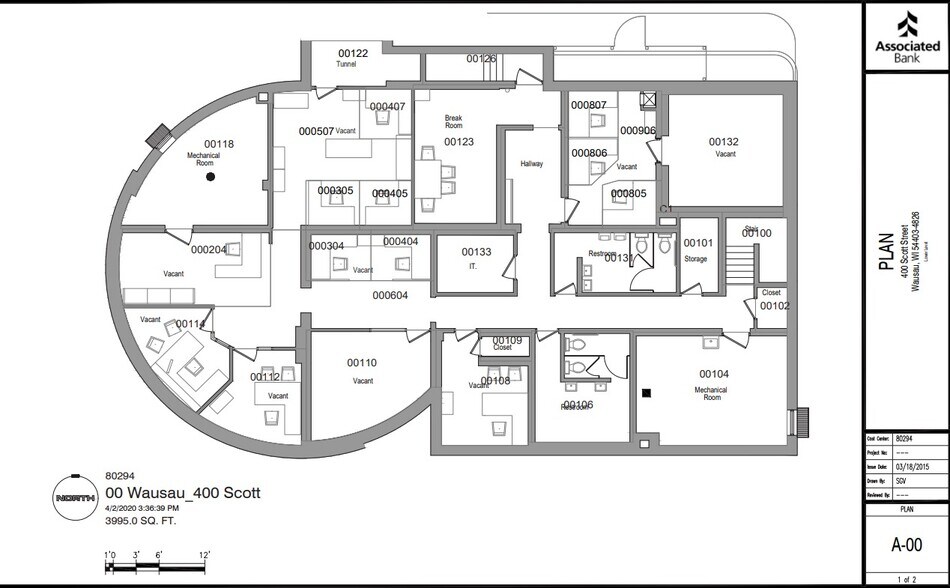
400 Scott St
Wausau, WI 54403
Commerce de détail Propriété À vendre


Certaines informations ont été traduites automatiquement.
FAITS SAILLANTS DE L'INVESTISSEMENT
- Fin de la succursale le 1er mars 2024, veuillez ne pas déranger les employés. Communiquez avec le courtier pour obtenir de plus amples renseignements.
- Immeuble sur pied au cœur du centre-ville de Wausaua
FAITS SUR LA PROPRIÉTÉ
Type de vente
Investissement ou propriétaire utilisateur
Type de propriété
Commerce de détail
Sous-type de propriété
Banque
Taille du bâtiment
4 405 pi²
Classe d’immeuble
C
Année de construction
2000
Location
Unique
Hauteur du bâtiment
2 étages
Coefficient d’occupation des sols de l’immeuble
0,32
Taille du lot
0,32 AC
Zone de développement économique
Oui
Zonage
DHMU - Usage mixte historique du centre-ville
Stationnement
14 places (3,18 places par 1 000 pi² loué)
COMMODITÉS
- Service au volant
Impôts fonciers
| Numéro de lot | 291-2907-253-0283 | Évaluation des bâtiments | 666 646 $ CAD |
| Évaluation du terrain | 348 694 $ CAD | Évaluation totale | 1 015 340 $ CAD |
Impôts fonciers
Numéro de lot
291-2907-253-0283
Évaluation du terrain
348 694 $ CAD
Évaluation des bâtiments
666 646 $ CAD
Évaluation totale
1 015 340 $ CAD
1 de 4
VIDÉOS
VISITE EXTÉRIEURE 3D MATTERPORT
VISITE 3D MATTERPORT
PHOTOS
VUE DEPUIS LA RUE
RUE
CARTE
