Votre courriel a été envoyé.
Building 5 400 Stonebrook Pky 1 150 pi² Bureau Immeuble Frisco, TX 75036 À vendre



Certaines informations ont été traduites automatiquement.
Faits saillants de l'investissement
- Les locataires apprécieront la commodité d'être entourés d'une abondance d'options de vente au détail et de restauration.
- Situé près des collectivités planifiées de Frisco Lakes et Phillips Creek Ranch
- Idéalement situé près du « corridor North Platinum » de Frisco, du péage Sam Rayburn et de la voie de péage Dallas North.
Résumé de l'annonce
Faits sur la propriété
Commodités
- Accès 24 heures
- Affichage
- Accessible aux fauteuils roulants
Disponibilité des espaces
- Espace
- Taille
- Utilisation de l’espace
- État
- Disponible
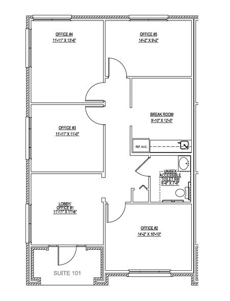
Situé à West Frisco, The Offices at Stonebrook Crossing se compose de 11 immeubles de bureaux professionnels. Il est idéalement situé près de l'intersection de Stonebrook Pkwy et FM 423, à quelques minutes du Dallas North Tollway et du Sam Rayburn Tollway. Cette suite d'angle unique offre 3 bureaux, 1 salle de conférence, 1 salle de bain et une cuisine. Signalisation sur le bâtiment disponible. Appelez dès aujourd'hui pour une visite!
Situé à l'ouest de Frisco, The Offices at Stonebrook Crossing se compose de 11 immeubles de bureaux professionnels. Il est idéalement situé près de l'intersection de Stonebrook Pkwy et FM 423, à quelques minutes du Dallas North Tollway et du Sam Rayburn Tollway. Cette suite unique offre 3 bureaux, 1 salle de conférence, 1 salle de bain et une cuisine. Signalisation sur le bâtiment disponible. Appelez dès aujourd'hui pour une visite!
| Espace | Taille | Utilisation de l’espace | État | Disponible |
| 1er Ét.-ste 505 | 1 150 pi² | Bureau/Médical | construction complète | Maintenant |
| 1er Ét.-ste 802 | 1 150 pi² | Bureau/Médical | construction complète | Maintenant |
1er Ét.-ste 505
| Taille |
| 1 150 pi² |
| Utilisation de l’espace |
| Bureau/Médical |
| État |
| construction complète |
| Disponible |
| Maintenant |
1er Ét.-ste 802
| Taille |
| 1 150 pi² |
| Utilisation de l’espace |
| Bureau/Médical |
| État |
| construction complète |
| Disponible |
| Maintenant |
1er Ét.-ste 505
| Taille | 1 150 pi² |
| Utilisation de l’espace | Bureau/Médical |
| État | construction complète |
| Disponible | Maintenant |
Situé à West Frisco, The Offices at Stonebrook Crossing se compose de 11 immeubles de bureaux professionnels. Il est idéalement situé près de l'intersection de Stonebrook Pkwy et FM 423, à quelques minutes du Dallas North Tollway et du Sam Rayburn Tollway. Cette suite d'angle unique offre 3 bureaux, 1 salle de conférence, 1 salle de bain et une cuisine. Signalisation sur le bâtiment disponible. Appelez dès aujourd'hui pour une visite!
1er Ét.-ste 802
| Taille | 1 150 pi² |
| Utilisation de l’espace | Bureau/Médical |
| État | construction complète |
| Disponible | Maintenant |
Situé à l'ouest de Frisco, The Offices at Stonebrook Crossing se compose de 11 immeubles de bureaux professionnels. Il est idéalement situé près de l'intersection de Stonebrook Pkwy et FM 423, à quelques minutes du Dallas North Tollway et du Sam Rayburn Tollway. Cette suite unique offre 3 bureaux, 1 salle de conférence, 1 salle de bain et une cuisine. Signalisation sur le bâtiment disponible. Appelez dès aujourd'hui pour une visite!
Présenté par
Building 5 | 400 Stonebrook Pky
Hmm, il semble y avoir eu une erreur lors de l’envoi de votre message. Veuillez réessayer.
Merci! Votre message a été envoyé.






