Votre courriel a été envoyé.
Ruthven East Lakeland Industrial Park Lakeland, FL 33805 7 280–18 200 pi² d'espace disponible • Industriel



Certaines informations ont été traduites automatiquement.
Faits saillants du parc
- Campus industriel à bâtiments multiples offrant un minimum de deux baies à 4 680 SF jusqu'à 31 baies contiguës à 87 360 PF avec certaines options à baie unique.
- Idéal pour la fabrication et la distribution avec une charge abondante à hauteur d'quai et de niveau, des caméras de sécurité accessibles sur le Web, une puissance élevée et des plafonds de 24 pi.
- Situé entre Tampa et Orlando, offrant un accès facile et une excellente connectivité avec un grand parking et à cinq minutes en voiture de l'I-4.
- Profitez d'un accès immédiat à l'ESM de Lakeland-Winter Haven, qui représente une population croissante de plus de 640 000 résidents.
Faits sur le parc
| Superficie totale disponible | 18 200 pi² | Type de parc | Parc industriel |
| Superficie totale disponible | 18 200 pi² |
| Type de parc | Parc industriel |
Tous les espaces disponibles(2)
Afficher les taux de location en
- Espace
- Taille
- Terme
- Taux de location
- Utilisation de l’espace
- Aménagement
- Disponible
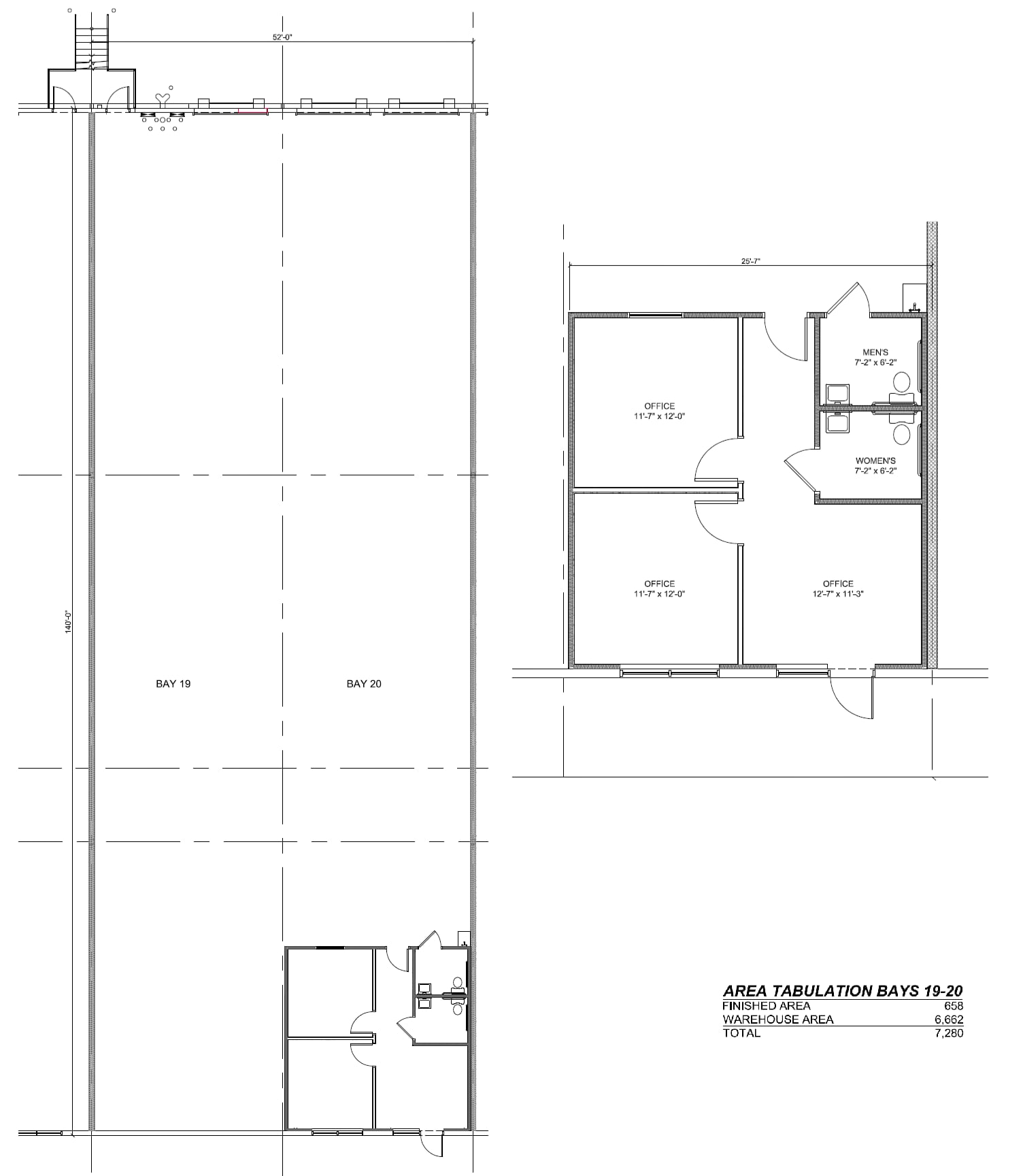
10,920 SF unit includes 664 SF of office, 4 dock high doors and 1 ramp. 120/208V and 277/480V, 200A, 3-Phase power.
- Le taux de location ne comprend pas les services publics, les services de bâtiment ou les dépenses immobilières.
- Espace en excellent état
- 10 920 SF d'espace dont 664 PF de bureaux
- Alimentation triphasée 120/208 V et 277/480 V, 200 A
- Comprend 664 pi² d’espace de bureau dédié
- 3 quais de chargement
- 4 portes à hauteur de quai et 1 rampe
| Espace | Taille | Terme | Taux de location | Utilisation de l’espace | Aménagement | Disponible |
| 1er étage - 12-15 | 10 920 pi² | Négociable | Sur demande Sur demande Sur demande Sur demande | Industriel | construction complète | Maintenant |
4040 N Combee Rd - 1er étage - 12-15
- Espace
- Taille
- Terme
- Taux de location
- Utilisation de l’espace
- Aménagement
- Disponible
7,280 SF unit includes 659 SF of office and 2 dock high doors. 120/208V & 277/480V, 200A, 3-Phase power.
- Le taux de location ne comprend pas les services publics, les services de bâtiment ou les dépenses immobilières.
- Espace en excellent état
- 7,280 SF Unit with 659 SF of Office
- 2 dock high doors
- Comprend 659 pi² d’espace de bureau dédié
- 3 quais de chargement
- 7,280 SF Unit with 659 SF of Office
- 120/208V & 277/480V, 200A, 3-Phase Power
| Espace | Taille | Terme | Taux de location | Utilisation de l’espace | Aménagement | Disponible |
| 1er étage - 19-20 | 7 280 pi² | Négociable | Sur demande Sur demande Sur demande Sur demande | Industriel | construction complète | Maintenant |
4000 N Combee Rd - 1er étage - 19-20
4040 N Combee Rd - 1er étage - 12-15
| Taille | 10 920 pi² |
| Terme | Négociable |
| Taux de location | Sur demande |
| Utilisation de l’espace | Industriel |
| Aménagement | construction complète |
| Disponible | Maintenant |
10,920 SF unit includes 664 SF of office, 4 dock high doors and 1 ramp. 120/208V and 277/480V, 200A, 3-Phase power.
- Le taux de location ne comprend pas les services publics, les services de bâtiment ou les dépenses immobilières.
- Comprend 664 pi² d’espace de bureau dédié
- Espace en excellent état
- 3 quais de chargement
- 10 920 SF d'espace dont 664 PF de bureaux
- 4 portes à hauteur de quai et 1 rampe
- Alimentation triphasée 120/208 V et 277/480 V, 200 A
4000 N Combee Rd - 1er étage - 19-20
| Taille | 7 280 pi² |
| Terme | Négociable |
| Taux de location | Sur demande |
| Utilisation de l’espace | Industriel |
| Aménagement | construction complète |
| Disponible | Maintenant |
7,280 SF unit includes 659 SF of office and 2 dock high doors. 120/208V & 277/480V, 200A, 3-Phase power.
- Le taux de location ne comprend pas les services publics, les services de bâtiment ou les dépenses immobilières.
- Comprend 659 pi² d’espace de bureau dédié
- Espace en excellent état
- 3 quais de chargement
- 7,280 SF Unit with 659 SF of Office
- 7,280 SF Unit with 659 SF of Office
- 2 dock high doors
- 120/208V & 277/480V, 200A, 3-Phase Power
Aperçu du parc
Le Ruthven East Lakeland Industrial Park est un nouveau campus composé de trois installations haut de gamme dont la superficie varie de 101 010 à 197 000 pieds carrés. Situé dans le centre de la Floride le long du corridor I-4, le Ruthven East Lakeland Industrial Park offre 24 pi de hauteur libre, plus de 100 quais de chargement et un parc de remorques abondant, ce qui le rend idéal pour les personnes ayant des besoins en distribution ou en entreposage. Terminé au cours de la phase 1, 4000 N Combee Road comprend des baies de 26 pi par 140 pi et 7 280 pieds carrés disponibles aux baies 9 et 10. Le 4040 N Combee Road est le dernier des trois bâtiments avec des baies de 26 pi sur 105 pi disponibles à la location à un minimum de deux baies avec une disponibilité sélectionnée d'une baie. Les bâtiments comprennent des portes à quai de 10 pi sur 10 pi, des portes de niveau 14 pi sur 12 pi, des gicleurs ESFR, des systèmes électriques triphasés de 277/480 volts et des systèmes électriques triphasés de 120/208 volts. Le parc industriel Ruthven East Lakeland est facilement accessible avec de multiples points d'entrée/sortie, de larges terrains pour camions et trois milles jusqu'à I-4. Situé entre Tampa (43 milles) et Orlando (58 milles), Ruthven East Lakeland Industrial Park est idéal pour la distribution, avec 10 millions de personnes à moins de 100 milles et 19,5 millions de personnes à moins de 200 milles, en hausse de 15 % en 10 ans.
Présenté par
Ruthven East Lakeland Industrial Park | Lakeland, FL 33805
Hmm, il semble y avoir eu une erreur lors de l’envoi de votre message. Veuillez réessayer.
Merci! Votre message a été envoyé.




