Se Connecter/S’inscrire
Votre courriel a été envoyé.
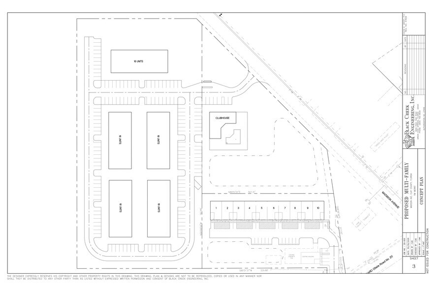
401 Madison Ave - 401 Madison Ave Orange Park, FL 32065 Lot • Terrain commercial • 7,16 Acres • 3 007 906 $ CAD • Orange Park, FL 32065



Certaines informations ont été traduites automatiquement.
Faits saillants de l'investissement
- Convenient access to Blanding Blvd (51,000 AADT)
- Available UC-10 Land Use!
- Just 3 miles to SR23 (First Coast Expressway)
Résumé de l'annonce
PRIME lots with UC-10 land use available!
Faits sur la propriété
1 Lot disponible
Lot
| Prix | 3 007 906 $ CAD | Taille du lot | 7,16 AC |
| Prix par AC | 420 098,62 $ CAD |
| Prix | 3 007 906 $ CAD |
| Prix par AC | 420 098,62 $ CAD |
| Taille du lot | 7,16 AC |
7.16 acres
Description
Two parcels totaling 7.16 acres with convenient access to Blanding Blvd! Surrounded by Ridgeview High School, existing PUD, and multiple businesses, this property provides AMPLE potential for residential, multi-family, PUD, or commerical delevelopment. All utilities established onsite including city water & sewer. Available for UC-10 land use per Clay County! Buyer to verify all information.
1 1
Impôts fonciers
| Numéros de lot | Évaluation des bâtiments | 306 486 $ CAD | |
| Évaluation du terrain | 489 468 $ CAD | Évaluation totale | 795 955 $ CAD |
Impôts fonciers
Numéros de lot
Évaluation du terrain
489 468 $ CAD
Évaluation des bâtiments
306 486 $ CAD
Évaluation totale
795 955 $ CAD
1 de 18
Vidéos
Visite extérieure 3D Matterport
Visite 3D Matterport
Photos
Vue depuis la rue
Rue
Carte
1 de 1
Présenté par
401 Madison Ave - 401 Madison Ave Orange Park, FL 32065
Vous êtes déjà membre? Connectez-vous
Hmm, il semble y avoir eu une erreur lors de l’envoi de votre message. Veuillez réessayer.
Merci! Votre message a été envoyé.
