Votre courriel a été envoyé.
Flex Space for Lease 4011-4015 Dearborn Pl 3 500 pi² d'espace disponible • Industriel • Concord, NC 28027



Certaines informations ont été traduites automatiquement.
FAITS SAILLANTS
- 3,500 SF flex/warehouse space with mezzanine storage
- Fully conditioned warehouse and office space
- Convenient Concord location near Highway 29 and Charlotte Motor Speedway
- 16’–18’ clear heights with 12’ x 14’ grade-level door
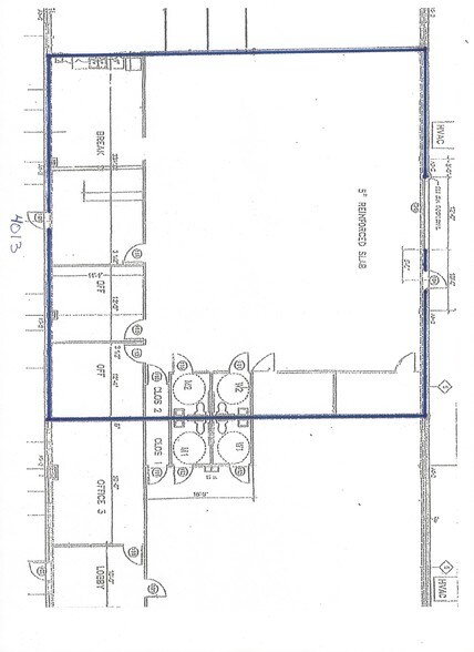
- Two private offices, reception, kitchen, and restrooms
CARACTÉRISTIQUES
TOUS LES ESPACES DISPONIBLES(1)
Afficher les taux de location en
- ESPACE
- TAILLE
- TERME
- TAUX DE LOCATION
- UTILISATION DE L’ESPACE
- ÉTAT
- DISPONIBLE
For Lease: 3,500 SF Flex/Warehouse Space in Concord, NC Prime 3,500 SF flex/warehouse space in excellent condition, strategically located just off Highway 29 near the Charlotte Motor Speedway. This property features two private offices, a professional reception area, kitchen, and private restrooms. The warehouse offers 16’ clear at the eaves and up to 18’ clear height in the center, plus a 12’ wide by 14’ high grade-level door for easy access. Additional mezzanine storage provides extra functionality. Both the warehouse and office areas are fully conditioned, offering year-round comfort and efficiency. With a convenient location in Concord’s growing commercial corridor, this flex space is ideal for distribution, light manufacturing, or service-oriented businesses seeking visibility and accessibility.
- Le taux inscrit peut ne pas comprendre certains services publics, les services de bâtiment et les dépenses immobilières.
- Espace en excellent état
- Bureaux partitionnés
- 3,500 SF flex/warehouse space
- 12’ x 14’ grade-level door
- Near Highway 29 and Charlotte Motor Speedway
- 1 accès plain-pied
- Air central et chauffage
- Salle de bains privée
- 16’–18’ clear heights
- Fully conditioned warehouse
- Two private offices
| Espace | Taille | Terme | Taux de location | Utilisation de l’espace | État | Disponible |
| 1er étage - 4013 | 3 500 pi² | Négociable | 18,14 $ CAD/pi²/an 1,51 $ CAD/pi²/mois 63 482 $ CAD/an 5 290 $ CAD/mois | Industriel | construction complète | 2026-01-01 |
1er étage - 4013
| Taille |
| 3 500 pi² |
| Terme |
| Négociable |
| Taux de location |
| 18,14 $ CAD/pi²/an 1,51 $ CAD/pi²/mois 63 482 $ CAD/an 5 290 $ CAD/mois |
| Utilisation de l’espace |
| Industriel |
| État |
| construction complète |
| Disponible |
| 2026-01-01 |
1er étage - 4013
| Taille | 3 500 pi² |
| Terme | Négociable |
| Taux de location | 18,14 $ CAD/pi²/an |
| Utilisation de l’espace | Industriel |
| État | construction complète |
| Disponible | 2026-01-01 |
For Lease: 3,500 SF Flex/Warehouse Space in Concord, NC Prime 3,500 SF flex/warehouse space in excellent condition, strategically located just off Highway 29 near the Charlotte Motor Speedway. This property features two private offices, a professional reception area, kitchen, and private restrooms. The warehouse offers 16’ clear at the eaves and up to 18’ clear height in the center, plus a 12’ wide by 14’ high grade-level door for easy access. Additional mezzanine storage provides extra functionality. Both the warehouse and office areas are fully conditioned, offering year-round comfort and efficiency. With a convenient location in Concord’s growing commercial corridor, this flex space is ideal for distribution, light manufacturing, or service-oriented businesses seeking visibility and accessibility.
- Le taux inscrit peut ne pas comprendre certains services publics, les services de bâtiment et les dépenses immobilières.
- 1 accès plain-pied
- Espace en excellent état
- Air central et chauffage
- Bureaux partitionnés
- Salle de bains privée
- 3,500 SF flex/warehouse space
- 16’–18’ clear heights
- 12’ x 14’ grade-level door
- Fully conditioned warehouse
- Near Highway 29 and Charlotte Motor Speedway
- Two private offices
APERÇU DE LA PROPRIÉTÉ
For Lease: 3,500 SF Flex/Warehouse Space in Concord, NC Prime 3,500 SF flex/warehouse space in excellent condition, strategically located just off Highway 29 near the Charlotte Motor Speedway. This property features two private offices, a professional reception area, kitchen, and private restrooms. The warehouse offers 16’ clear at the eaves and up to 18’ clear height in the center, plus a 12’ wide by 14’ high grade-level door for easy access. Additional mezzanine storage provides extra functionality. Both the warehouse and office areas are fully conditioned, offering year-round comfort and efficiency. With a convenient location in Concord’s growing commercial corridor, this flex space is ideal for distribution, light manufacturing, or service-oriented businesses seeking visibility and accessibility.
FAITS SUR LA PROPRIÉTÉ
SÉLECTIONNER DES LOCATAIRES
- ÉTAGE
- NOM DU LOCATAIRE
- SECTEUR
- 1ᵉʳ
- Advance Stores
- Fabrication
- 1ᵉʳ
- POMP POSH LLC
- -
Présenté par
Flex Space for Lease | 4011-4015 Dearborn Pl
Hmm, il semble y avoir eu une erreur lors de l’envoi de votre message. Veuillez réessayer.
Merci! Votre message a été envoyé.



