Se Connecter/S’inscrire
Votre courriel a été envoyé.
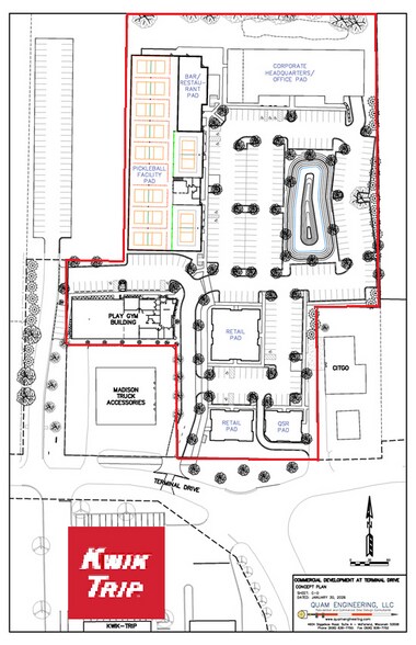
Commercial Park | Build-To-Suit | Lake View 4012 Terminal Dr Terrain à louer de 5,94–5,95 acres • Terrain commercial • McFarland, WI 53558



Certaines informations ont été traduites automatiquement.
Faits saillants
- Lighted Intersection
- Easy Access to Hwy 51, Hwy 12 & 18 (Beltline Hwy) and Interstate 90
- High Traffic & High Visibility
LOT Disponible
Afficher les taux de location en
| Taux de location |
|
Taille du lot | 5,94 à 5,95 AC |
| Durée du bail | Négociable |
| Taux de location | |
| Durée du bail | Négociable |
| Taille du lot | 5,94 à 5,95 AC |
This 5.94 acre property is just south of the Beltline on Terminal Drive with four pad sites that can be leased or the Landlord will build-to-suit for the right tenants. Excellent lake views towards the back of the lot. Easy access to Hwy 51, Beltline, and the Interstate. Looking for a QSR operator with good track record for a build-to-suit restaurant across from the new Kwik Trip that is under construction. The landlord is also looking for additional uses for the other pad sites, like Sit Down Bar / Restaurant, Sports Complex (volleyball, pickleball, etc.), and Corporate Headquarters / Office. Landlord will consider any other compatable uses.
Aperçu de la propriété
Deux petits terrains sur Terminal Drive, chacun avec deux anciens bâtiments qui ont été démolis. À l'arrière (au nord), il y a 4,77 acres principalement composés d'arbres dégagés et nettoyés. En face, un nouveau Kwik Trip est en cours de construction (début des travaux prévu pour la fin juillet 2025).
Faits sur la propriété
Plutôt praticable à pied
30/100
Exceptionnellement facile d’accès en voiture
100/100
Transports en commun très limités
10/100
Plutôt praticable en vélo
50/100
1 de 5
Vidéos
Visite extérieure 3D Matterport
Visite 3D Matterport
Photos
Vue depuis la rue
Rue
Carte
Présenté par
Sanford Enterprises, Inc.
Commercial Park | Build-To-Suit | Lake View | 4012 Terminal Dr
Vous êtes déjà membre? Connectez-vous
Hmm, il semble y avoir eu une erreur lors de l’envoi de votre message. Veuillez réessayer.
Merci! Votre message a été envoyé.

