Votre courriel a été envoyé.
406 Mill St 1 500 pi² Commerce de détail Immeuble Occoquan, VA 22125 951 948 $ CAD (634,63 $ CAD/pi²)



Certaines informations ont été traduites automatiquement.
Résumé de l'annonce
This retail space is ideally situated on Mill Street in the heart of Occoquan’s historic district, providing both charm and accessibility. The property benefits from excellent connectivity, with convenient access to major routes including Rt. 123, I-95, and Rt. 1—making it easily reachable for both local and regional customers. Its proximity to these key thoroughfares not only enhances convenience for visitors but also positions the space as a strategic location for businesses looking to attract shoppers from nearby communities and commuters passing through the area. Combined with its prime location next to one of the town’s most popular restaurants and the lively atmosphere of nearby shops, this setting offers exceptional visibility and foot traffic potential.
Faits sur la propriété
Commodités
- Affichage
- Climatisation
Disponibilité des espaces
- Espace
- Taille
- Utilisation de l’espace
- Poste
- Disponible
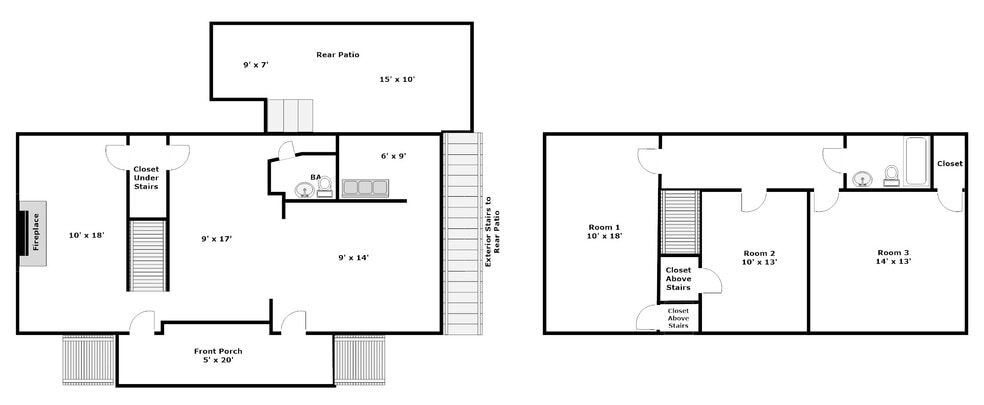
Ce bâtiment commercial de 1 500 pieds carrés, initialement construit en 1750 et inscrit au registre historique, offre un mélange unique de charme historique et de commodités modernes. Avec ses six pièces spacieuses et ses deux salles de bain, cet espace offre une grande flexibilité pour divers usages commerciaux ou boutiques (la préparation de nourriture sur place n'est pas autorisée à cet emplacement). Le bâtiment dispose d'un accueillant porche avant de 100 pieds carrés et d'un patio arrière de 210 pieds carrés—idéal pour améliorer l'expérience des clients ou exposer des marchandises. Récemment rénové, il est prêt pour une occupation immédiate! Un bail de 5 ans est disponible, ce qui représente une opportunité exceptionnelle pour les entreprises à la recherche d'un emplacement distinctif et prêt à l'emploi. Cet espace commercial est idéalement situé sur Mill Street, au cœur du quartier historique d’Occoquan, offrant à la fois charme et accessibilité. La propriété bénéficie d'une excellente connectivité, avec un accès pratique aux principales routes, notamment la Rt. 123, l’I-95 et la Rt. 1—ce qui la rend facilement accessible pour les clients locaux et régionaux. Sa proximité avec ces axes clés améliore non seulement la commodité pour les visiteurs, mais positionne également l’espace comme un emplacement stratégique pour les entreprises cherchant à attirer les acheteurs des communautés voisines et les navetteurs de passage. Combiné à son emplacement privilégié à côté de l’un des restaurants les plus populaires de la ville et à l’atmosphère animée des boutiques environnantes, cet espace offre une visibilité exceptionnelle et un fort potentiel de trafic piétonnier.
Ce bâtiment commercial de 1 500 pieds carrés, initialement construit en 1750 et inscrit au registre historique, offre un mélange unique de charme historique et de commodités modernes. Avec ses six pièces spacieuses et ses deux salles de bain, cet espace offre une grande flexibilité pour divers usages commerciaux ou boutiques (la préparation de nourriture sur place n'est pas autorisée à cet emplacement). Le bâtiment dispose d'un accueillant porche avant de 100 pieds carrés et d'un patio arrière de 210 pieds carrés—idéal pour améliorer l'expérience des clients ou exposer des marchandises. Récemment rénové, il est prêt pour une occupation immédiate! Un bail de 5 ans est disponible, ce qui représente une opportunité exceptionnelle pour les entreprises à la recherche d'un emplacement distinctif et prêt à l'emploi. Cet espace commercial est idéalement situé sur Mill Street, au cœur du quartier historique d'Occoquan, offrant à la fois charme et accessibilité. La propriété bénéficie d'une excellente connectivité, avec un accès pratique aux principales routes, notamment la Rt. 123, l'I-95 et la Rt. 1—ce qui la rend facilement accessible pour les clients locaux et régionaux. Sa proximité avec ces axes clés améliore non seulement la commodité pour les visiteurs, mais positionne également l'espace comme un emplacement stratégique pour les entreprises cherchant à attirer des acheteurs des communautés voisines et des navetteurs de passage. Combiné à son emplacement privilégié à côté de l'un des restaurants les plus populaires de la ville et à l'atmosphère animée des boutiques environnantes, cet espace offre une visibilité exceptionnelle et un fort potentiel de trafic piétonnier.
| Espace | Taille | Utilisation de l’espace | Poste | Disponible |
| 1er étage | 750 pi² | Commerce de détail | En ligne | Maintenant |
| 2e étage | 750 pi² | Commerce de détail | En ligne | Maintenant |
1er étage
| Taille |
| 750 pi² |
| Utilisation de l’espace |
| Commerce de détail |
| Poste |
| En ligne |
| Disponible |
| Maintenant |
2e étage
| Taille |
| 750 pi² |
| Utilisation de l’espace |
| Commerce de détail |
| Poste |
| En ligne |
| Disponible |
| Maintenant |
1er étage
| Taille | 750 pi² |
| Utilisation de l’espace | Commerce de détail |
| Poste | En ligne |
| Disponible | Maintenant |
Ce bâtiment commercial de 1 500 pieds carrés, initialement construit en 1750 et inscrit au registre historique, offre un mélange unique de charme historique et de commodités modernes. Avec ses six pièces spacieuses et ses deux salles de bain, cet espace offre une grande flexibilité pour divers usages commerciaux ou boutiques (la préparation de nourriture sur place n'est pas autorisée à cet emplacement). Le bâtiment dispose d'un accueillant porche avant de 100 pieds carrés et d'un patio arrière de 210 pieds carrés—idéal pour améliorer l'expérience des clients ou exposer des marchandises. Récemment rénové, il est prêt pour une occupation immédiate! Un bail de 5 ans est disponible, ce qui représente une opportunité exceptionnelle pour les entreprises à la recherche d'un emplacement distinctif et prêt à l'emploi. Cet espace commercial est idéalement situé sur Mill Street, au cœur du quartier historique d’Occoquan, offrant à la fois charme et accessibilité. La propriété bénéficie d'une excellente connectivité, avec un accès pratique aux principales routes, notamment la Rt. 123, l’I-95 et la Rt. 1—ce qui la rend facilement accessible pour les clients locaux et régionaux. Sa proximité avec ces axes clés améliore non seulement la commodité pour les visiteurs, mais positionne également l’espace comme un emplacement stratégique pour les entreprises cherchant à attirer les acheteurs des communautés voisines et les navetteurs de passage. Combiné à son emplacement privilégié à côté de l’un des restaurants les plus populaires de la ville et à l’atmosphère animée des boutiques environnantes, cet espace offre une visibilité exceptionnelle et un fort potentiel de trafic piétonnier.
2e étage
| Taille | 750 pi² |
| Utilisation de l’espace | Commerce de détail |
| Poste | En ligne |
| Disponible | Maintenant |
Ce bâtiment commercial de 1 500 pieds carrés, initialement construit en 1750 et inscrit au registre historique, offre un mélange unique de charme historique et de commodités modernes. Avec ses six pièces spacieuses et ses deux salles de bain, cet espace offre une grande flexibilité pour divers usages commerciaux ou boutiques (la préparation de nourriture sur place n'est pas autorisée à cet emplacement). Le bâtiment dispose d'un accueillant porche avant de 100 pieds carrés et d'un patio arrière de 210 pieds carrés—idéal pour améliorer l'expérience des clients ou exposer des marchandises. Récemment rénové, il est prêt pour une occupation immédiate! Un bail de 5 ans est disponible, ce qui représente une opportunité exceptionnelle pour les entreprises à la recherche d'un emplacement distinctif et prêt à l'emploi. Cet espace commercial est idéalement situé sur Mill Street, au cœur du quartier historique d'Occoquan, offrant à la fois charme et accessibilité. La propriété bénéficie d'une excellente connectivité, avec un accès pratique aux principales routes, notamment la Rt. 123, l'I-95 et la Rt. 1—ce qui la rend facilement accessible pour les clients locaux et régionaux. Sa proximité avec ces axes clés améliore non seulement la commodité pour les visiteurs, mais positionne également l'espace comme un emplacement stratégique pour les entreprises cherchant à attirer des acheteurs des communautés voisines et des navetteurs de passage. Combiné à son emplacement privilégié à côté de l'un des restaurants les plus populaires de la ville et à l'atmosphère animée des boutiques environnantes, cet espace offre une visibilité exceptionnelle et un fort potentiel de trafic piétonnier.
Principaux détaillants à proximité
Impôts fonciers
| Numéro de lot | 8393-64-3888 | Évaluation des bâtiments | 315 855 $ CAD |
| Évaluation du terrain | 76 430 $ CAD | Évaluation totale | 392 285 $ CAD |
Impôts fonciers
Présenté par
406 Mill St
Hmm, il semble y avoir eu une erreur lors de l’envoi de votre message. Veuillez réessayer.
Merci! Votre message a été envoyé.





