Se Connecter/S’inscrire
Votre courriel a été envoyé.
G 407 Bryant Cir 2 250 pi² 100% Loué Bureau Immeuble Ojai, CA 93023 1 357 419 $ CAD (603,30 $ CAD/pi²)



Certaines informations ont été traduites automatiquement.
Faits saillants de l'investissement
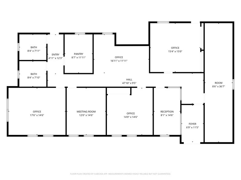
- 2250 SqFt of work space, 4 private offices, 1 open work area, Kitchen and breakroom
- Ample parking and well maintained grounds
- Ojai Business Park easy access to Hwy 33 and downtown Ojai
Résumé de l'annonce
Discover a rare opportunity to own a beautifully maintained professional office suite in the highly sought-after Ojai Valley Business Park. Built in 2006 and proudly occupied by the same owner since construction, this 2,250 sq. ft. space combines modern functionality with timeless quality.
Designed for efficiency and comfort, the layout features four private offices, a welcoming reception area with secure buzzer entry, and a spacious open work area ideal for team collaboration. The suite also includes a dedicated file room, men's and women's restrooms, and a well-appointed kitchen/breakroomeverything your business needs to thrive in a professional, comfortable environment.
The Ojai Valley Business Park offers a clean, well-managed setting surrounded by established local businesses, with ample parking and easy access to Highway 33. Whether you're looking to elevate your current workspace or establish a new office in the heart of the Ojai Valley, this property offers an ideal blend of privacy, accessibility, and long-term value.
Designed for efficiency and comfort, the layout features four private offices, a welcoming reception area with secure buzzer entry, and a spacious open work area ideal for team collaboration. The suite also includes a dedicated file room, men's and women's restrooms, and a well-appointed kitchen/breakroomeverything your business needs to thrive in a professional, comfortable environment.
The Ojai Valley Business Park offers a clean, well-managed setting surrounded by established local businesses, with ample parking and easy access to Highway 33. Whether you're looking to elevate your current workspace or establish a new office in the heart of the Ojai Valley, this property offers an ideal blend of privacy, accessibility, and long-term value.
Faits sur la propriété
Type de vente
Investissement ou propriétaire utilisateur
Type de propriété
Taille du bâtiment
2 250 pi²
Classe d’immeuble
C
Année de construction
2006
Prix
1 357 419 $ CAD
Prix par pi²
603,30 $ CAD
Pourcentage loué
100%
Location
Multiples
Hauteur du bâtiment
1 étage
Superficie de plancher typique
2 250 pi²
Coefficient d’occupation des sols de l’immeuble
0,22
Taille du lot
0,24 AC
Zonage
M1 - Fabrication légère M1 et commercial
Stationnement
14 places (6,22 places par 1 000 pi² loué)
Commodités
- Affichage
- Réception
- Affichage sur monument
- Climatisation
Principaux locataires
- Locataire
- Secteur
- pi² Occupé
- Loyer/pi²
- Fin du bail
- calix oil co
- -
- -
- -
- -
- P C adams
- -
- -
- -
- -
- w t hammond
- -
- -
- -
- -
- yorba oil co
- Exploitation minière, carrière et extraction de pétrole et de gaz
- -
- -
- -
| Locataire | Secteur | pi² Occupé | Loyer/pi² | Fin du bail | ||
| calix oil co | - | - | - | - | ||
| P C adams | - | - | - | - | ||
| w t hammond | - | - | - | - | ||
| yorba oil co | Exploitation minière, carrière et extraction de pétrole et de gaz | - | - | - |
1 1
Assez praticable à pied
40/100
Très facile d’accès en voiture
80/100
Transports en commun limités
30/100
Moyennement praticable en vélo
60/100
Impôts fonciers
| Numéro de lot | 024-0-160-075 | Évaluation des bâtiments | 692 742 $ CAD |
| Évaluation du terrain | 301 490 $ CAD | Évaluation totale | 994 232 $ CAD |
Impôts fonciers
Numéro de lot
024-0-160-075
Évaluation du terrain
301 490 $ CAD
Évaluation des bâtiments
692 742 $ CAD
Évaluation totale
994 232 $ CAD
1 de 27
Vidéos
Visite extérieure 3D Matterport
Visite 3D Matterport
Photos
Vue depuis la rue
Rue
Carte
1 de 1
Présenté par
G | 407 Bryant Cir
Vous êtes déjà membre? Connectez-vous
Hmm, il semble y avoir eu une erreur lors de l’envoi de votre message. Veuillez réessayer.
Merci! Votre message a été envoyé.
