Votre courriel a été envoyé.
41-04 27th St - Queens Boro Tower Unités de condo • Commerce de détail • 973-1 570 pi² • À vendre 1 076 021 $-2 929 891 $ CAD par unité • Long Island City, NY 11101



Certaines informations ont été traduites automatiquement.
Salle de données Cliquez ici pour accéder à
- Offering Memorandum
Faits sur la propriété
| Taille totale du bâtiment | 24 987 pi² | Superficie de plancher typique | 3 583 pi² |
| Type de propriété | Immeuble residentiel | Année de construction | 2018 |
| Sous-type de propriété | Appartement | Taille du lot | 0,11 AC |
| Classe d’immeuble | B | Zone de développement économique |
Oui
|
| Planchers | 9 | ||
| Zonage | M1-5/R7-3 | ||
| Taille totale du bâtiment | 24 987 pi² |
| Type de propriété | Immeuble residentiel |
| Sous-type de propriété | Appartement |
| Classe d’immeuble | B |
| Planchers | 9 |
| Superficie de plancher typique | 3 583 pi² |
| Année de construction | 2018 |
| Taille du lot | 0,11 AC |
| Zone de développement économique |
Oui |
| Zonage | M1-5/R7-3 |
Commodités
Commodités des unités
- Cuisine
- Bain/Douche
Commodités du site
- Ascenseur
4 Unités disponibles
Unité S3/S4
| Taille de l’unité | 1 404 pi² | Type de vente | Investissement |
| Prix | 1 552 655 $ CAD | Taux de capitalisation | 4,37% |
| Prix par pi² | 1 105,88 $ CAD | Revenu net d’exploitation | 67 899,65 $ CAD |
| Utilisation du condo | Commerce de détail |
| Taille de l’unité | 1 404 pi² |
| Prix | 1 552 655 $ CAD |
| Prix par pi² | 1 105,88 $ CAD |
| Utilisation du condo | Commerce de détail |
| Type de vente | Investissement |
| Taux de capitalisation | 4,37% |
| Revenu net d’exploitation | 67 899,65 $ CAD |
Description
Approx. 1,325 SF total interior space (618 SF + 707 SF), configured as a fully built-out dentist’s office
Medical / professional use layout, ideal for owner-user or investor with stable tenancy
Located near Court Square, surrounded by new residential and office developments, supporting consistent patient demand
Unique Value: Established Medical Use & Functional Layout
The property is currently configured as a dentist’s office, featuring a purpose-built medical layout that enhances operational efficiency and long-term usability.
Key advantages include:
Medical-ready layout suitable for dental or related healthcare practices
Efficient room configuration supporting patient flow and clinical operations
Strong local demographics supported by surrounding residential growth and office population
This setup minimizes conversion costs for medical users and provides investors with a stable, professional-use asset.
Unité S5
| Taille de l’unité | 973 pi² | Type de vente | Investissement |
| Prix | 1 076 021 $ CAD | Taux de capitalisation | 4,14% |
| Prix par pi² | 1 105,88 $ CAD | Revenu net d’exploitation | 44 558,67 $ CAD |
| Utilisation du condo | Commerce de détail |
| Taille de l’unité | 973 pi² |
| Prix | 1 076 021 $ CAD |
| Prix par pi² | 1 105,88 $ CAD |
| Utilisation du condo | Commerce de détail |
| Type de vente | Investissement |
| Taux de capitalisation | 4,14% |
| Revenu net d’exploitation | 44 558,67 $ CAD |
Description
Approx. 973 SF retail space, currently operating as a Lash & Brow boutique
Turnkey beauty-use layout, ideal for lash, brow, facial, skincare, or similar personal service businesses
Located near Court Square, surrounded by dense new residential and office developments, supporting strong walk-in and repeat client
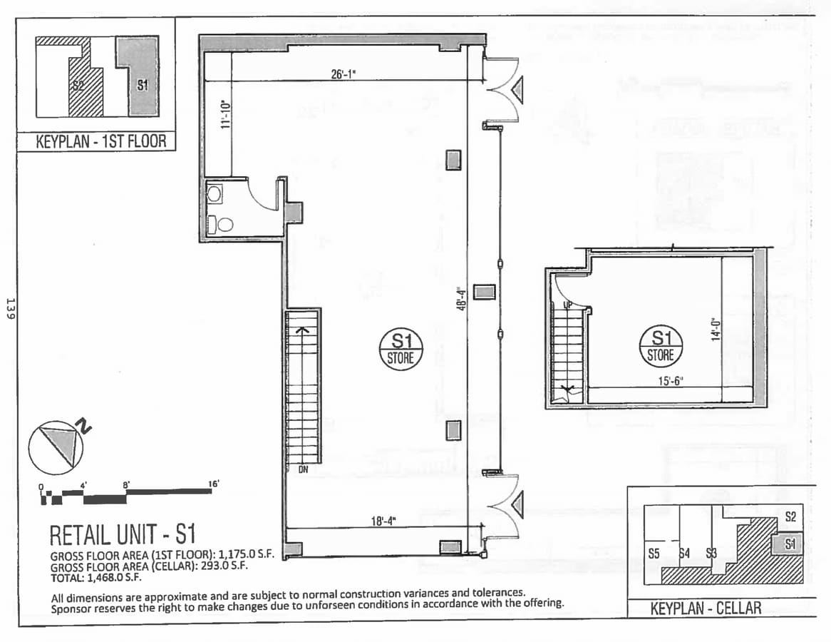
Unité S1
| Taille de l’unité | 1 468 pi² | Type de vente | Investissement ou propriétaire utilisateur |
| Prix | 2 638 077 $ CAD | Taux de capitalisation | 4,10% |
| Prix par pi² | 1 797,05 $ CAD | Revenu net d’exploitation | 108 203,44 $ CAD |
| Utilisation du condo | Commerce de détail |
| Taille de l’unité | 1 468 pi² |
| Prix | 2 638 077 $ CAD |
| Prix par pi² | 1 797,05 $ CAD |
| Utilisation du condo | Commerce de détail |
| Type de vente | Investissement ou propriétaire utilisateur |
| Taux de capitalisation | 4,10% |
| Revenu net d’exploitation | 108 203,44 $ CAD |
Description
Positioned in the heart of Long Island City, this fully leased retail investment features an established bagel store with strong neighborhood recognition and daily customer traffic.
Key Highlights
- Approx. 1,468SF
- Long-term retail tenant with built-in rent escalations
Located near Court Square, surrounded by new residential and office developments
Notes sur la vente
Prime LIC Retail Investment – Bagel Store with Outdoor Seating
ScreenShot_2025-12-22_221705_383
Unité S2
| Taille de l’unité | 1 570 pi² | Type de vente | Investissement ou propriétaire utilisateur |
| Prix | 2 929 891 $ CAD | Taux de capitalisation | 4,24% |
| Prix par pi² | 1 866,17 $ CAD | Revenu net d’exploitation | 124 180,64 $ CAD |
| Utilisation du condo | Commerce de détail |
| Taille de l’unité | 1 570 pi² |
| Prix | 2 929 891 $ CAD |
| Prix par pi² | 1 866,17 $ CAD |
| Utilisation du condo | Commerce de détail |
| Type de vente | Investissement ou propriétaire utilisateur |
| Taux de capitalisation | 4,24% |
| Revenu net d’exploitation | 124 180,64 $ CAD |
Description
Key Highlights
- Approx. 1,570 SF
- Long-term retail tenant with built-in rent escalations
- Located near Court Square, surrounded by new residential and office developments
Unique Value: Outdoor Patio Experience
A major differentiating feature of this property is the adjacent outdoor patio area, which is exclusively used by the bagel store and significantly enhances the customer experience.
The outdoor seating area increases:
- Daily foot traffic and dwell time
- Morning and weekend sales volume
- Street visibility and brand presence
While the patio is located within the building’s common area and is not deeded, it has historically functioned as a dedicated extension of the retail operation, adding meaningful operational and lifestyle value to the business.
Lease & Income Summary
- Lease Term: Through January 31, 2029
- Structured Annual Rent Increases
- Monthly CAM: approx. $790.79
Monthly Real Estate Tax (421-a): approx. $216.66
Notes sur la vente
25 years ICAP TAX ABATEMENT BUILDING
Long-term retail tenant with built-in rent escalations
Located near Court Square, surrounded by new residential and office developments
s1
s2
s3
s4
s5
??_20251222220741_27_17
Unité renseignements sur le mélange
| Description | Nombre d’unités | Loyer moyen/mois | pi² |
|---|---|---|---|
| Studios | 32 | - | - |
Renseignements importants sur le locataire
| LOCATAIRE | pi² Occupé | DATE DE FIN DE BAIL |
|---|---|---|
| Long Island City Cafe |
-
|
septembre 2022
|
Présenté par
41-04 27th St - Queens Boro Tower
Hmm, il semble y avoir eu une erreur lors de l’envoi de votre message. Veuillez réessayer.
Merci! Votre message a été envoyé.


