Se Connecter/S’inscrire
Votre courriel a été envoyé.
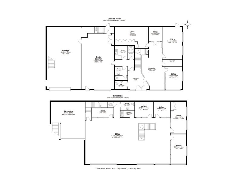
Bailey House 41-43 Royal Scot Rd 5 361 pi² 100% Loué Bureau Immeuble Derby DE24 8AJ 1 467 457 $ CAD (273,73 $ CAD/pi²)



Certaines informations ont été traduites automatiquement.
RÉSUMÉ DE L'ANNONCE
Hybrid office and warehouse unit for sale.
Located on Pride Park, Derby's premier business park location on the eastern edge of the city centre and enjoying easy access to A38, A52 & A50 linking with M1 J28, M1 J25 & M6 J15 respectively.
This modern hybrid building provides two storey office accommodation together with trade counter and store/warehouse facility.
Parking for approximately 16 cars plus loading apron.
Can be taken with vacant possession if needed.
Located on Pride Park, Derby's premier business park location on the eastern edge of the city centre and enjoying easy access to A38, A52 & A50 linking with M1 J28, M1 J25 & M6 J15 respectively.
This modern hybrid building provides two storey office accommodation together with trade counter and store/warehouse facility.
Parking for approximately 16 cars plus loading apron.
Can be taken with vacant possession if needed.
FAITS SUR LA PROPRIÉTÉ
Type de vente
Investissement ou propriétaire utilisateur
Type de propriété
Bureau
Ancienneté
Pleine propriété
Taille du bâtiment
5 361 pi²
Classe d’immeuble
B
Année de construction
2000
Prix
1 467 457 $ CAD
Prix par pi²
273,73 $ CAD
Pourcentage loué
100%
Location
Multiples
Hauteur du bâtiment
2 étages
Superficie de plancher typique
4 000 pi²
Coefficient d’occupation des sols de l’immeuble
0,77
Taille du lot
0,16 AC
Stationnement
6 places (1,34 places par 1 000 pi² loué)
COMMODITÉS
- Accès 24 heures
1 1
1 de 21
VIDÉOS
VISITE EXTÉRIEURE 3D MATTERPORT
VISITE 3D MATTERPORT
PHOTOS
VUE DEPUIS LA RUE
RUE
CARTE
1 de 1
Présenté par
Bailey House | 41-43 Royal Scot Rd
Vous êtes déjà membre? Connectez-vous
Hmm, il semble y avoir eu une erreur lors de l’envoi de votre message. Veuillez réessayer.
Merci! Votre message a été envoyé.
