Votre courriel a été envoyé.
413 N 2nd St - Warehouse Lofts Unités de condo • 621-2 008 pi² • À vendre 137 822 $-445 661 $ CAD par unité • Milwaukee, WI 53203



Certaines informations ont été traduites automatiquement.
2 Unités disponibles
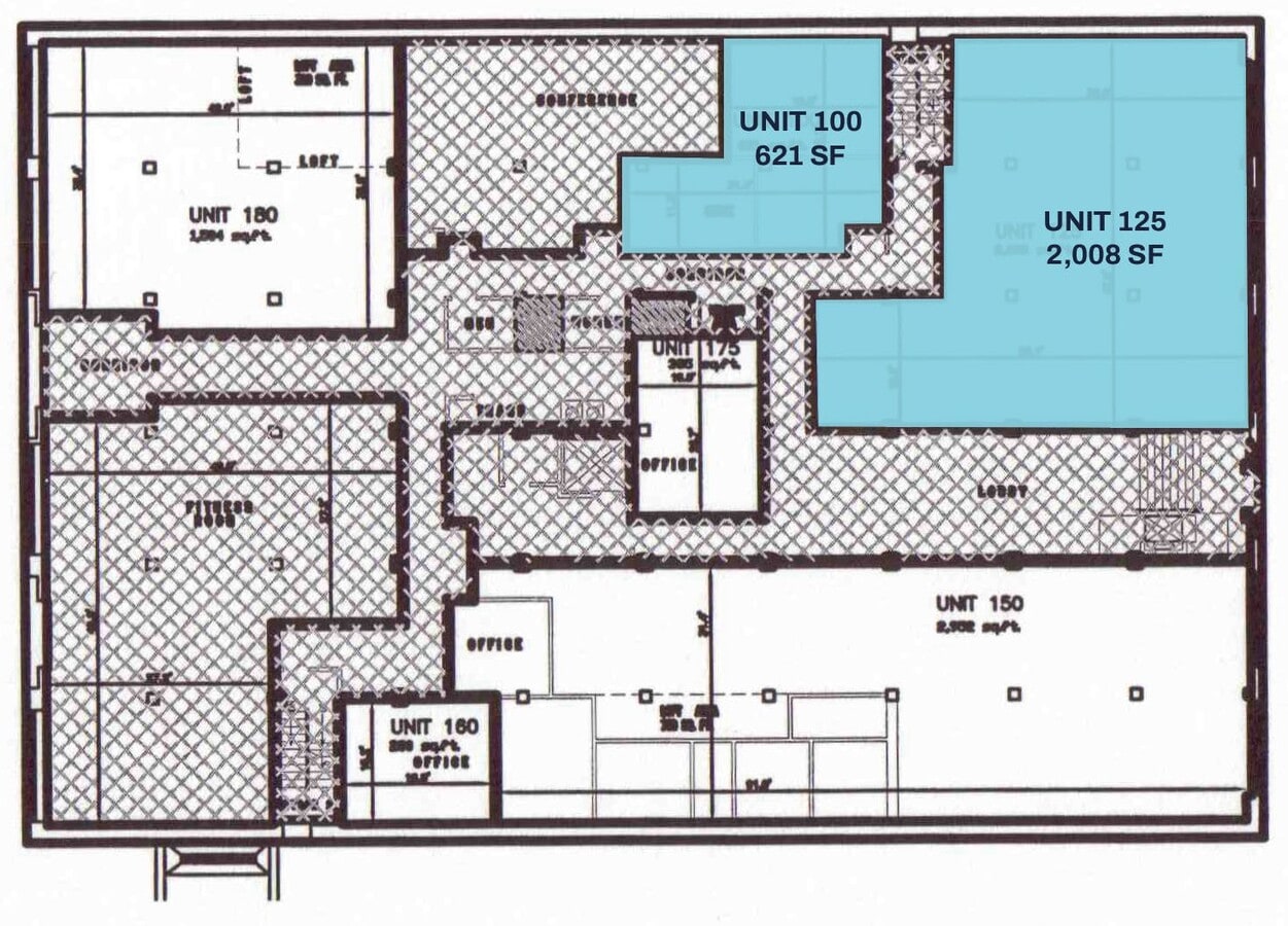
Unité 100
| Taille de l’unité | 621 pi² | Type de vente | Propriétaire utilisateur |
| Prix | 137 822 $ CAD | Nbre d’espaces de stationnement | 1 |
| Prix par pi² | 221,94 $ CAD | ID/Numéro de lot | 397-0441-000 |
| Utilisation du condo | Bureau |
| Taille de l’unité | 621 pi² |
| Prix | 137 822 $ CAD |
| Prix par pi² | 221,94 $ CAD |
| Utilisation du condo | Bureau |
| Type de vente | Propriétaire utilisateur |
| Nbre d’espaces de stationnement | 1 |
| ID/Numéro de lot | 397-0441-000 |
Description
Accessible entry on 1st floor via main building residential condo lobby
Notes sur la vente
Ready to own your space and/or invest in something that makes economic sense? Here is your opportunity to own a well-located cream city brick & timber loft-style first-floor (!) commercial condo unit a block from all the amenities of the Historic Third Ward (including the Milwaukee Public Market) and steps from the Pritzlaff building and event space, Apertivo restaurant and Explorium Brewpub, the downtown Intermodal (Amtrak) Station, the currently under construction Foxtown Brewing taproom/distillery/restaurant, and immediately adjacent Downtown Dog Park (the “Dog District”). If you’ve been looking for a smart way to invest without doing tons of renovation or spending millions, this is
Floor Plan
Suite 100
Suite 100
Suite 100
Suite 100
Suite 100
Unité 115/125
| Taille de l’unité | 2 008 pi² | Type de vente | Propriétaire utilisateur |
| Prix | 445 661 $ CAD | Nbre d’espaces de stationnement | 2 |
| Prix par pi² | 221,94 $ CAD | ID/Numéro de lot | 397-0442-100, 397-0442-200 |
| Utilisation du condo | Bureau/Commerce de détail |
| Taille de l’unité | 2 008 pi² |
| Prix | 445 661 $ CAD |
| Prix par pi² | 221,94 $ CAD |
| Utilisation du condo | Bureau/Commerce de détail |
| Type de vente | Propriétaire utilisateur |
| Nbre d’espaces de stationnement | 2 |
| ID/Numéro de lot | 397-0442-100, 397-0442-200 |
Description
Accessible entry on 1st floor via main building residential condo lobby
Notes sur la vente
Ready to own your space and/or invest in something that makes economic sense? Here is your opportunity to own a well-located cream city brick & timber loft-style first-floor (!) commercial condo unit a block from all the amenities of the Historic Third Ward (including the Milwaukee Public Market) and steps from the Pritzlaff building and event space, Apertivo restaurant and Explorium Brewpub, the downtown Intermodal (Amtrak) Station, the currently under construction Foxtown Brewing taproom/distillery/restaurant, and immediately adjacent Downtown Dog Park (the “Dog District”). If you’ve been looking for a smart way to invest without doing tons of renovation or spending millions, this is it.
Suite 115/125
Suite 115/125
Suite 115/125
Suite 115/125
Suite 115/125
Faits sur la propriété
| Taille totale du bâtiment | 89 563 pi² | Superficie de plancher typique | 6 700 pi² |
| Type de propriété | Immeuble residentiel | Année de construction | 1894 |
| Sous-type de propriété | Appartement | Taille du lot | 0,68 AC |
| Classe d’immeuble | B | Ratio de stationnement | 0,17/1 000 pi² |
| Planchers | 6 | ||
| Zonage | C9G | ||
| Taille totale du bâtiment | 89 563 pi² |
| Type de propriété | Immeuble residentiel |
| Sous-type de propriété | Appartement |
| Classe d’immeuble | B |
| Planchers | 6 |
| Superficie de plancher typique | 6 700 pi² |
| Année de construction | 1894 |
| Taille du lot | 0,68 AC |
| Ratio de stationnement | 0,17/1 000 pi² |
| Zonage | C9G |
Commodités
Commodités du site
- Clubhouse
- Centre de conditionnement physique
- Système de sécurité
- CVCA contrôlé par le locataire
- Terrain de basketball
- Chutes à déchets
- Pistes cyclables/Piétonnières
- Transport en commun
- Détecteur de fumée
Unité renseignements sur le mélange
| Description | Nombre d’unités | Loyer moyen/mois | pi² |
|---|---|---|---|
| Studios | 55 | - | - |
Présenté par
413 N 2nd St - Warehouse Lofts
Hmm, il semble y avoir eu une erreur lors de l’envoi de votre message. Veuillez réessayer.
Merci! Votre message a été envoyé.



