Votre courriel a été envoyé.
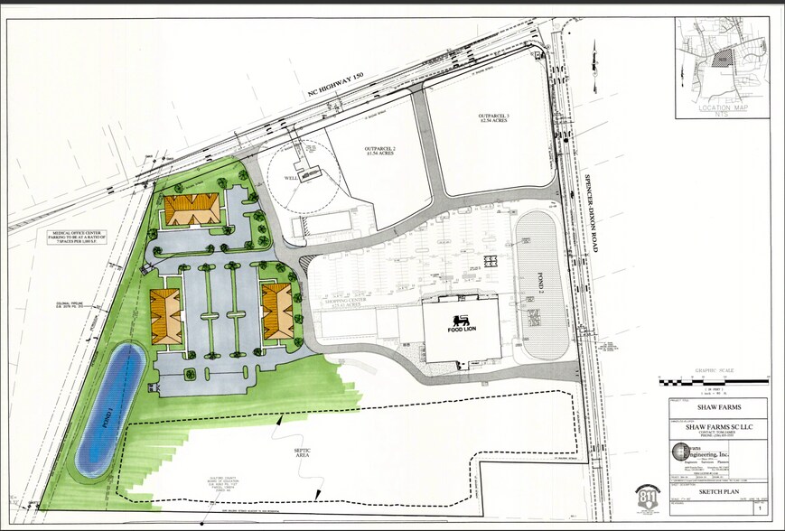
Food Lion Anchored Retail Hwy 150 Greensboro 413 NC Highway 150 W 1 600–10 640 pi² d'espace disponible • Commerce de détail • Greensboro, NC 27455



Certaines informations ont été traduites automatiquement.
Faits saillants
- 1,600–10,640 SF divisible retail space in new Shaw Farms center
- Strong projected traffic counts (~28,500 VPD) on NC Highway 150
- Area includes 17,500 existing homes; 2,000 new homes planned nearby
- Anchored by Food Lion in high-growth Northern Guilford County trade area
- Borders Browns Summit & Summerfield residential communities
- Anticipated Fall 2026 delivery with flexible lease terms on NNN basis
Disponibilité de l’espace (1)
Afficher les taux de location en
- Espace
- Taille
- Terme
- Taux de location
- Type de loyer
| Espace | Taille | Terme | Taux de location | Type de loyer | ||
| 1er étage | 1 600 à 10 640 pi² | Négociable | Sur demande Sur demande Sur demande Sur demande | Loyer hypernet |
1er étage
Contact broker directly for rates and terms!
- Le taux de location ne comprend pas les services publics, les services de bâtiment ou les dépenses immobilières.
Types de loyers
Le type et le montant du loyer que le locataire (preneur) est tenu de payer au propriétaire (bailleur) sur la durée du bail sont négociés avant la signature du bail par les deux parties. Le type de loyer varie selon les services fournis. Par exemple, le prix d’un loyer hypernet est habituellement inférieur à celui d’un bail à service complet puisque le locataire est tenu d’assumer des dépenses additionnelles par rapport au loyer de base. Contactez le courtier inscripteur pour tout connaître sur les frais connexes et additionnels associés à chaque type de loyer.
1. Service complet: Un taux de location qui comprend des services standards liés à l’immeuble fournis par le propriétaire dans le cadre d’une location annuelle de base.
2. Loyer supernet: Le locataire paie seulement deux des frais de l’immeuble. Le propriétaire et le locataire déterminent ces frais spécifiques avant la signature du bail.
3. Loyer hypernet: Un bail en vertu duquel le locataire est responsable de tous les frais liés à sa part proportionnelle d’occupation de l’immeuble.
4. Brut modifié: Le loyer brut modifié désigne un type général de taux de location dans lequel le locataire est habituellement responsable de sa part proportionnelle d’un ou de plusieurs frais. C’est le propriétaire qui paie les frais restants. Considérez les structures tarifaires courantes suivantes applicables aux loyers bruts modifiés: 4. Plus les services: Un type de bail brut modifié suivant lequel le locataire est responsable de sa part proportionnelle des coûts des services publics, en plus du loyer. 4. Plus le nettoyage: Un type de bail brut modifié suivant lequel le locataire est responsable de sa part proportionnelle des coûts de nettoyage, en plus du loyer. 4. Plus l'électricité: Un type de bail brut modifié suivant lequel le locataire est responsable de sa part proportionnelle des coûts d’électricité, en plus du loyer. 4. Plus l’électricité et le nettoyage: Un type de bail brut modifié dans lequel le locataire est responsable de sa part proportionnelle des coûts d’électricité et de nettoyage, en plus du loyer. 4. Plus les services publics et le nettoyage: Un type de bail brut modifié dans lequel le locataire est responsable de sa part proportionnelle des coûts des services publics et de nettoyage, en plus du loyer. 4. Bail industriel brut: Un type de bail brut modifié dans lequel le locataire paie un ou plusieurs des frais, en plus du loyer. Le propriétaire et le locataire déterminent ces frais spécifiques avant la signature du bail.
5. L’électricité est à la charge du locataire: Le propriétaire paie pour tous les services et le locataire est responsable de sa propre utilisation de l’éclairage et des prises électriques dans l’espace qu’il occupe.
6. Négociable ou sur demande: Cette option est utilisée lorsque le contact de location ne précise pas le type de loyer ou de service.
7. À déterminer: À déterminer ; utilisé pour les immeubles dont le type de services ou de loyer n’est pas connu, souvent quand l’immeuble n’est pas encore construit.
Sélectionner des locataires à Food Lion Anchored Retail Hwy 150 Greensboro
- Locataire
- Description
- Emplacements US
- Portée
- Food Lion
- Services
- -
- -
| Locataire | Description | Emplacements US | Portée |
| Food Lion | Services | - | - |
Faits sur la propriété
| Superficie totale disponible | 10 640 pi² | Superficie commerciale brute | 59 217 pi² |
| Min. divisible | 1 600 pi² | Année de construction | 2027 |
| Type de propriété | Commerce de détail | État de la construction | En construction |
| Sous-type de propriété | Bien à usage mixte |
| Superficie totale disponible | 10 640 pi² |
| Min. divisible | 1 600 pi² |
| Type de propriété | Commerce de détail |
| Sous-type de propriété | Bien à usage mixte |
| Superficie commerciale brute | 59 217 pi² |
| Année de construction | 2027 |
| État de la construction | En construction |
À propos de la propriété
Shaw Farms est un centre commercial d'environ 120 000 pieds carrés situé à la frontière de la communauté de Browns Summit et de la banlieue de Summerfield. Ce centre offre une opportunité unique aux détaillants, aux utilisateurs de bureaux et aux prestataires de services pour répondre à la demande croissante de ce marché résidentiel en pleine expansion.
Présenté par
Food Lion Anchored Retail Hwy 150 Greensboro | 413 NC Highway 150 W
Hmm, il semble y avoir eu une erreur lors de l’envoi de votre message. Veuillez réessayer.
Merci! Votre message a été envoyé.



