Votre courriel a été envoyé.
Certaines informations ont été traduites automatiquement.
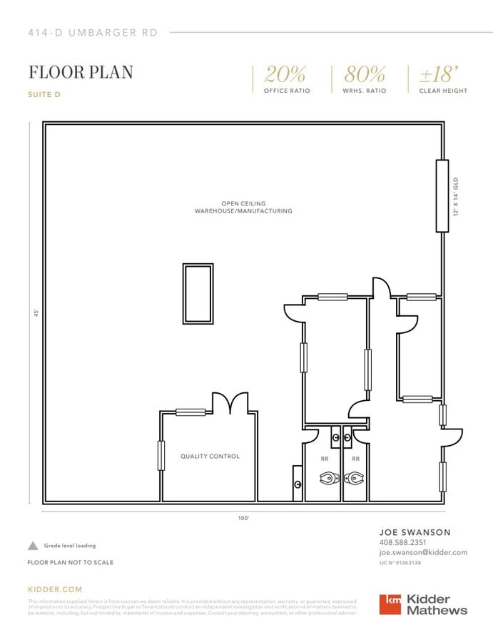
Faits saillants de l'investissement
- Fully sprinklered building with a functional 20% office and 80% warehouse/manufacturing layout.
- Features an 18-foot clear height and a 12’ x 14’ grade-level loading door for efficient access.
- Prime San Jose location with excellent access to Highways 101, 280, and 87, and proximity to major retail centers.
- Equipped with 400 amps of power and distributed airlines to support industrial operations.
- Includes a quality control room, two restrooms, and convenient parking at a 2/1,000 ratio.
Faits sur la propriété
| Taille totale du bâtiment | 25 000 pi² | Superficie de plancher typique | 25 000 pi² |
| Type de propriété | Industriel (Condo) | Année de construction | 1984 |
| Sous-type de propriété | Entrepôt | Taille du lot | 1,65 AC |
| Classe d’immeuble | B | Ratio de stationnement | 0,8/1 000 pi² |
| Planchers | 1 | ||
| Zonage | M1H, San Jose | ||
| Taille totale du bâtiment | 25 000 pi² |
| Type de propriété | Industriel (Condo) |
| Sous-type de propriété | Entrepôt |
| Classe d’immeuble | B |
| Planchers | 1 |
| Superficie de plancher typique | 25 000 pi² |
| Année de construction | 1984 |
| Taille du lot | 1,65 AC |
| Ratio de stationnement | 0,8/1 000 pi² |
| Zonage | M1H, San Jose |
Commodités
- Terrain clôturé
- Affichage
Services publics
- Éclairage - Fluorescent
- Gaz - Naturel
- Eau - Ville
- Égout - Ville
1 Unité disponible
Unité D
| Taille de l’unité | 4 500 pi² | Type de vente | Investissement ou propriétaire utilisateur |
| Utilisation du condo | Industriel |
| Taille de l’unité | 4 500 pi² |
| Utilisation du condo | Industriel |
| Type de vente | Investissement ou propriétaire utilisateur |
Notes sur la vente
This industrial property at 414-D Umbarger Road offers a strategic opportunity for owner-users or investors seeking a well-located asset in the heart of San Jose. The building features a functional layout with approximately 20% office and 80% warehouse/manufacturing space, making it ideal for a range of industrial operations. The property is fully sprinklered and includes a quality control room, two restrooms, and distributed power and airlines to support manufacturing or assembly processes.
The facility is equipped with 400 amps of power (two 200-amp panels at 120/208V, 3-phase power, buyer to verify), an 18-foot clear height, and a 12’ x 14’ grade-level loading door, ensuring efficient operations and flexibility for various industrial uses. The parking ratio of approximately 2 spaces per 1,000 square feet provides convenient access for employees and visitors.
Located near major transportation corridors, including Highways 101, 280, and 87, the property offers excellent connectivity to the broader Bay Area. The site is surrounded by a strong mix of retail amenities, including Target, Home Depot, Best Buy, and numerous dining options, providing convenience for employees and customers alike. This is a rare opportunity to secure a well-positioned industrial property in a high-demand market with strong economic fundamentals.
Floor Plan
Présenté par
414 Umbarger Rd
Hmm, il semble y avoir eu une erreur lors de l’envoi de votre message. Veuillez réessayer.
Merci! Votre message a été envoyé.




