Votre courriel a été envoyé.
420 NW 5th St
Evansville, IN 47708
Corporate Mills · Bureau Propriété À louer
·
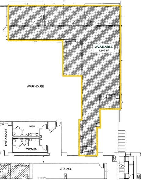
3 693 pi²


Certaines informations ont été traduites automatiquement.
Faits saillants
- Stationnement en surface gratuit
- Aires communes, cuisinettes et toilettes rénovées
- Nouveaux systèmes de CVC, de sécurité et de surveillance des incendies
- Accès fob sécurisé au bâtiment et aux planchers individuels
- Gestion et entretien sur place
Aperçu de la propriété
Espace loft historique en brique et poutres de bois disponible dans le NoCo « Makers District » du centre-ville d'Evansville, nommé en raison de son emplacement au nord de la rue Court. Profitez de cet immeuble de bureaux urbain unique en son genre, qui offre aux locataires un stationnement en surface gratuit, l'accès à un espace commun de réunion/banquet/divertissement et un entreposage sur place avec quai de chargement. Accès pratique à la First Avenue et à l'autoroute Lloyd, et à distance de marche de nombreux sites du centre-ville, tels que le YMCA nouvellement achevé, le Civic Center, le Ford Center, le Victory Theatre et de nombreux restaurants et boutiques. -Accès fob sécurisé au bâtiment et aux planchers individuels -Plafonds de 12 pi et grandes fenêtres (10,5 pi x 7,5 pi) -Aires communes, cuisinettes et toilettes rénovées -Câblage du réseau informatique en place -Gestion et entretien sur place -Nouveaux systèmes de CVC, de sécurité et de surveillance des incendies -Élévateur de passagers et accès au silo de marchandises -Le locataire paie l'essence et l'électricité, le téléphone, l'Internet et les services de conciergerie Stationnement en surface gratuit -Les locataires comprennent : Corporate Design, Commonwealth Engineers, Apex Group, Indiana Attorney General et Summit Real Estate Services
