Se Connecter/S’inscrire
Votre courriel a été envoyé.
Certaines informations ont été traduites automatiquement.
Tous les espaces disponibles(1)
Afficher les taux de location en
- Espace
- Taille
- Terme
- Taux de location
- Utilisation de l’espace
- Aménagement
- Disponible
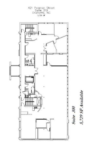
- 3e étage
- 5 853 pi²
- Négociable
- Sur demande Sur demande Sur demande Sur demande
- Bureau
- -
- 2026-10-01
| Espace | Taille | Terme | Taux de location | Utilisation de l’espace | Aménagement | Disponible |
| 3e étage | 5 853 pi² | Négociable | Sur demande Sur demande Sur demande Sur demande | Bureau | - | 2026-10-01 |
3e étage
| Taille |
| 5 853 pi² |
| Terme |
| Négociable |
| Taux de location |
| Sur demande Sur demande Sur demande Sur demande |
| Utilisation de l’espace |
| Bureau |
| Aménagement |
| - |
| Disponible |
| 2026-10-01 |
Caractéristiques et commodités
- Affichage
Faits sur la propriété
Type de bâtiment
Bureau
Année de construction/rénovation
1920/2000
Hauteur du bâtiment
3 étages
Taille du bâtiment
18 358 pi²
Classe d’immeuble
B
Superficie de plancher typique
5 445 pi²
Hauteur du plafond non finie
12’
Stationnement
49 places de stationnement surface
Stationnement Couvert
Sélectionner des locataires
- Étage
- Nom du locataire
- Secteur
- 3ᵉ
- Alter Imaging
- Services professionnels, scientifiques et techniques
- 2ᵉ
- Bamboo Equity Partners
- Finance et assurances
- 2ᵉ
- ESD
- Services professionnels, scientifiques et techniques
- 2ᵉ
- Project Resources Group
- Services professionnels, scientifiques et techniques
- 1ᵉʳ
- Wave Engineering
- Services professionnels, scientifiques et techniques
- Inconnu
- William Henry Atkins
- -
Moyennement praticable à pied
70/100
Exceptionnellement facile d’accès en voiture
90/100
Transports en commun relativement accessibles
50/100
Moyennement praticable en vélo
70/100
1 de 8
Vidéos
Visite extérieure 3D Matterport
Visite 3D Matterport
Photos
Vue depuis la rue
Rue
Carte
Présenté par
421 Penman St
Vous êtes déjà membre? Connectez-vous
Hmm, il semble y avoir eu une erreur lors de l’envoi de votre message. Veuillez réessayer.
Merci! Votre message a été envoyé.




