Se Connecter/S’inscrire
Votre courriel a été envoyé.
4239 N 40th Ave 12 992 pi² Industriel Immeuble Phoenix, AZ 85019 3 767 588 $ CAD (289,99 $ CAD/pi²)



Certaines informations ont été traduites automatiquement.
FAITS SAILLANTS DE L'INVESTISSEMENT
- Newly Insulated Warehouse
- Fenced Parking
- 3600 Sq Ft Cover Loading Dock
- Walk-In Cooler and Freezer
- Two Bay Loading Dock
RÉSUMÉ DE L'ANNONCE
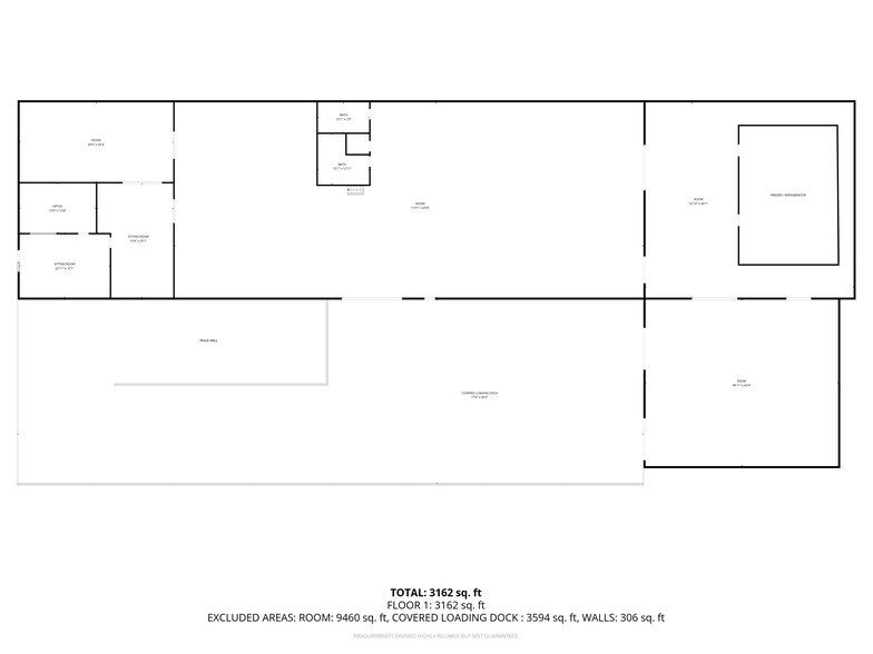
4239 N 40th Avenue presents a rare opportunity to acquire a fully insulated, freestanding industrial facility in Phoenix’s central logistics corridor. Situated on a 0.59-acre corner lot with dual access from Atlanta Avenue and 35th Street, this ±12,992 SF warehouse includes a ±3,600 SF covered loading bay and ±5,157 SF of built-out office, showroom, and retail space. The property is ideally suited for owner-users seeking a clean, well-maintained facility with robust infrastructure and strategic access.
The building features 14-foot clear height, five grade-level roll-up doors (including two 12' x 12' and one 12' x 16' sliding door), and 1,800 amps of 277/480V three-phase power. A commercial kitchen is equipped with a 20' x 25' walk-in freezer and cooler, supporting food service, distribution, or specialty manufacturing operations. Additional amenities include two restrooms (one with shower and laundry), a security system with cameras, and perimeter fencing with eight dedicated parking spaces.
Located minutes from I-17, US-60, and I-10, the site offers excellent connectivity to the broader Phoenix metro and regional transportation networks. The surrounding industrial districts, including Payne Rae and Airhaven, reinforce the property’s appeal for logistics, warehousing, and light manufacturing. With a clean Phase 1 Environmental report and recent insulation upgrades, this asset is move-in ready and positioned for long-term operational efficiency.
The building features 14-foot clear height, five grade-level roll-up doors (including two 12' x 12' and one 12' x 16' sliding door), and 1,800 amps of 277/480V three-phase power. A commercial kitchen is equipped with a 20' x 25' walk-in freezer and cooler, supporting food service, distribution, or specialty manufacturing operations. Additional amenities include two restrooms (one with shower and laundry), a security system with cameras, and perimeter fencing with eight dedicated parking spaces.
Located minutes from I-17, US-60, and I-10, the site offers excellent connectivity to the broader Phoenix metro and regional transportation networks. The surrounding industrial districts, including Payne Rae and Airhaven, reinforce the property’s appeal for logistics, warehousing, and light manufacturing. With a clean Phase 1 Environmental report and recent insulation upgrades, this asset is move-in ready and positioned for long-term operational efficiency.
FAITS SUR LA PROPRIÉTÉ
COMMODITÉS
- Accès 24 heures
- Glacière
- Terrain clôturé
- Accessible aux fauteuils roulants
- Climatisation
SERVICES PUBLICS
- Éclairage - Fluorescent
- Gaz - Naturel
- Eau - Ville
- Égout - Ville
- Chauffage - Électricité
1 1
Impôts fonciers
| Numéro de lot | 107-12-019H | Évaluation des bâtiments | 0 $ CAD |
| Évaluation du terrain | 0 $ CAD | Évaluation totale | 95 142 $ CAD |
Impôts fonciers
Numéro de lot
107-12-019H
Évaluation du terrain
0 $ CAD
Évaluation des bâtiments
0 $ CAD
Évaluation totale
95 142 $ CAD
1 de 46
VIDÉOS
VISITE EXTÉRIEURE 3D MATTERPORT
VISITE 3D MATTERPORT
PHOTOS
VUE DEPUIS LA RUE
RUE
CARTE
1 de 1
Présenté par
Down-Home Realty
4239 N 40th Ave
Vous êtes déjà membre? Connectez-vous
Hmm, il semble y avoir eu une erreur lors de l’envoi de votre message. Veuillez réessayer.
Merci! Votre message a été envoyé.
