Votre courriel a été envoyé.
Certaines informations ont été traduites automatiquement.
Faits saillants
- Situé dans le quartier historique de Firstside | Un pâté de maisons de la rue Grant
- Magnifique vue sur la rivière Mongahela
- Des systèmes de CVC distincts à chaque étage offrent un contrôle complet à chaque locataire
- Tarifs de location et conditions de location agressifs
- Construction en brique et en bois exposé magnifiquement restauré ; grandes fenêtres et abondante lumière naturelle
Tous les espaces disponibles(3)
Afficher les taux de location en
- Espace
- Taille
- Terme
- Taux de location
- Utilisation de l’espace
- Aménagement
- Disponible
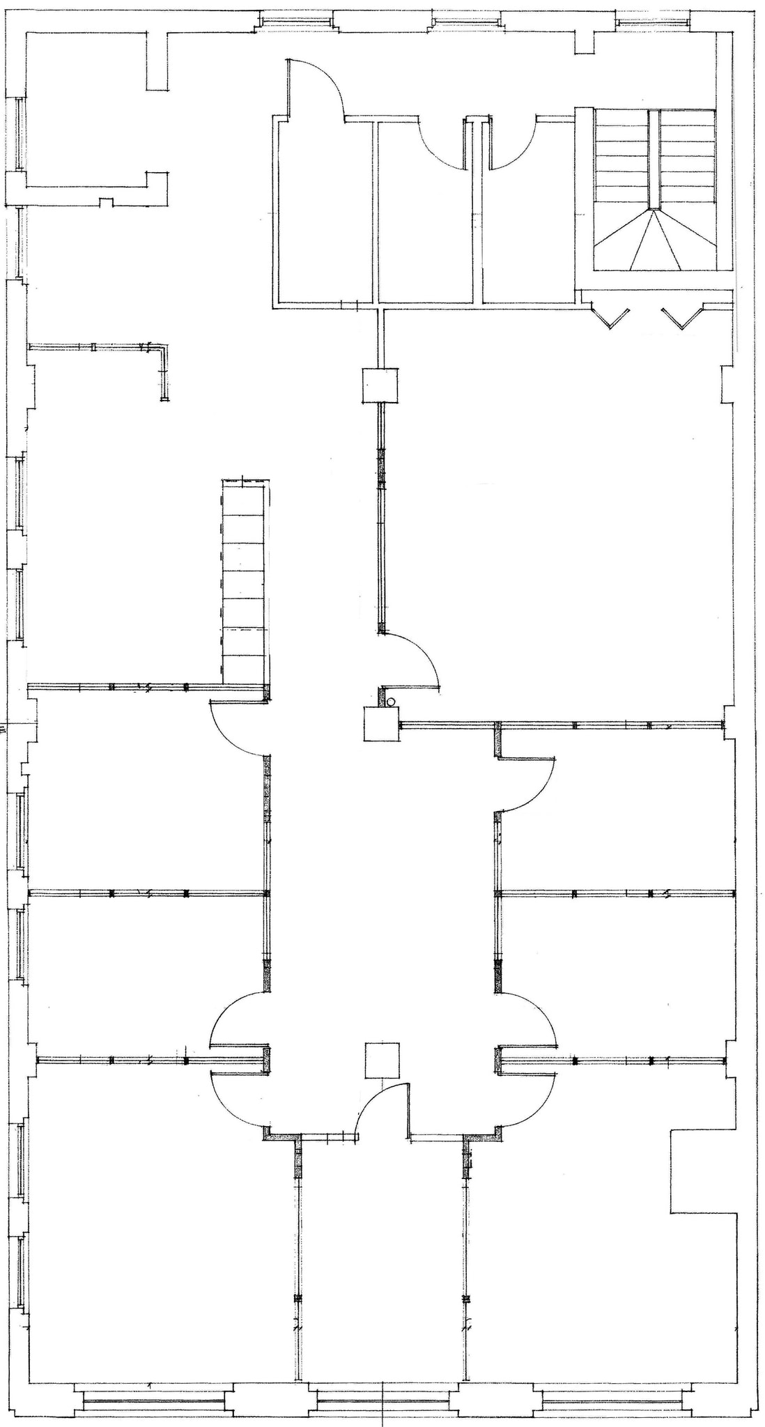
This 2nd-floor opportunity in the Hartley Rose Building provides users with a reception/lobby area, private men's and women's restrooms, four partitioned offices (one being a sizable corner space), an amply lit conference room, a small break area with kitchenette, and multiple storage spaces. Charmingly historic buildout featuring exposed brick, beam, and ductwork, as well as oversized windows and red accent colors.
- Taux de location inscrit plus part proportionnelle des services publics
- Disposition du plan d’étage ouverte en général
- 3 bureaux privés
- Salle de bains privée
- Espace en coin
- Plafond exposé
- Magnifique vue sur la rivière Monongahela
- Private restrooms
- Entièrement construit comme Bureau standard
- Convient pour 8 à 24 personnes
- 1 salle de conférence
- Complètement tapissé
- Hauts plafonds
- Lumière naturelle
- Three partitioned office spaces
- Direct elevator access
This 3rd-story space in the Hartley Rose Building was formerly occupied by a dental office, and provides six partitioned spaces (for dental chairs), an open lab area, a small meeting room, one private office, a waiting area, and reception desk.
- Le taux inscrit peut ne pas comprendre certains services publics, les services de bâtiment et les dépenses immobilières.
- Disposition du plan d’étage ouverte en général
- Bureaux partitionnés
- 6 postes de travail
- Climatisation centrale
- Entièrement construit comme Espace de cabinet dentaire
- Convient pour 8 à 24 personnes
- 1 salle de conférence
- Aire de réception
- Some furnishings may be available
Formerly occupied by a law firm, this sixth-story office space provides tenants with a reception area, conference room, secretarial office, multiple partitioned private offices, and storage area. Private men's and women's restrooms located in entry hall. Direct elevator access to building lobby.
- Entièrement construit comme Bureau juridique
- 6 bureaux privés
- Aire de réception
- Complètement tapissé
- Hauts plafonds
- 2nd generation law firm space
- Conference room
- Reception and secretarial areas
- Convient pour 1 à 15 personnes
- 1 salle de conférence
- Salle de bains privée
- Espace en coin
- Lumière naturelle
- Six private offices
- Exposed brick and open ceiling design
| Espace | Taille | Terme | Taux de location | Utilisation de l’espace | Aménagement | Disponible |
| 2e étage, ste 200 | 3 000 pi² | Négociable | 27,60 $ CAD/pi²/an 2,30 $ CAD/pi²/mois 82 794 $ CAD/an 6 899 $ CAD/mois | Bureau | construction complète | Maintenant |
| 3e étage, ste 300 | 3 000 pi² | Négociable | 30,36 $ CAD/pi²/an 2,53 $ CAD/pi²/mois 91 073 $ CAD/an 7 589 $ CAD/mois | Bureau/Médical | construction complète | Maintenant |
| 6e étage, ste 600 | 3 000 pi² | Négociable | Sur demande Sur demande Sur demande Sur demande | Bureau | construction complète | Maintenant |
2e étage, ste 200
| Taille |
| 3 000 pi² |
| Terme |
| Négociable |
| Taux de location |
| 27,60 $ CAD/pi²/an 2,30 $ CAD/pi²/mois 82 794 $ CAD/an 6 899 $ CAD/mois |
| Utilisation de l’espace |
| Bureau |
| Aménagement |
| construction complète |
| Disponible |
| Maintenant |
3e étage, ste 300
| Taille |
| 3 000 pi² |
| Terme |
| Négociable |
| Taux de location |
| 30,36 $ CAD/pi²/an 2,53 $ CAD/pi²/mois 91 073 $ CAD/an 7 589 $ CAD/mois |
| Utilisation de l’espace |
| Bureau/Médical |
| Aménagement |
| construction complète |
| Disponible |
| Maintenant |
6e étage, ste 600
| Taille |
| 3 000 pi² |
| Terme |
| Négociable |
| Taux de location |
| Sur demande Sur demande Sur demande Sur demande |
| Utilisation de l’espace |
| Bureau |
| Aménagement |
| construction complète |
| Disponible |
| Maintenant |
2e étage, ste 200
| Taille | 3 000 pi² |
| Terme | Négociable |
| Taux de location | 27,60 $ CAD/pi²/an |
| Utilisation de l’espace | Bureau |
| Aménagement | construction complète |
| Disponible | Maintenant |
This 2nd-floor opportunity in the Hartley Rose Building provides users with a reception/lobby area, private men's and women's restrooms, four partitioned offices (one being a sizable corner space), an amply lit conference room, a small break area with kitchenette, and multiple storage spaces. Charmingly historic buildout featuring exposed brick, beam, and ductwork, as well as oversized windows and red accent colors.
- Taux de location inscrit plus part proportionnelle des services publics
- Entièrement construit comme Bureau standard
- Disposition du plan d’étage ouverte en général
- Convient pour 8 à 24 personnes
- 3 bureaux privés
- 1 salle de conférence
- Salle de bains privée
- Complètement tapissé
- Espace en coin
- Hauts plafonds
- Plafond exposé
- Lumière naturelle
- Magnifique vue sur la rivière Monongahela
- Three partitioned office spaces
- Private restrooms
- Direct elevator access
3e étage, ste 300
| Taille | 3 000 pi² |
| Terme | Négociable |
| Taux de location | 30,36 $ CAD/pi²/an |
| Utilisation de l’espace | Bureau/Médical |
| Aménagement | construction complète |
| Disponible | Maintenant |
This 3rd-story space in the Hartley Rose Building was formerly occupied by a dental office, and provides six partitioned spaces (for dental chairs), an open lab area, a small meeting room, one private office, a waiting area, and reception desk.
- Le taux inscrit peut ne pas comprendre certains services publics, les services de bâtiment et les dépenses immobilières.
- Entièrement construit comme Espace de cabinet dentaire
- Disposition du plan d’étage ouverte en général
- Convient pour 8 à 24 personnes
- Bureaux partitionnés
- 1 salle de conférence
- 6 postes de travail
- Aire de réception
- Climatisation centrale
- Some furnishings may be available
6e étage, ste 600
| Taille | 3 000 pi² |
| Terme | Négociable |
| Taux de location | Sur demande |
| Utilisation de l’espace | Bureau |
| Aménagement | construction complète |
| Disponible | Maintenant |
Formerly occupied by a law firm, this sixth-story office space provides tenants with a reception area, conference room, secretarial office, multiple partitioned private offices, and storage area. Private men's and women's restrooms located in entry hall. Direct elevator access to building lobby.
- Entièrement construit comme Bureau juridique
- Convient pour 1 à 15 personnes
- 6 bureaux privés
- 1 salle de conférence
- Aire de réception
- Salle de bains privée
- Complètement tapissé
- Espace en coin
- Hauts plafonds
- Lumière naturelle
- 2nd generation law firm space
- Six private offices
- Conference room
- Exposed brick and open ceiling design
- Reception and secretarial areas
Aperçu de la propriété
Espace de bureau disponible à louer dans le Hartley Rose Building : un charmant bâtiment professionnel historique situé à la périphérie du quartier central des affaires (CBD) de Pittsburgh, dans le district de Firstside. Ce bâtiment abrite plusieurs locataires de longue date et bien établis dans les domaines de l'administration publique, des soins de santé et des services professionnels. Offrant un emplacement central avec une construction magnifiquement restaurée en briques et bois apparents, le Hartley Rose Building propose des espaces de 3 000 pieds carrés à distance de marche de nombreuses commodités du centre-ville, des arrêts de transport en commun et des options de stationnement. Le local vacant au 2e étage comprend quatre bureaux cloisonnés, une grande salle de conférence, plusieurs espaces de rangement, une petite salle de pause avec kitchenette, des toilettes privées pour hommes et femmes, ainsi qu’un accès direct par ascenseur. Le local vacant au 3e étage, anciennement occupé par un cabinet dentaire, est actuellement configuré avec six salles d'examen, un espace de laboratoire ouvert, une salle d'attente avec réception, des toilettes privées pour hommes et femmes, et un accès direct par ascenseur. Le Hartley Rose Building se trouve à quelques minutes à pied de plusieurs garages et terrains de stationnement, notamment le Allies Garage, le Forbes Garage, le First Avenue Garage, ainsi que le terrain Forbes and Grant Street Lot. Du stationnement payant dans la rue, le long de Cherry Way, est également disponible selon le principe du premier arrivé, premier servi. Situé juste à la fin de Grant Street, cette propriété offre aux occupants un emplacement plus calme au centre-ville tout en conservant un accès quasi immédiat à toutes les commodités de divertissement, de restauration et de shopping du CBD. En moins de 7 minutes à pied, vous pouvez accéder à Market Square, Target et Burlington, au Three Rivers Heritage Trail et au Firstside Park, ainsi qu'à de nombreux cafés et restaurants, tels que l'Appollo Café, Starbucks, Pizza Fiesta, Oxford Market, Gasoline Street Coffee, et bien d'autres. Le Hartley Rose Building pourrait-il convenir à vos besoins de bureau? Contactez Paul Horan pour plus de détails sur les loyers, les options de location ou pour planifier une visite dès aujourd'hui!
- Accès contrôlé
Faits sur la propriété
Présenté par
Hartley Rose Building | 425 1st Ave
Hmm, il semble y avoir eu une erreur lors de l’envoi de votre message. Veuillez réessayer.
Merci! Votre message a été envoyé.










