Votre courriel a été envoyé.
4280 Watermelon Rd Unité de condo • Bureau/Médical • 4 882 pi² • À vendre 2 867 886 $ CAD • Northport, AL 35473



Certaines informations ont été traduites automatiquement.
Résumé de l'annonce
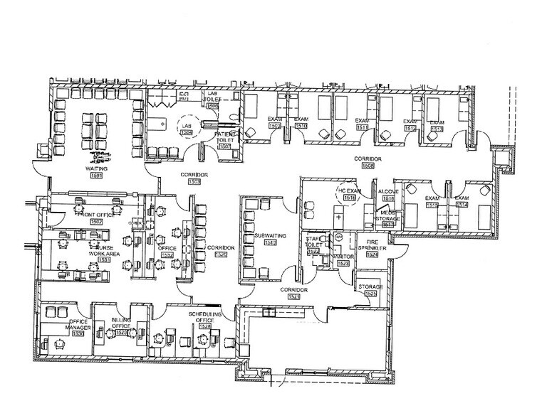
Located along the highly trafficked Watermelon Road corridor in Northport, this Class A medical office property offers a premier opportunity for healthcare providers seeking a modern, turnkey facility. Built in 2019, the ±4,882 square foot space is thoughtfully designed to support efficient patient flow and high-quality care delivery. The layout includes eight fully equipped exam rooms, a dedicated Fluoro Suite, and on-site lab space, allowing for comprehensive in-house services. Three luxury offices provide ample space for physicians or administrative staff, while the expansive waiting area creates a comfortable and welcoming environment for patients. Constructed with quality finishes and contemporary design, this facility is well-suited for a variety of medical specialties. Its prime location offers excellent visibility and accessibility, with convenient proximity to surrounding residential neighborhoods and continued growth in the Northport/Tuscaloosa market. The property is currently in use by a tenant with the current lease expiring January 2027. This is a rare opportunity to acquire a nearly new, purpose-built medical office in one of the area’s most desirable corridors.
1 Unité disponible
Unité 111
| Taille de l’unité | 4 882 pi² | Utilisation du condo | Bureau/Médical |
| Prix | 2 867 886 $ CAD | Type de vente | Investissement ou propriétaire utilisateur |
| Prix par pi² | 587,44 $ CAD |
| Taille de l’unité | 4 882 pi² |
| Prix | 2 867 886 $ CAD |
| Prix par pi² | 587,44 $ CAD |
| Utilisation du condo | Bureau/Médical |
| Type de vente | Investissement ou propriétaire utilisateur |
Description
Located along the highly trafficked Watermelon Road corridor in Northport, this Class A medical office property offers a premier opportunity for healthcare providers seeking a modern, turnkey facility.
Built in 2019, the ±4,882 square foot space is thoughtfully designed to support efficient patient flow and high-quality care delivery. The layout includes eight fully equipped exam rooms, a dedicated Fluoro Suite, and on-site lab space, allowing for comprehensive in-house services. Three luxury offices provide ample space for physicians or administrative staff, while the expansive waiting area creates a comfortable and welcoming environment for patients.
Constructed with quality finishes and contemporary design, this facility is well-suited for a variety of medical specialties. Its prime location offers excellent visibility and accessibility, with convenient proximity to surrounding residential neighborhoods and continued growth in the Northport/Tuscaloosa market. The property is currently in use by a tenant with the current lease expiring January 2027.
This is a rare opportunity to acquire a nearly new, purpose-built medical office in one of the area’s most desirable corridors.
1776699916726-5e93c16f-284d-4323-b34e-35f7ed2f2c6c_1
21bda7b9298c5ece43a8a5415bd6e11e0bf33032
35e38e2206a57dac056a22faab48e4e782d05a57
59c2a8e3ee9c4b79f16f9ead91aab53ce4d5bc2d
61e2fe0ff6f30a1b1a6cb18941f46198095df3e0
85ec767671a4ae29fa84e590be74b11e966e893c
684c23de6f39212a66d8a2b67779f4b8583fc6b9
0998a14dad789ed389a57fcb805dbcb4c32bd548
71388d4d9c09d5cacdf5c0c5d4cc74dab78fd465
79183843e316170f505665df124d7f5f6f77c87b
b4c36b4bfc166ab8a267346d94427b9a14116845
e8c0487699a2485f0bc81f1bd79daffc78a4d8d9
Faits sur la propriété
Présenté par
4280 Watermelon Rd
Hmm, il semble y avoir eu une erreur lors de l’envoi de votre message. Veuillez réessayer.
Merci! Votre message a été envoyé.

