Votre courriel a été envoyé.
Certaines informations ont été traduites automatiquement.
Faits saillants
- Professional office space in a prime Bucks County suburban location
- Turn-key delivery and custom design options
- Close to Oxford Valley Mall, Jefferson Bucks Hospital and Sesame Place
- Recently upgraded lobby and common areas
- Excellent access to Oxford Valley Rd, U.S. Hwy 1, I-295/I-95, & PA/NJ Turnpike
- Minutes from Holiday Inn Express, Courtyard by Marriott, and Sheraton
Tous les espaces disponibles(2)
Afficher les taux de location en
- Espace
- Taille
- Terme
- Taux de location
- Utilisation de l’espace
- Aménagement
- Disponible
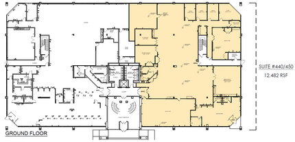
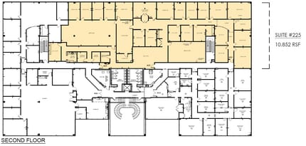
SVN is pleased to present a high-quality office building in a prime location, offering a functional and versatile layout ideal for a wide range of professional uses. The property is anchored by the Social Security Administration and has recently undergone renovations. It features turn-key suites with 12,482 RSF on the first floor and 10,852 RSF on the second floor, subdividable. Tenants enjoy modern conveniences including keyless entry, 24-hour access, elevator service, full sprinkler coverage, and ADA compliance. Strategically located in an amenity-rich area, the building is surrounded by numerous restaurants and hotels, with excellent access to major commuter routes and public transportation.
- Le taux inscrit peut ne pas comprendre certains services publics, les services de bâtiment et les dépenses immobilières.
- Convient pour 32 à 100 personnes
- Disposition intensive du bureau
SVN is pleased to present a high-quality office building in a prime location, offering a functional and versatile layout ideal for a wide range of professional uses. The property is anchored by the Social Security Administration and has recently undergone renovations. It features turn-key suites with 12,482 RSF on the first floor and 10,852 RSF on the second floor, subdividable. Tenants enjoy modern conveniences including keyless entry, 24-hour access, elevator service, full sprinkler coverage, and ADA compliance. Strategically located in an amenity-rich area, the building is surrounded by numerous restaurants and hotels, with excellent access to major commuter routes and public transportation.
- Le taux inscrit peut ne pas comprendre certains services publics, les services de bâtiment et les dépenses immobilières.
- Convient pour 28 à 87 personnes
- Disposition intensive du bureau
| Espace | Taille | Terme | Taux de location | Utilisation de l’espace | Aménagement | Disponible |
| 1er étage | 12 482 pi² | Négociable | 26,72 $ CAD/pi²/an 2,23 $ CAD/pi²/mois 333 457 $ CAD/an 27 788 $ CAD/mois | Bureau | - | Maintenant |
| 2e étage, ste 225 | 10 852 pi² | Négociable | 26,72 $ CAD/pi²/an 2,23 $ CAD/pi²/mois 289 911 $ CAD/an 24 159 $ CAD/mois | Bureau | - | Maintenant |
1er étage
| Taille |
| 12 482 pi² |
| Terme |
| Négociable |
| Taux de location |
| 26,72 $ CAD/pi²/an 2,23 $ CAD/pi²/mois 333 457 $ CAD/an 27 788 $ CAD/mois |
| Utilisation de l’espace |
| Bureau |
| Aménagement |
| - |
| Disponible |
| Maintenant |
2e étage, ste 225
| Taille |
| 10 852 pi² |
| Terme |
| Négociable |
| Taux de location |
| 26,72 $ CAD/pi²/an 2,23 $ CAD/pi²/mois 289 911 $ CAD/an 24 159 $ CAD/mois |
| Utilisation de l’espace |
| Bureau |
| Aménagement |
| - |
| Disponible |
| Maintenant |
1er étage
| Taille | 12 482 pi² |
| Terme | Négociable |
| Taux de location | 26,72 $ CAD/pi²/an |
| Utilisation de l’espace | Bureau |
| Aménagement | - |
| Disponible | Maintenant |
SVN is pleased to present a high-quality office building in a prime location, offering a functional and versatile layout ideal for a wide range of professional uses. The property is anchored by the Social Security Administration and has recently undergone renovations. It features turn-key suites with 12,482 RSF on the first floor and 10,852 RSF on the second floor, subdividable. Tenants enjoy modern conveniences including keyless entry, 24-hour access, elevator service, full sprinkler coverage, and ADA compliance. Strategically located in an amenity-rich area, the building is surrounded by numerous restaurants and hotels, with excellent access to major commuter routes and public transportation.
- Le taux inscrit peut ne pas comprendre certains services publics, les services de bâtiment et les dépenses immobilières.
- Disposition intensive du bureau
- Convient pour 32 à 100 personnes
2e étage, ste 225
| Taille | 10 852 pi² |
| Terme | Négociable |
| Taux de location | 26,72 $ CAD/pi²/an |
| Utilisation de l’espace | Bureau |
| Aménagement | - |
| Disponible | Maintenant |
SVN is pleased to present a high-quality office building in a prime location, offering a functional and versatile layout ideal for a wide range of professional uses. The property is anchored by the Social Security Administration and has recently undergone renovations. It features turn-key suites with 12,482 RSF on the first floor and 10,852 RSF on the second floor, subdividable. Tenants enjoy modern conveniences including keyless entry, 24-hour access, elevator service, full sprinkler coverage, and ADA compliance. Strategically located in an amenity-rich area, the building is surrounded by numerous restaurants and hotels, with excellent access to major commuter routes and public transportation.
- Le taux inscrit peut ne pas comprendre certains services publics, les services de bâtiment et les dépenses immobilières.
- Disposition intensive du bureau
- Convient pour 28 à 87 personnes
Aperçu de la propriété
SVN est fier de présenter un immeuble de bureaux de haute qualité situé dans un emplacement de choix, offrant une disposition fonctionnelle et polyvalente idéale pour une large gamme d'usages professionnels. La propriété est ancrée par l'Administration de la Sécurité Sociale et a récemment fait l'objet de rénovations. Elle propose des espaces prêts à l'emploi avec 12 482 pieds carrés louables (RSF) au rez-de-chaussée et 10 852 pieds carrés louables au deuxième étage, subdivisibles. Les locataires bénéficient de commodités modernes, notamment l'entrée sans clé, un accès 24 heures sur 24, un service d'ascenseur, une couverture complète par gicleurs et une conformité ADA. Stratégiquement situé dans une zone riche en commodités, l'immeuble est entouré de nombreux restaurants et hôtels, avec un excellent accès aux principales routes de transport et aux transports en commun. Le site est situé du côté nord de la Lincoln Highway, l'artère principale de la région, avec un accès exceptionnel au réseau autoroutier régional, y compris l'autoroute U.S. 1, la route U.S. 13, l'I-95, Oxford Valley Road, ainsi que les autoroutes à péage de Pennsylvanie et du New Jersey. Emplacement pratique à proximité de la frontière de l'État du New Jersey et à une distance facilement accessible de Philadelphie. Cet emplacement accessible et pratique se trouve à proximité de développements résidentiels denses et d'une abondance de commodités de quartier.
- Gestionnaire d'immeuble sur place
- Système de sécurité
- Wi-Fi
- Climatisation
- Détecteur de fumée
Faits sur la propriété
Sélectionner des locataires
- Étage
- Nom du locataire
- Secteur
- 2ᵉ
- Diamatrix Inc
- Finance et assurances
- 2ᵉ
- Livengrin Foundation
- Soins de santé et assistance sociale
- 2ᵉ
- Orion Systems Inc
- Fabrication
- 1ᵉʳ
- Social Security Administration
- Administration publique
- Multiple
- Township of Falls
- Administration publique
Présenté par
430-450 Lincoln Hwy
Hmm, il semble y avoir eu une erreur lors de l’envoi de votre message. Veuillez réessayer.
Merci! Votre message a été envoyé.








