Votre courriel a été envoyé.
Corporate Center 4300 Westown Pky 2 481–70 381 pi² d'espace disponible • Bureau • West Des Moines, IA 50266



Certaines informations ont été traduites automatiquement.
Faits saillants
- Prime visibility and frontage along Interstate 235
- Convenient access to amenities including shopping, dining, and fitness facilities for tenants and visitors
- On-site emergency back-up generator
- Prominent building signage available
- Excellent connectivity with easy access to major highways I-35 and I-80, linking to the greater Des Moines area
- Electric vehicle charging stations available
Tous les espaces disponibles(3)
Afficher les taux de location en
- Espace
- Taille
- Terme
- Taux de location
- Utilisation de l’espace
- Aménagement
- Disponible
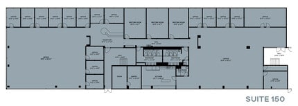
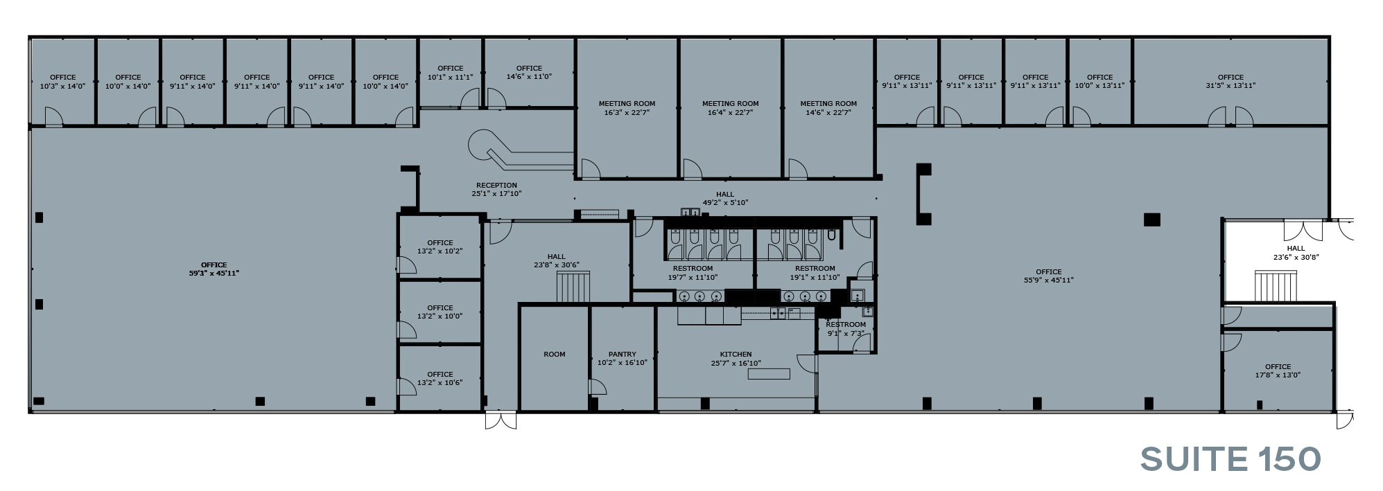
Suite 150 at 4300 Westown Parkway features approximately 13,392 rentable square feet of office space, available April 1, 2026. This suite is well-suited for larger organizations or those seeking room to grow, offering a blend of open areas, private offices, and a spacious breakroom. Tenants will benefit from high ceilings, abundant natural light, and prominent building signage.
- Le taux de location ne comprend pas les services publics, les services de bâtiment ou les dépenses immobilières.
- Disposition du plan d’étage ouverte en général
- Lumière naturelle
- Entièrement construit comme Bureau standard
- Hauts plafonds
- High ceilings and modern glass line.
Suite 152 at 4300 Westown Parkway offers approximately 2,481 rentable square feet of flexible office space, available April 1, 2026. This suite is ideal for businesses seeking a professional environment with a mix of open workspace, private offices, and a large breakroom.
- Le taux de location ne comprend pas les services publics, les services de bâtiment ou les dépenses immobilières.
- Disposition du plan d’étage ouverte en général
- Lumière naturelle
- Entièrement construit comme Bureau standard
- Hauts plafonds
- Flexible layout with open space.
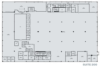
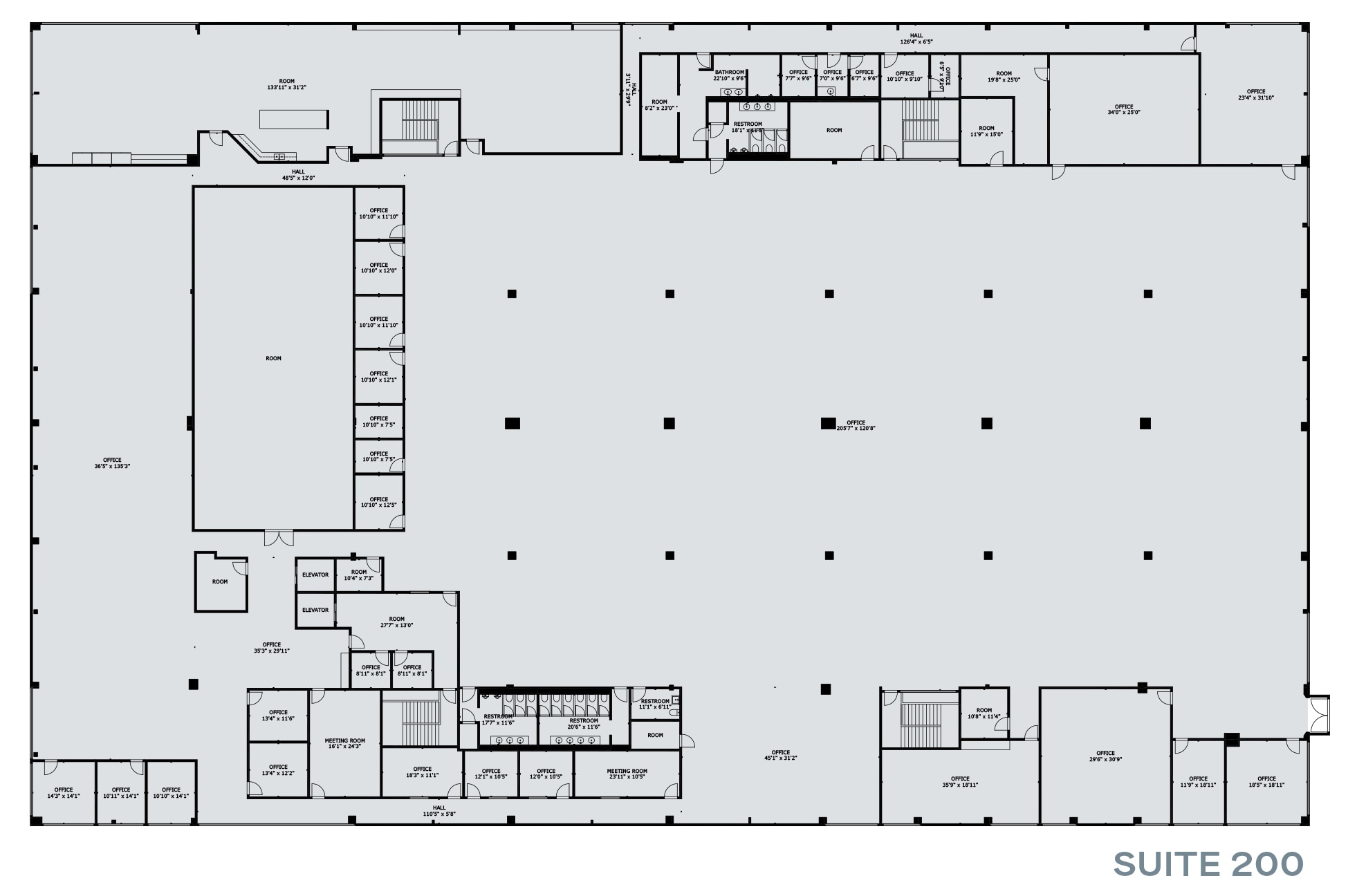
Suite 200 at 4300 Westown Parkway delivers a rare opportunity to lease up to 54,508 rentable square feet of contiguous office space, available April 1, 2026. This expansive second-floor suite is designed for large-scale operations, offering a flexible configuration to accommodate a variety of business needs.
- Le taux de location ne comprend pas les services publics, les services de bâtiment ou les dépenses immobilières.
- Disposition du plan d’étage ouverte en général
- Lumière naturelle
- Entièrement construit comme Bureau standard
- Hauts plafonds
- Expansive, flexible floor plan.
| Espace | Taille | Terme | Taux de location | Utilisation de l’espace | Aménagement | Disponible |
| 1er étage, ste 150 | 13 392 pi² | Négociable | 11,00 $ CAD/pi²/an 0,92 $ CAD/pi²/mois 147 355 $ CAD/an 12 280 $ CAD/mois | Bureau | construction complète | Maintenant |
| 1er étage, ste 152 | 2 481 pi² | Négociable | 11,00 $ CAD/pi²/an 0,92 $ CAD/pi²/mois 27 299 $ CAD/an 2 275 $ CAD/mois | Bureau | construction complète | Maintenant |
| 2e étage, ste 200 | 54 508 pi² | Négociable | 11,00 $ CAD/pi²/an 0,92 $ CAD/pi²/mois 599 762 $ CAD/an 49 980 $ CAD/mois | Bureau | construction complète | Maintenant |
1er étage, ste 150
| Taille |
| 13 392 pi² |
| Terme |
| Négociable |
| Taux de location |
| 11,00 $ CAD/pi²/an 0,92 $ CAD/pi²/mois 147 355 $ CAD/an 12 280 $ CAD/mois |
| Utilisation de l’espace |
| Bureau |
| Aménagement |
| construction complète |
| Disponible |
| Maintenant |
1er étage, ste 152
| Taille |
| 2 481 pi² |
| Terme |
| Négociable |
| Taux de location |
| 11,00 $ CAD/pi²/an 0,92 $ CAD/pi²/mois 27 299 $ CAD/an 2 275 $ CAD/mois |
| Utilisation de l’espace |
| Bureau |
| Aménagement |
| construction complète |
| Disponible |
| Maintenant |
2e étage, ste 200
| Taille |
| 54 508 pi² |
| Terme |
| Négociable |
| Taux de location |
| 11,00 $ CAD/pi²/an 0,92 $ CAD/pi²/mois 599 762 $ CAD/an 49 980 $ CAD/mois |
| Utilisation de l’espace |
| Bureau |
| Aménagement |
| construction complète |
| Disponible |
| Maintenant |
1er étage, ste 150
| Taille | 13 392 pi² |
| Terme | Négociable |
| Taux de location | 11,00 $ CAD/pi²/an |
| Utilisation de l’espace | Bureau |
| Aménagement | construction complète |
| Disponible | Maintenant |
Suite 150 at 4300 Westown Parkway features approximately 13,392 rentable square feet of office space, available April 1, 2026. This suite is well-suited for larger organizations or those seeking room to grow, offering a blend of open areas, private offices, and a spacious breakroom. Tenants will benefit from high ceilings, abundant natural light, and prominent building signage.
- Le taux de location ne comprend pas les services publics, les services de bâtiment ou les dépenses immobilières.
- Entièrement construit comme Bureau standard
- Disposition du plan d’étage ouverte en général
- Hauts plafonds
- Lumière naturelle
- High ceilings and modern glass line.
1er étage, ste 152
| Taille | 2 481 pi² |
| Terme | Négociable |
| Taux de location | 11,00 $ CAD/pi²/an |
| Utilisation de l’espace | Bureau |
| Aménagement | construction complète |
| Disponible | Maintenant |
Suite 152 at 4300 Westown Parkway offers approximately 2,481 rentable square feet of flexible office space, available April 1, 2026. This suite is ideal for businesses seeking a professional environment with a mix of open workspace, private offices, and a large breakroom.
- Le taux de location ne comprend pas les services publics, les services de bâtiment ou les dépenses immobilières.
- Entièrement construit comme Bureau standard
- Disposition du plan d’étage ouverte en général
- Hauts plafonds
- Lumière naturelle
- Flexible layout with open space.
2e étage, ste 200
| Taille | 54 508 pi² |
| Terme | Négociable |
| Taux de location | 11,00 $ CAD/pi²/an |
| Utilisation de l’espace | Bureau |
| Aménagement | construction complète |
| Disponible | Maintenant |
Suite 200 at 4300 Westown Parkway delivers a rare opportunity to lease up to 54,508 rentable square feet of contiguous office space, available April 1, 2026. This expansive second-floor suite is designed for large-scale operations, offering a flexible configuration to accommodate a variety of business needs.
- Le taux de location ne comprend pas les services publics, les services de bâtiment ou les dépenses immobilières.
- Entièrement construit comme Bureau standard
- Disposition du plan d’étage ouverte en général
- Hauts plafonds
- Lumière naturelle
- Expansive, flexible floor plan.
Caractéristiques et commodités
- Accès 24 heures
- Atrium
- Accès contrôlé
- Affichage
Faits sur la propriété
Sélectionner des locataires
- Étage
- Nom du locataire
- Secteur
- 2ᵉ
- Equifax
- Services administratifs et de soutien
- 1ᵉʳ
- QCI
- Information
Présenté par
Corporate Center | 4300 Westown Pky
Hmm, il semble y avoir eu une erreur lors de l’envoi de votre message. Veuillez réessayer.
Merci! Votre message a été envoyé.






