Votre courriel a été envoyé.
4320 Kettering Rd - 76.6 Acre Industrial Development Site Lot • Terrain industriel • 76,2 Acres • 18 008 119 $ CAD • Brooksville, FL 34602



Certaines informations ont été traduites automatiquement.
Faits sur la propriété
| Prix | 18 008 119 $ CAD | Sous-type de propriété | Terrain industriel |
| Type de vente | Propriétaire utilisateur | Utilisation proposée | Industriel |
| Nombre de lots | 1 | Taille totale du lot | 76,20 AC |
| Type de propriété | Terrain | ||
| Zonage | PDP | ||
| Prix | 18 008 119 $ CAD |
| Type de vente | Propriétaire utilisateur |
| Nombre de lots | 1 |
| Type de propriété | Terrain |
| Sous-type de propriété | Terrain industriel |
| Utilisation proposée | Industriel |
| Taille totale du lot | 76,20 AC |
| Zonage | PDP |
1 Lot disponible
Lot
| Prix | 18 008 119 $ CAD | Taille du lot | 76,20 AC |
| Prix par AC | 236 327,03 $ CAD |
| Prix | 18 008 119 $ CAD |
| Prix par AC | 236 327,03 $ CAD |
| Taille du lot | 76,20 AC |
Description
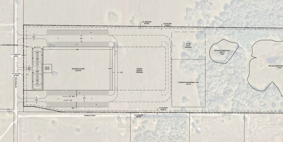
Prime Industrial Development Opportunity in Brooksville, Florida. Positioned at the northeast corner of Dashbach Street and Kettering Road just south of Cortez Blvd (S.R. 50). The site sits just off SR 50/US 98—a corridor currently being widened all the way to Orlando—and is near recognized brands like RaceTrac, Winn-Dixie, Cracker Barrel, Holiday Inn, Days Inn, and more. From this central Florida location, your operations can easily distribute to Tampa, Orlando, and Ocala, all of which are within a 50-mile radius. This property offers unparalleled logistical advantages and the acreage necessary for a massive distribution or manufacturing hub. Consisting of approximately 76.6 gross acres with over 62 upland acres. The easternmost portion of the site acts as a natural buffer, containing roughly 13 to 15 acres of isolated freshwater emergent wetlands. The property is already zoned as a Planned Development Project (PDP) for industrial uses, streamlining your path to groundbreaking. Prior site plans layout the capacity for a massive 700,000 SF industrial building (conceptualized as a 400,000 SF primary structure with a 300,000 SF expansion). Recent geotechnical test fits also showcase the property's ability to easily accommodate an impressive 519,792 SF cross-dock facility along with associated parking, truck courts, and a stormwater management pond. The property neighbor is a large 1.4MM SF Walmart Distribution Center, proving the location's viability for large-scale corporate logistics. Closest Utilities & Infrastructure The site is situated near essential utilities to support heavy industrial use: • Water: Hernando County Utilities maintains a 16-inch water main along the east side of Kettering Road, located approximately 900 feet from the northern property line. • Sanitary Sewer: A 16-inch sanitary force main is available along the west side of Kettering Road, approximately 2,000 feet from the property's northern boundary. • Telecommunications: AT&T has confirmed buried communication facilities running directly adjacent to the property on the east side of Kettering Road and the south side of Dashbach Street. • Electric: Service is available in the area through Withlacoochee River Electric Cooperative
Impôts fonciers
| Numéro de lot | R09-423-21-0000-0020-0010 | Évaluation des bâtiments | 0 $ CAD |
| Évaluation du terrain | 0 $ CAD | Évaluation totale | 19 833 $ CAD |
Impôts fonciers
Présenté par
4320 Kettering Rd - 76.6 Acre Industrial Development Site
Hmm, il semble y avoir eu une erreur lors de l’envoi de votre message. Veuillez réessayer.
Merci! Votre message a été envoyé.

