Se Connecter/S’inscrire
Votre courriel a été envoyé.
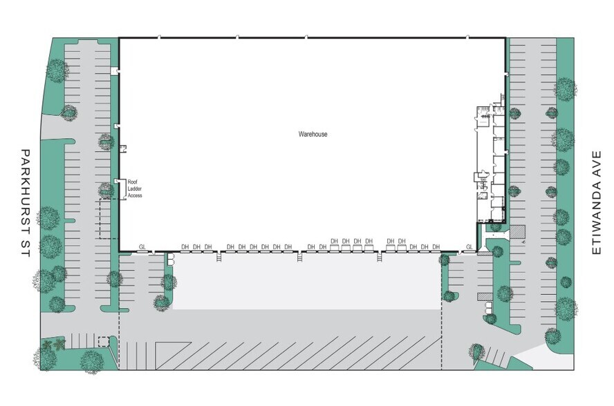
Bldg 4 4325 Etiwanda Ave 124 258 pi² d'espace disponible • Industriel • 4 étoiles • Jurupa Valley, CA 91752



Certaines informations ont été traduites automatiquement.
FAITS SAILLANTS
- 169 Places de stationnement pour voitures
- Grand tribunal pour camions sécurisés
- Rénovations en cours
- 14 stalles de remorques
- Accès facile aux autoroutes 15, 60 et 10
- Appeler l'agent pour une tournée
CARACTÉRISTIQUES
Hauteur libre
30’
Espacement des colonnes
50’ x 56’
Baies d’entrée
2
Portes de quai de chargement intérieures
20
Portes de quai de chargement extérieures
20
Niveleurs
6
Places de stationnement standard
169
TOUS LES ESPACES DISPONIBLES(1)
Afficher les taux de location en
- ESPACE
- TAILLE
- TERME
- TAUX DE LOCATION
- UTILISATION DE L’ESPACE
- ÉTAT
- DISPONIBLE
$0.45/Opex
- Le taux de location ne comprend pas les services publics, les services de bâtiment ou les dépenses immobilières.
- 2 accès plain-pied
- Comprend 9 527 pi² d’espace de bureau dédié
- 20 quais de chargement
| Espace | Taille | Terme | Taux de location | Utilisation de l’espace | État | Disponible |
| 1er étage | 124 258 pi² | Négociable | 18,17 $ CAD/pi²/an 1,51 $ CAD/pi²/mois 2 258 383 $ CAD/an 188 199 $ CAD/mois | Industriel | construction complète | Maintenant |
1er étage
| Taille |
| 124 258 pi² |
| Terme |
| Négociable |
| Taux de location |
| 18,17 $ CAD/pi²/an 1,51 $ CAD/pi²/mois 2 258 383 $ CAD/an 188 199 $ CAD/mois |
| Utilisation de l’espace |
| Industriel |
| État |
| construction complète |
| Disponible |
| Maintenant |
1 de 3
VIDÉOS
VISITE EXTÉRIEURE 3D MATTERPORT
VISITE 3D MATTERPORT
PHOTOS
VUE DEPUIS LA RUE
RUE
CARTE
1er étage
| Taille | 124 258 pi² |
| Terme | Négociable |
| Taux de location | 18,17 $ CAD/pi²/an |
| Utilisation de l’espace | Industriel |
| État | construction complète |
| Disponible | Maintenant |
$0.45/Opex
- Le taux de location ne comprend pas les services publics, les services de bâtiment ou les dépenses immobilières.
- Comprend 9 527 pi² d’espace de bureau dédié
- 2 accès plain-pied
- 20 quais de chargement
FAITS SUR L’INSTALLATION ENTREPÔT
Taille du bâtiment
124 258 pi²
Taille du lot
6,03 AC
Année de construction/rénovation
1998/2025
Construction
Béton renforcé
Système de gicleur
ESFR
Alimentation électrique
Ampères: 1 200 Volts: 277-480 Phase: 3 Fil: 4
Zonage
LI, MSC
1 de 6
VIDÉOS
VISITE EXTÉRIEURE 3D MATTERPORT
VISITE 3D MATTERPORT
PHOTOS
VUE DEPUIS LA RUE
RUE
CARTE
Présenté par
Bldg 4 | 4325 Etiwanda Ave
Vous êtes déjà membre? Connectez-vous
Hmm, il semble y avoir eu une erreur lors de l’envoi de votre message. Veuillez réessayer.
Merci! Votre message a été envoyé.




