Se Connecter/S’inscrire
Votre courriel a été envoyé.
Big Chief Motel 434 W Front St 58 Pièce Hôtel Battle Mountain, NV 89820 9 301 312 $ CAD (160 367 $ CAD/Pièce) 12% Taux de capitalisation



Certaines informations ont été traduites automatiquement.
Faits saillants de l'investissement
- Des immeubles et des terrains supplémentaires à valeur ajoutée
- Comprend une maison de 4 chambres et 2,5 salles de bain
- Comprend l'ancien dépanneur
Résumé de l'annonce
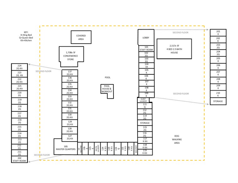
• 434 W Front Street — 002-032-06 21,827 ± SF 58 unités Motel sur 1,15 acres ±
• 408 W Front Street — 002-032-03 2 517 ± SF 4 lits 2,5 Bath Résidence sur 0,21 ± acres
• 474 W Front Street — 002-032-01 1 708 ± SF dépanneur sur 0,21 ± acres
• 415 Ouest, 2e rue — 002-032-04 0,12 ± Acre de terrain
• Rue East Front — 011-080-03 Terrain de 2,40 ± Acre avec panneau d'affichage — environ 1,4 mille à l'est des autres parcelles
• Des bâtiments ou des terrains à valeur ajoutée additionnels pourraient générer des revenus supplémentaires et/ou permettre d'autres aménagements
• Situé sur la rue principale de Battle Mountain et une autre parcelle est munie d'une signalisation dans la partie est de la ville
• 408 W Front Street — 002-032-03 2 517 ± SF 4 lits 2,5 Bath Résidence sur 0,21 ± acres
• 474 W Front Street — 002-032-01 1 708 ± SF dépanneur sur 0,21 ± acres
• 415 Ouest, 2e rue — 002-032-04 0,12 ± Acre de terrain
• Rue East Front — 011-080-03 Terrain de 2,40 ± Acre avec panneau d'affichage — environ 1,4 mille à l'est des autres parcelles
• Des bâtiments ou des terrains à valeur ajoutée additionnels pourraient générer des revenus supplémentaires et/ou permettre d'autres aménagements
• Situé sur la rue principale de Battle Mountain et une autre parcelle est munie d'une signalisation dans la partie est de la ville
Bilan financier (Réel - 2023) Cliquez ici pour accéder à |
Annuel (CAD) | Annuel par pi² (CAD) |
|---|---|---|
| Revenu de location brut |
$99,999
|
$9.99
|
| Autres revenus |
-
|
-
|
| Perte due à l’inoccupation |
-
|
-
|
| Revenu brut effectif |
$99,999
|
$9.99
|
| Taxes |
-
|
-
|
| Dépenses d’exploitation |
-
|
-
|
| Total des dépenses |
$99,999
|
$9.99
|
| Revenu net d’exploitation |
$99,999
|
$9.99
|
Bilan financier (Réel - 2023) Cliquez ici pour accéder à
| Revenu de location brut (CAD) | |
|---|---|
| Annuel | $99,999 |
| Annuel par pi² | $9.99 |
| Autres revenus (CAD) | |
|---|---|
| Annuel | - |
| Annuel par pi² | - |
| Perte due à l’inoccupation (CAD) | |
|---|---|
| Annuel | - |
| Annuel par pi² | - |
| Revenu brut effectif (CAD) | |
|---|---|
| Annuel | $99,999 |
| Annuel par pi² | $9.99 |
| Taxes (CAD) | |
|---|---|
| Annuel | - |
| Annuel par pi² | - |
| Dépenses d’exploitation (CAD) | |
|---|---|
| Annuel | - |
| Annuel par pi² | - |
| Total des dépenses (CAD) | |
|---|---|
| Annuel | $99,999 |
| Annuel par pi² | $9.99 |
| Revenu net d’exploitation (CAD) | |
|---|---|
| Annuel | $99,999 |
| Annuel par pi² | $9.99 |
Faits sur la propriété
| Prix | 9 301 312 $ CAD | Taille du lot | 1,37 AC |
| Prix par chambre | 160 367 $ CAD | Taille du bâtiment | 26 052 pi² |
| Type de vente | Investissement | Nombre de pièces | 58 |
| Taux de capitalisation | 12% | Nombre d’étages | 2 |
| Type de propriété | Services hôteliers | Année de construction | 1956 |
| Sous-type de propriété | Hôtel | Ratio de stationnement | 2,07/1 000 pi² |
| Classe d’immeuble | C | Corridor | Extérieur |
| Zonage | C2 | ||
| Prix | 9 301 312 $ CAD |
| Prix par chambre | 160 367 $ CAD |
| Type de vente | Investissement |
| Taux de capitalisation | 12% |
| Type de propriété | Services hôteliers |
| Sous-type de propriété | Hôtel |
| Classe d’immeuble | C |
| Taille du lot | 1,37 AC |
| Taille du bâtiment | 26 052 pi² |
| Nombre de pièces | 58 |
| Nombre d’étages | 2 |
| Année de construction | 1956 |
| Ratio de stationnement | 2,07/1 000 pi² |
| Corridor | Extérieur |
| Zonage | C2 |
Commodités
- Piscine
- Accessible aux fauteuils roulants
Pièce renseignements sur le mélange
| Description | Nombre de pièces | Taux quotidien | pi² |
|---|---|---|---|
| Guest Room | 58 | 68,39 $ CAD | - |
1 1
Plutôt praticable à pied
30/100
Exceptionnellement facile d’accès en voiture
100/100
Assez praticable en vélo
30/100
Impôts fonciers
| Numéros de lot | Évaluation des bâtiments | 611 724 $ CAD (2025) | |
| Évaluation du terrain | 71 875 $ CAD (2025) | Évaluation totale | 683 601 $ CAD (2025) |
Impôts fonciers
Numéros de lot
Évaluation du terrain
71 875 $ CAD (2025)
Évaluation des bâtiments
611 724 $ CAD (2025)
Évaluation totale
683 601 $ CAD (2025)
1 de 15
Vidéos
Visite extérieure 3D Matterport
Visite 3D Matterport
Photos
Vue depuis la rue
Rue
Carte
1 de 1
Présenté par
Big Chief Motel | 434 W Front St
Vous êtes déjà membre? Connectez-vous
Hmm, il semble y avoir eu une erreur lors de l’envoi de votre message. Veuillez réessayer.
Merci! Votre message a été envoyé.
