Votre courriel a été envoyé.
Industrial • Warehouse For Sale or Lease 44 Stockman St 6 973 pi² Industriel Immeuble West Orange, NJ 07052 À vendre



Certaines informations ont été traduites automatiquement.
Faits saillants de l'investissement
- Main Warehouse - New Epoxy Floors
- Excellent Location • +/- 20 parking spaces
- New HVAC 2nd Floor
Résumé de l'annonce
Taxes et dépenses d’exploitation (Réel - 2025) Cliquez ici pour accéder à |
Annuel (CAD) | Annuel par pi² (CAD) |
|---|---|---|
| Taxes |
-
|
-
|
| Dépenses d’exploitation |
-
|
-
|
| Total des dépenses |
$99,999
|
$9.99
|
Taxes et dépenses d’exploitation (Réel - 2025) Cliquez ici pour accéder à
| Taxes (CAD) | |
|---|---|
| Annuel | - |
| Annuel par pi² | - |
| Dépenses d’exploitation (CAD) | |
|---|---|
| Annuel | - |
| Annuel par pi² | - |
| Total des dépenses (CAD) | |
|---|---|
| Annuel | $99,999 |
| Annuel par pi² | $9.99 |
Faits sur la propriété
Commodités
- Accès 24 heures
- Chargement frontal
- Affichage sur monument
Services publics
- Éclairage
- Gaz - Naturel
- Eau - Ville
- Égout - Ville
- Chauffage - Gaz
Disponibilité des espaces
- Espace
- Taille
- Utilisation de l’espace
- Aménagement
- Disponible
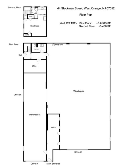
+/- 6,973 pieds carrés, 1er étage : +/- 6,573 pieds carrés, 2e étage : +/- 400 pieds carrés. Rénové en 2023, terrain d'angle, Bloc 8, Lot 1, superficie : 0,268 acre, Description du terrain : 55’ x 203’, hauteur du plafond de l'entrepôt : 12’ - 14’, 3 portes de garage - 2 portes de 14', 1 des portes de 14' est équipée d'un Lift Master électrique, 1 porte de 12'. Entrepôt principal - nouveau plancher en époxy, grue aérienne, électricité triphasée, 200 AMPS, éclairage LED, zonage R-M, classe de propriété 4A Commercial - Entrepôt/bureau. Bureaux, salle de repos, deux salles de bain, nouveau système CVC au 2e étage, stationnement sur place : +/- 20 places de stationnement, services publics : eau et égouts municipaux, chauffage au gaz naturel, enseigne monumentale, taxes : 24,694 $. Accès facile aux routes 280, 10, Garden State Parkway, I-95.
| Espace | Taille | Utilisation de l’espace | Aménagement | Disponible |
| 1er étage | 6 973 pi² | Industriel | construction complète | Oct. 2026 |
1er étage
| Taille |
| 6 973 pi² |
| Utilisation de l’espace |
| Industriel |
| Aménagement |
| construction complète |
| Disponible |
| Oct. 2026 |
1er étage
| Taille | 6 973 pi² |
| Utilisation de l’espace | Industriel |
| Aménagement | construction complète |
| Disponible | Oct. 2026 |
+/- 6,973 pieds carrés, 1er étage : +/- 6,573 pieds carrés, 2e étage : +/- 400 pieds carrés. Rénové en 2023, terrain d'angle, Bloc 8, Lot 1, superficie : 0,268 acre, Description du terrain : 55’ x 203’, hauteur du plafond de l'entrepôt : 12’ - 14’, 3 portes de garage - 2 portes de 14', 1 des portes de 14' est équipée d'un Lift Master électrique, 1 porte de 12'. Entrepôt principal - nouveau plancher en époxy, grue aérienne, électricité triphasée, 200 AMPS, éclairage LED, zonage R-M, classe de propriété 4A Commercial - Entrepôt/bureau. Bureaux, salle de repos, deux salles de bain, nouveau système CVC au 2e étage, stationnement sur place : +/- 20 places de stationnement, services publics : eau et égouts municipaux, chauffage au gaz naturel, enseigne monumentale, taxes : 24,694 $. Accès facile aux routes 280, 10, Garden State Parkway, I-95.
Impôts fonciers
| Numéro de lot | 22-00008-0000-00001 | Évaluation des bâtiments | 565 808 $ CAD |
| Évaluation du terrain | 825 183 $ CAD | Évaluation totale | 1 390 990 $ CAD |
Impôts fonciers
Présenté par
Industrial • Warehouse For Sale or Lease | 44 Stockman St
Hmm, il semble y avoir eu une erreur lors de l’envoi de votre message. Veuillez réessayer.
Merci! Votre message a été envoyé.




