Votre courriel a été envoyé.
NSA East Bank 4400 Dauphine St 32 006 pi² d'espace disponible • Commerce de détail • New Orleans, LA 70146

Certaines informations ont été traduites automatiquement.
Faits saillants
- Large Grocery/ Retail Opporunity Part of a Mixed Use Building Project
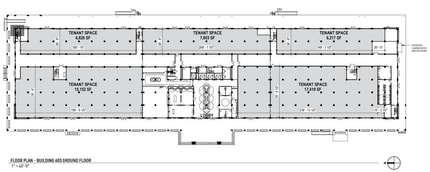
- Approximately 32,000 square feet of ground-floor retail space available, with flexible configurations possible.
- Close proximity to the French Quarter, Downtown New Orleans, and major regional transportation routes.
- Located within Phase I of New Orleans’ NSA Bywater redevelopment, blending residential and neighborhood retail.
- Designed to accommodate a grocery anchor alongside additional retail tenants for enhanced consumer draw.
Tous les espaces disponibles(1)
Afficher les taux de location en
- Espace
- Taille
- Terme
- Taux de location
- Utilisation de l’espace
- Aménagement
- Disponible
NSA Bywater Project – Phase I Phase I of the NSA Bywater Project is a large-scale mixed-use redevelopment located in the Bywater, anchored by affordable housing, ground-floor retail, and structured parking. The project is part of the broader redevelopment of the former Naval Support Activity site and represents a significant public-private investment in the neighborhood. Project Overview – Phase I Residential: 294 units of high-quality affordable housing Retail: Up to approximately 32,000 square feet of ground-floor retail space Parking: Over 900 total parking spaces planned across the project Configuration: Mixed-use development designed to support residential, neighborhood-serving retail, and community activity. The ground-floor retail is designed to accommodate a range of neighborhood-serving uses. The project is expected to include a grocery anchor, along with additional retail tenants, to serve both on-site residents and the surrounding Bywater and riverfront communities. Market Significance Phase I is intended to serve as a catalytic development within the larger NSA East Bank redevelopment, establishing momentum for future phases and long-term neighborhood revitalization.
| Espace | Taille | Terme | Taux de location | Utilisation de l’espace | Aménagement | Disponible |
| RDC | 32 006 pi² | Négociable | 17,79 $ CAD/pi²/an 1,48 $ CAD/pi²/mois 569 403 $ CAD/an 47 450 $ CAD/mois | Commerce de détail | - | 2028-03-01 |
RDC
| Taille |
| 32 006 pi² |
| Terme |
| Négociable |
| Taux de location |
| 17,79 $ CAD/pi²/an 1,48 $ CAD/pi²/mois 569 403 $ CAD/an 47 450 $ CAD/mois |
| Utilisation de l’espace |
| Commerce de détail |
| Aménagement |
| - |
| Disponible |
| 2028-03-01 |
RDC
| Taille | 32 006 pi² |
| Terme | Négociable |
| Taux de location | 17,79 $ CAD/pi²/an |
| Utilisation de l’espace | Commerce de détail |
| Aménagement | - |
| Disponible | 2028-03-01 |
NSA Bywater Project – Phase I Phase I of the NSA Bywater Project is a large-scale mixed-use redevelopment located in the Bywater, anchored by affordable housing, ground-floor retail, and structured parking. The project is part of the broader redevelopment of the former Naval Support Activity site and represents a significant public-private investment in the neighborhood. Project Overview – Phase I Residential: 294 units of high-quality affordable housing Retail: Up to approximately 32,000 square feet of ground-floor retail space Parking: Over 900 total parking spaces planned across the project Configuration: Mixed-use development designed to support residential, neighborhood-serving retail, and community activity. The ground-floor retail is designed to accommodate a range of neighborhood-serving uses. The project is expected to include a grocery anchor, along with additional retail tenants, to serve both on-site residents and the surrounding Bywater and riverfront communities. Market Significance Phase I is intended to serve as a catalytic development within the larger NSA East Bank redevelopment, establishing momentum for future phases and long-term neighborhood revitalization.
Faits sur la propriété
| Superficie totale disponible | 32 006 pi² | Style d’appartement | De hauteur moyenne |
| Nombre d’unités | 294 | Taille du bâtiment | 300 000 pi² |
| Type de propriété | Immeuble residentiel | Année de construction | 2028 |
| Sous-type de propriété | Appartement | État de la construction | En construction |
| Superficie totale disponible | 32 006 pi² |
| Nombre d’unités | 294 |
| Type de propriété | Immeuble residentiel |
| Sous-type de propriété | Appartement |
| Style d’appartement | De hauteur moyenne |
| Taille du bâtiment | 300 000 pi² |
| Année de construction | 2028 |
| État de la construction | En construction |
À propos de la propriété
4400 Dauphine Street is part of a multi-phase redevelopment of the former Naval Support Activity site in the Bywater neighborhood of New Orleans. The project includes substantial residential capacity, structured parking, and ground-floor retail designed for neighborhood-serving uses. The planned configuration integrates living, shopping, and community-focused spaces. The site is situated near Downtown New Orleans and the French Quarter with connectivity to area roadways, public transportation options, and neighborhood amenities.
Présenté par
NSA East Bank | 4400 Dauphine St
Hmm, il semble y avoir eu une erreur lors de l’envoi de votre message. Veuillez réessayer.
Merci! Votre message a été envoyé.



