Votre courriel a été envoyé.
Midtown At Camp Springs 4400 Telfair Blvd 8 568 pi² d'espace disponible • Commerce de détail • 4 étoiles • Camp Springs, MD 20746



Certaines informations ont été traduites automatiquement.
Tous les espaces disponibles(1)
Afficher les taux de location en
- Espace
- Taille
- Terme
- Taux de location
- Utilisation de l’espace
- État
- Disponible
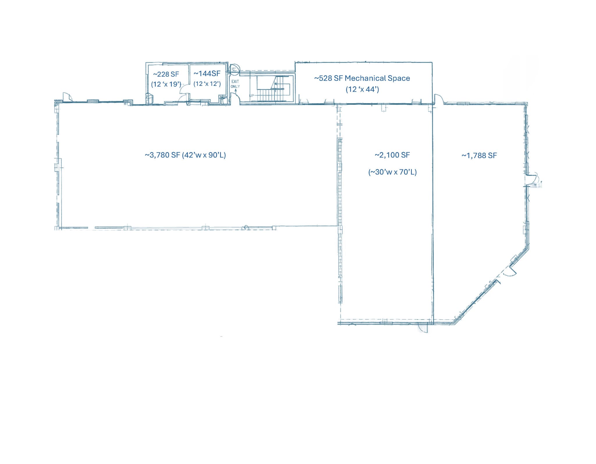
Approximately 8,568 SF of ground floor retail space with direct access to parking is available for lease at the Branch Avenue Metro Train Station in Camp Springs, Maryland. The entire space has ~18.3-to-19.4-foot ceilings. Perfect for many uses including golf lounge, gymnastics, Pilates, arcade, playground, medical, educational and so much more. Add 900 SF for office and mechanical/storage rooms in this space. See floorplan. The Shops at Midtown are at the center of many homes and daytime employment, a school, a hospital, car dealerships, three hotels, the Metro train and many commuters. Located on the first floor of Midtown at Camp Springs, the shops provide essential commercial services to the Town Center of Camp Springs, the existing residential community, and the daytime employment community including the 4,000 daily employees and contractors at the United States Citizenship and Immigration Services Headquarters (USCIS) next door. Camp Springs Town Center is a luxurious convenient master planned live work play community at Branch Avenue Metro Station and the Capital Beltway (I-495) in Camp Springs Maryland.
- Le taux comprend les services publics, les services de bâtiment et les dépenses immobilières.
- Espace embout très recherché
- Plafonds finis: 18’ - 19’
- Partiellement construit comme Espace (spécialité)
- Plafond exposé
| Espace | Taille | Terme | Taux de location | Utilisation de l’espace | État | Disponible |
| RDC | 8 568 pi² | Négociable | 51,95 $ CAD/pi²/an 4,33 $ CAD/pi²/mois 445 148 $ CAD/an 37 096 $ CAD/mois | Commerce de détail | construction partielle | Maintenant |
RDC
| Taille |
| 8 568 pi² |
| Terme |
| Négociable |
| Taux de location |
| 51,95 $ CAD/pi²/an 4,33 $ CAD/pi²/mois 445 148 $ CAD/an 37 096 $ CAD/mois |
| Utilisation de l’espace |
| Commerce de détail |
| État |
| construction partielle |
| Disponible |
| Maintenant |
RDC
| Taille | 8 568 pi² |
| Terme | Négociable |
| Taux de location | 51,95 $ CAD/pi²/an |
| Utilisation de l’espace | Commerce de détail |
| État | construction partielle |
| Disponible | Maintenant |
Approximately 8,568 SF of ground floor retail space with direct access to parking is available for lease at the Branch Avenue Metro Train Station in Camp Springs, Maryland. The entire space has ~18.3-to-19.4-foot ceilings. Perfect for many uses including golf lounge, gymnastics, Pilates, arcade, playground, medical, educational and so much more. Add 900 SF for office and mechanical/storage rooms in this space. See floorplan. The Shops at Midtown are at the center of many homes and daytime employment, a school, a hospital, car dealerships, three hotels, the Metro train and many commuters. Located on the first floor of Midtown at Camp Springs, the shops provide essential commercial services to the Town Center of Camp Springs, the existing residential community, and the daytime employment community including the 4,000 daily employees and contractors at the United States Citizenship and Immigration Services Headquarters (USCIS) next door. Camp Springs Town Center is a luxurious convenient master planned live work play community at Branch Avenue Metro Station and the Capital Beltway (I-495) in Camp Springs Maryland.
- Le taux comprend les services publics, les services de bâtiment et les dépenses immobilières.
- Partiellement construit comme Espace (spécialité)
- Espace embout très recherché
- Plafond exposé
- Plafonds finis: 18’ - 19’
Faits sur la propriété
| Superficie totale disponible | 8 568 pi² | Style d’appartement | De hauteur moyenne |
| Nombre d’unités | 291 | Taille du bâtiment | 293 748 pi² |
| Type de propriété | Immeuble residentiel | Année de construction/rénovation | 2009/2014 |
| Sous-type de propriété | Appartement |
| Superficie totale disponible | 8 568 pi² |
| Nombre d’unités | 291 |
| Type de propriété | Immeuble residentiel |
| Sous-type de propriété | Appartement |
| Style d’appartement | De hauteur moyenne |
| Taille du bâtiment | 293 748 pi² |
| Année de construction/rénovation | 2009/2014 |
À propos de la propriété
Environ 8 568 pi² d'espace commercial au rez-de-chaussée avec accès direct au stationnement est disponible à la location à la station de train Branch Avenue Metro à Camp Springs, Maryland. L'ensemble de l'espace bénéficie de plafonds d'une hauteur d'environ 18,3 à 19,4 pieds. Idéal pour de nombreuses utilisations, notamment un lounge de golf, un centre de gymnastique, un studio de Pilates, une arcade, une aire de jeux, un espace médical, éducatif et bien plus encore. Ajoutez 900 pi² pour des bureaux et des salles mécaniques/de rangement dans cet espace. Consultez le plan d'étage. Les boutiques de Midtown se trouvent au cœur d'un secteur regroupant de nombreuses résidences, des emplois de jour, une école, un hôpital, des concessionnaires automobiles, trois hôtels, le train Metro et de nombreux navetteurs. Situées au rez-de-chaussée de Midtown à Camp Springs, ces boutiques offrent des services commerciaux essentiels au centre-ville de Camp Springs, à la communauté résidentielle existante et à la communauté de travailleurs de jour, y compris les 4 000 employés et contractuels qui travaillent quotidiennement au siège de l'USCIS (United States Citizenship and Immigration Services) situé à côté. Camp Springs Town Center est une communauté luxueuse et pratique, conçue selon un plan directeur pour vivre, travailler et se divertir, située à la station Branch Avenue Metro et à proximité de la Capital Beltway (I-495) à Camp Springs, Maryland.
Principaux détaillants à proximité
Présenté par
Midtown At Camp Springs | 4400 Telfair Blvd
Hmm, il semble y avoir eu une erreur lors de l’envoi de votre message. Veuillez réessayer.
Merci! Votre message a été envoyé.


