Votre courriel a été envoyé.
East Lake Towers Corporate Center 4425 N Port Washington Rd 1 362–121 216 pi² d'espace disponible • Bureau • Glendale, WI 53212



Certaines informations ont été traduites automatiquement.
FAITS SAILLANTS
- Spacious layouts with high ceilings and large windows
- Meticulously maintained common areas
- Grand lobby with double staircase, high ceilings, and abundant natural light
- Quick access to I-43 for convenient commuting
- New common-area conference room
- Full-Floor Opportunities
TOUS LES ESPACES DISPONIBLES(7)
Afficher les taux de location en
- ESPACE
- TAILLE
- TERME
- TAUX DE LOCATION
- UTILISATION DE L’ESPACE
- ÉTAT
- DISPONIBLE
Entire 3rd floor available
Contiguous to 4,736 SF
- Peut être associé à un ou plusieurs espaces supplémentaires pour obtenir jusqu’à 4 254 pi² d’espace adjacent.
Contiguous to 4,736 SF
- Peut être associé à un ou plusieurs espaces supplémentaires pour obtenir jusqu’à 4 254 pi² d’espace adjacent.
This loft-style office space offers a clean, functional layout with direct elevator access, a private conference room, and a dedicated restroom. The open floor plan is complemented by tall ceilings and large windows, providing plenty of natural light throughout the day. This flexible space works well for teams needing a mix of collaborative and private areas.
- Le taux de location ne comprend pas les services publics, les services de bâtiment ou les dépenses immobilières.
- Disposition du plan d’étage ouverte en général
- 1 salle de conférence
- Lumière naturelle
- Entièrement construit comme Bureau standard
- 1 bureau privé
- Espace en excellent état
- Large Windows for excellent natural lighting!
| Espace | Taille | Terme | Taux de location | Utilisation de l’espace | État | Disponible |
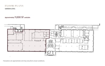
| Niveau inférieur, ste Garden Level | 11 000 pi² | Négociable | Sur demande Sur demande Sur demande Sur demande | Bureau | - | 30 jours |
| 1er étage | 9 600 pi² | Négociable | Sur demande Sur demande Sur demande Sur demande | Bureau | - | Maintenant |
| 2e étage | 70 000 pi² | Négociable | Sur demande Sur demande Sur demande Sur demande | Bureau | - | 30 jours |
| 3e étage | 25 000 pi² | Négociable | Sur demande Sur demande Sur demande Sur demande | Bureau | - | 30 jours |
| 4e étage, ste Suite 401 | 2 127 pi² | Négociable | Sur demande Sur demande Sur demande Sur demande | Bureau | - | 30 jours |
| 4e étage, ste Suite 402 | 2 127 pi² | Négociable | Sur demande Sur demande Sur demande Sur demande | Bureau | - | 30 jours |
| 5e étage | 1 362 pi² | Négociable | 20,67 $ CAD/pi²/an 1,72 $ CAD/pi²/mois 28 148 $ CAD/an 2 346 $ CAD/mois | Bureau | construction complète | Maintenant |
Niveau inférieur, ste Garden Level
| Taille |
| 11 000 pi² |
| Terme |
| Négociable |
| Taux de location |
| Sur demande Sur demande Sur demande Sur demande |
| Utilisation de l’espace |
| Bureau |
| État |
| - |
| Disponible |
| 30 jours |
1er étage
| Taille |
| 9 600 pi² |
| Terme |
| Négociable |
| Taux de location |
| Sur demande Sur demande Sur demande Sur demande |
| Utilisation de l’espace |
| Bureau |
| État |
| - |
| Disponible |
| Maintenant |
2e étage
| Taille |
| 70 000 pi² |
| Terme |
| Négociable |
| Taux de location |
| Sur demande Sur demande Sur demande Sur demande |
| Utilisation de l’espace |
| Bureau |
| État |
| - |
| Disponible |
| 30 jours |
3e étage
| Taille |
| 25 000 pi² |
| Terme |
| Négociable |
| Taux de location |
| Sur demande Sur demande Sur demande Sur demande |
| Utilisation de l’espace |
| Bureau |
| État |
| - |
| Disponible |
| 30 jours |
4e étage, ste Suite 401
| Taille |
| 2 127 pi² |
| Terme |
| Négociable |
| Taux de location |
| Sur demande Sur demande Sur demande Sur demande |
| Utilisation de l’espace |
| Bureau |
| État |
| - |
| Disponible |
| 30 jours |
4e étage, ste Suite 402
| Taille |
| 2 127 pi² |
| Terme |
| Négociable |
| Taux de location |
| Sur demande Sur demande Sur demande Sur demande |
| Utilisation de l’espace |
| Bureau |
| État |
| - |
| Disponible |
| 30 jours |
5e étage
| Taille |
| 1 362 pi² |
| Terme |
| Négociable |
| Taux de location |
| 20,67 $ CAD/pi²/an 1,72 $ CAD/pi²/mois 28 148 $ CAD/an 2 346 $ CAD/mois |
| Utilisation de l’espace |
| Bureau |
| État |
| construction complète |
| Disponible |
| Maintenant |
Niveau inférieur, ste Garden Level
| Taille | 11 000 pi² |
| Terme | Négociable |
| Taux de location | Sur demande |
| Utilisation de l’espace | Bureau |
| État | - |
| Disponible | 30 jours |
1er étage
| Taille | 9 600 pi² |
| Terme | Négociable |
| Taux de location | Sur demande |
| Utilisation de l’espace | Bureau |
| État | - |
| Disponible | Maintenant |
2e étage
| Taille | 70 000 pi² |
| Terme | Négociable |
| Taux de location | Sur demande |
| Utilisation de l’espace | Bureau |
| État | - |
| Disponible | 30 jours |
3e étage
| Taille | 25 000 pi² |
| Terme | Négociable |
| Taux de location | Sur demande |
| Utilisation de l’espace | Bureau |
| État | - |
| Disponible | 30 jours |
Entire 3rd floor available
4e étage, ste Suite 401
| Taille | 2 127 pi² |
| Terme | Négociable |
| Taux de location | Sur demande |
| Utilisation de l’espace | Bureau |
| État | - |
| Disponible | 30 jours |
Contiguous to 4,736 SF
- Peut être associé à un ou plusieurs espaces supplémentaires pour obtenir jusqu’à 4 254 pi² d’espace adjacent.
4e étage, ste Suite 402
| Taille | 2 127 pi² |
| Terme | Négociable |
| Taux de location | Sur demande |
| Utilisation de l’espace | Bureau |
| État | - |
| Disponible | 30 jours |
Contiguous to 4,736 SF
- Peut être associé à un ou plusieurs espaces supplémentaires pour obtenir jusqu’à 4 254 pi² d’espace adjacent.
5e étage
| Taille | 1 362 pi² |
| Terme | Négociable |
| Taux de location | 20,67 $ CAD/pi²/an |
| Utilisation de l’espace | Bureau |
| État | construction complète |
| Disponible | Maintenant |
This loft-style office space offers a clean, functional layout with direct elevator access, a private conference room, and a dedicated restroom. The open floor plan is complemented by tall ceilings and large windows, providing plenty of natural light throughout the day. This flexible space works well for teams needing a mix of collaborative and private areas.
- Le taux de location ne comprend pas les services publics, les services de bâtiment ou les dépenses immobilières.
- Entièrement construit comme Bureau standard
- Disposition du plan d’étage ouverte en général
- 1 bureau privé
- 1 salle de conférence
- Espace en excellent état
- Lumière naturelle
- Large Windows for excellent natural lighting!
APERÇU DE LA PROPRIÉTÉ
Originally built in 1929 as the American Lace Paper Company Factory, East Lake Towers is a beautifully restored architectural landmark in Glendale, Wisconsin. Designed by Richard Philipp in the Late Gothic Revival style, the building underwent a major renovation in 2002 that added a Colonial Revival façade and modern amenities while preserving its historic character. Today, East Lake Towers offers a professional and elegant environment ideal for a wide range of tenants, including medical, legal, tech, and service-based businesses.
- Ligne d'autobus
- Accès contrôlé
- Restaurant
- Affichage
FAITS SUR LA PROPRIÉTÉ
SÉLECTIONNER DES LOCATAIRES
- ÉTAGE
- NOM DU LOCATAIRE
- SECTEUR
- Multiple
- Ascension
- Soins de santé et assistance sociale
- 4ᵉ
- Division 10
- Services administratifs et de soutien
- 4ᵉ
- LTI
- Services professionnels, scientifiques et techniques
- 1ᵉʳ
- Milwaukee Oral Surgery & Implants
- Soins de santé et assistance sociale
- 1ᵉʳ
- Mishlove and Stuckert
- Services professionnels, scientifiques et techniques
- 1ᵉʳ
- Murdock Law, S.C.
- Services professionnels, scientifiques et techniques
- NI
- The Nurturing Nook
- Soins de santé et assistance sociale
- 4ᵉ
- Wisconsin Child Welfare Professional Development
- Soins de santé et assistance sociale
Présenté par
East Lake Towers Corporate Center | 4425 N Port Washington Rd
Hmm, il semble y avoir eu une erreur lors de l’envoi de votre message. Veuillez réessayer.
Merci! Votre message a été envoyé.













