Votre courriel a été envoyé.
Citibank 444 N Main St 2 330 pi² d'espace disponible • Bureau/Commerce de détail • Glen Ellyn, IL 60137


Certaines informations ont été traduites automatiquement.
Faits saillants de la sous-location
- Prime downtown Glen Ellyn location with excellent visibility
- Flexible layouts ideal for collaborative or private office use
- Two-story standalone office building offering professional appeal
- Convenient access to dining, retail, and Metra commuter rail
Disponibilité de l’espace (1)
Afficher les taux de location en
- Espace
- Taille
- Terme
- Taux de location
- Type de loyer
| Espace | Taille | Terme | Taux de location | Type de loyer | ||
| 2e étage, ste Suite 200&203 | 2 330 pi² | Mars 2030 | 34,26 $ CAD/pi²/an 2,85 $ CAD/pi²/mois 79 814 $ CAD/an 6 651 $ CAD/mois | Service complet |
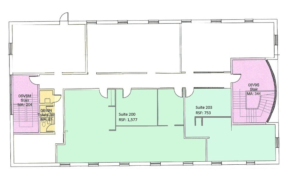
2e étage, ste Suite 200&203
This two-story standalone office property offers a professional setting in the heart of Glen Ellyn’s vibrant Main Street corridor. Suite 200 features an open layout with abundant natural light, ideal for collaborative work environments, while Suite 203 provides a flexible footprint perfect for private offices or specialty use. Tenants benefit from prominent street visibility, convenient access to local dining and retail, and proximity to major transportation routes, creating an attractive location for businesses seeking both functionality and prestige. The sublease runs through March 2030, offering long-term stability in a highly desirable suburban market.
- Espace de sous-location disponible auprès du locataire actuel
- Le taux comprend les services publics, les services de bâtiment et les dépenses immobilières.
- Entièrement construit comme Bureau standard
- Disposition du plan d’étage ouverte en général
- Convient pour 6 à 19 personnes
- Prime Glen Ellyn location
- Professional office environment
- Convenient Main Street access
- Sublease through March 2030
Types de loyers
Le type et le montant du loyer que le locataire (preneur) est tenu de payer au propriétaire (bailleur) sur la durée du bail sont négociés avant la signature du bail par les deux parties. Le type de loyer varie selon les services fournis. Par exemple, le prix d’un loyer hypernet est habituellement inférieur à celui d’un bail à service complet puisque le locataire est tenu d’assumer des dépenses additionnelles par rapport au loyer de base. Contactez le courtier inscripteur pour tout connaître sur les frais connexes et additionnels associés à chaque type de loyer.
1. Service complet: Un taux de location qui comprend des services standards liés à l’immeuble fournis par le propriétaire dans le cadre d’une location annuelle de base.
2. Loyer supernet: Le locataire paie seulement deux des frais de l’immeuble. Le propriétaire et le locataire déterminent ces frais spécifiques avant la signature du bail.
3. Loyer hypernet: Un bail en vertu duquel le locataire est responsable de tous les frais liés à sa part proportionnelle d’occupation de l’immeuble.
4. Brut modifié: Le loyer brut modifié désigne un type général de taux de location dans lequel le locataire est habituellement responsable de sa part proportionnelle d’un ou de plusieurs frais. C’est le propriétaire qui paie les frais restants. Considérez les structures tarifaires courantes suivantes applicables aux loyers bruts modifiés: 4. Plus les services: Un type de bail brut modifié suivant lequel le locataire est responsable de sa part proportionnelle des coûts des services publics, en plus du loyer. 4. Plus le nettoyage: Un type de bail brut modifié suivant lequel le locataire est responsable de sa part proportionnelle des coûts de nettoyage, en plus du loyer. 4. Plus l'électricité: Un type de bail brut modifié suivant lequel le locataire est responsable de sa part proportionnelle des coûts d’électricité, en plus du loyer. 4. Plus l’électricité et le nettoyage: Un type de bail brut modifié dans lequel le locataire est responsable de sa part proportionnelle des coûts d’électricité et de nettoyage, en plus du loyer. 4. Plus les services publics et le nettoyage: Un type de bail brut modifié dans lequel le locataire est responsable de sa part proportionnelle des coûts des services publics et de nettoyage, en plus du loyer. 4. Bail industriel brut: Un type de bail brut modifié dans lequel le locataire paie un ou plusieurs des frais, en plus du loyer. Le propriétaire et le locataire déterminent ces frais spécifiques avant la signature du bail.
5. L’électricité est à la charge du locataire: Le propriétaire paie pour tous les services et le locataire est responsable de sa propre utilisation de l’éclairage et des prises électriques dans l’espace qu’il occupe.
6. Négociable ou sur demande: Cette option est utilisée lorsque le contact de location ne précise pas le type de loyer ou de service.
7. À déterminer: À déterminer ; utilisé pour les immeubles dont le type de services ou de loyer n’est pas connu, souvent quand l’immeuble n’est pas encore construit.
Sélectionner des locataires à Citibank
- Locataire
- Description
- Emplacements US
- Portée
- Citi
- Banque
- 1 557
- International
| Locataire | Description | Emplacements US | Portée |
| Citi | Banque | 1 557 | International |
Faits sur la propriété
| Superficie totale disponible | 2 330 pi² | Superficie commerciale brute | 9 500 pi² |
| Type de propriété | Commerce de détail | Année de construction | 1962 |
| Sous-type de propriété | Banque | Ratio de stationnement | 4,53/1 000 pi² |
| Superficie totale disponible | 2 330 pi² |
| Type de propriété | Commerce de détail |
| Sous-type de propriété | Banque |
| Superficie commerciale brute | 9 500 pi² |
| Année de construction | 1962 |
| Ratio de stationnement | 4,53/1 000 pi² |
À propos de la propriété
Positioned in the heart of Glen Ellyn’s vibrant downtown corridor, 444 N. Main Street offers a rare opportunity to secure office space in a highly visible, standalone building. This two-story property combines professional appeal with convenience, featuring modern layouts designed for flexibility and productivity. Tenants enjoy excellent street frontage, easy access to local dining and retail, and proximity to major transportation routes, including I-355 and Metra commuter rail, making it ideal for businesses seeking connectivity and prestige. The sublease extends through March 2030, providing long-term stability in a thriving suburban market known for its strong demographics and business-friendly environment. Whether you’re looking for an open collaborative setting or private office configurations, this property delivers a strategic location and quality space tailored to meet diverse operational needs.
- Affichage
- Climatisation
Principaux détaillants à proximité
Présenté par
Citibank | 444 N Main St
Hmm, il semble y avoir eu une erreur lors de l’envoi de votre message. Veuillez réessayer.
Merci! Votre message a été envoyé.
