Se Connecter/S’inscrire
Votre courriel a été envoyé.
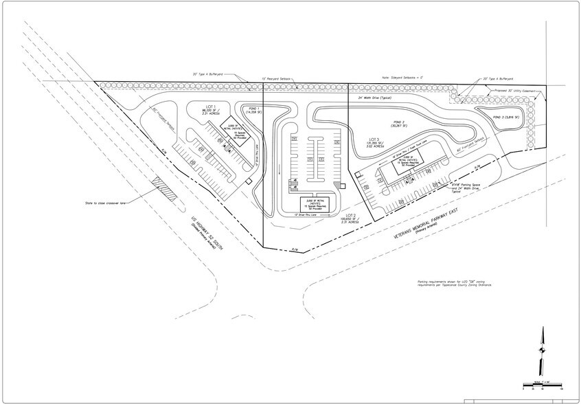
Sagamore Veterans North East 4467 Veterans Memorial Parkway East Pky Terrain à louer de 7,5 acres • Terrain commercial • Lafayette, IN 47905


Certaines informations ont été traduites automatiquement.
Faits saillants
- Heavy traffic count
- Zoned General Business
- Corner development
LOT Disponible
Afficher les taux de location en
| Taux de location |
|
Taille du lot | 7,50 AC |
| Durée du bail | Négociable |
| Taux de location | |
| Durée du bail | Négociable |
| Taille du lot | 7,50 AC |
7.5 acres of General Business land for lease at the intersection of US 52 South and Veterans Memorial Parkway in Lafayette, IN. This commercial land is being offered on a land lease term with possible build to suit. A conceptual plan and drawing are attached with lots ranging from 2.21 to 3.02 acres. Full access to and from VMP is already installed and the State has granted Right-In / Right- Out access off of US 52. Lease rates to be negotiated.
Aperçu de la propriété
General Business zoned land at the intersection of US 52 South and Veterans Memorial Parkway in Lafayette, IN (Tippecanoe County). Total of 7.5 acres which can be subdivided into smaller lots ranging from 2.21 to 3.02 acres each. Easy access to US52, Interstate 65 & US231
Faits sur la propriété
| Superficie totale disponible | 7,50 AC | Utilisation proposée | |
| Type de propriété | Terrain | Rues transversales | US 52 South |
| Sous-type de propriété | Terrain commercial |
| Superficie totale disponible | 7,50 AC |
| Type de propriété | Terrain |
| Sous-type de propriété | Terrain commercial |
| Utilisation proposée | |
| Rues transversales | US 52 South |
1 1
Plutôt praticable à pied
20/100
Exceptionnellement facile d’accès en voiture
100/100
Assez praticable en vélo
30/100
1 de 3
Vidéos
Visite extérieure 3D Matterport
Visite 3D Matterport
Photos
Vue depuis la rue
Rue
Carte
1 de 1
Présenté par
Sagamore Veterans North East | 4467 Veterans Memorial Parkway East Pky
Vous êtes déjà membre? Connectez-vous
Hmm, il semble y avoir eu une erreur lors de l’envoi de votre message. Veuillez réessayer.
Merci! Votre message a été envoyé.
