Votre courriel a été envoyé.
Certaines informations ont été traduites automatiquement.
Faits saillants
- Prime Leisure Location.
- Benefits from A5 (Hot Food Takeaway) In Part.
- In The Heart Of The Town's Night Circuit.
- Large Ground Floor Comprising Of Two Units.
- Train Station within a 2-minutes Walk.
- ///talent.views.likely.
Tous les espaces disponibles(1)
Afficher les taux de location en
- Espace
- Taille
- Terme
- Taux de location
- Utilisation de l’espace
- Aménagement
- Disponible
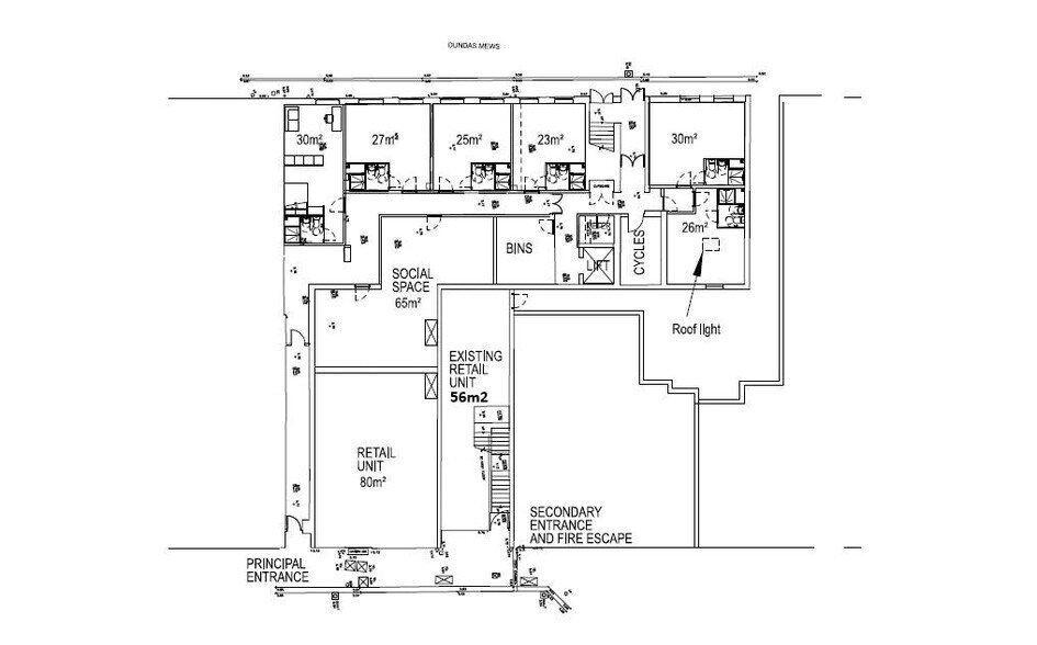
The smaller half of the unit (right front) was recently trading as a hot food takeaway premises (A5 Hot food takeaway consent) This additional space provides opportunities to keep sub division for a range of uses such as cafes, take aways and other retail businesses to grow within a prime location
- Classe d’utilisation : E
- Situé en ligne avec d’autres commerces de détail
- Entreposage sécurisé
- Prime Leisure Location
- Train Station within a 2-minutes Walk
- Partiellement construit comme Espace de commerce de détail standard
- Salle de bains privée
- Stores automatiques
- Large Ground Floor Comprising Of Two Units
| Espace | Taille | Terme | Taux de location | Utilisation de l’espace | Aménagement | Disponible |
| RDC | 750 à 7 250 pi² | Négociable | Sur demande Sur demande Sur demande Sur demande | Commerce de détail | construction partielle | Maintenant |
RDC
| Taille |
| 750 à 7 250 pi² |
| Terme |
| Négociable |
| Taux de location |
| Sur demande Sur demande Sur demande Sur demande |
| Utilisation de l’espace |
| Commerce de détail |
| Aménagement |
| construction partielle |
| Disponible |
| Maintenant |
RDC
| Taille | 750 à 7 250 pi² |
| Terme | Négociable |
| Taux de location | Sur demande |
| Utilisation de l’espace | Commerce de détail |
| Aménagement | construction partielle |
| Disponible | Maintenant |
The smaller half of the unit (right front) was recently trading as a hot food takeaway premises (A5 Hot food takeaway consent) This additional space provides opportunities to keep sub division for a range of uses such as cafes, take aways and other retail businesses to grow within a prime location
- Classe d’utilisation : E
- Partiellement construit comme Espace de commerce de détail standard
- Situé en ligne avec d’autres commerces de détail
- Salle de bains privée
- Entreposage sécurisé
- Stores automatiques
- Prime Leisure Location
- Large Ground Floor Comprising Of Two Units
- Train Station within a 2-minutes Walk
Faits sur la propriété
Caractéristiques et commodités
- Ligne d'autobus
- Stores automatiques
- Espace d'entreposage
Principaux détaillants à proximité
Présenté par
45-49 Albert Rd
Hmm, il semble y avoir eu une erreur lors de l’envoi de votre message. Veuillez réessayer.
Merci! Votre message a été envoyé.





